
請注意,上方物件照片如有街景,為物件附近環境介紹,非物件本身。
1/17
有22人也在關注這間👀
本案專家
更多挑選
按下按鈕表示您已同意本站
服務條款
與隱私權聲明
預約看屋
東海高投報收租9房透套!
(0010ZB)
台中市龍井區新興路
有22人也在關注這間👀
總價
1,498萬
建坪單價
46.02 萬/坪
格局
9房6廳6衛
含加蓋4房2廳3衛
房貸試算
計算
元/月
年|利率%概算|undefined年寬限期
符合首購資格嗎?
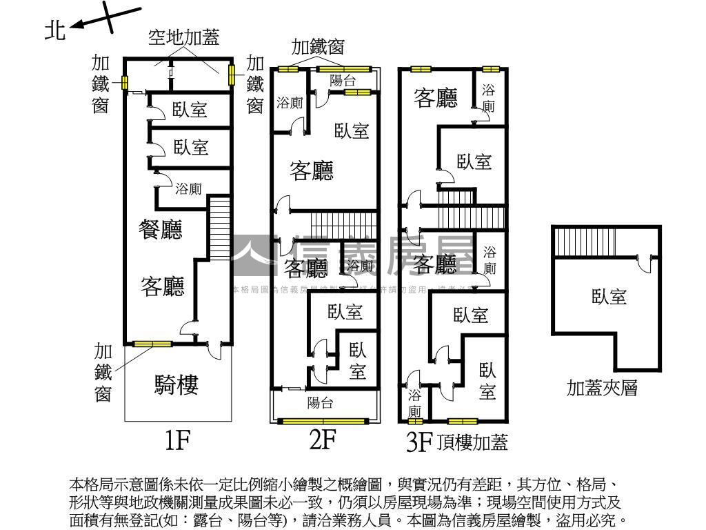
坪數詳情
細項
建坪32.55
主(含其他)32.55
地坪18.93
類型透天
屋齡45.3年
樓層1-2樓/2樓
加蓋格局4房2廳3衛
謄本用途住商用
使用分區鄉村區乙種建築用地;
完整物件詳情
本案專家
更多挑選
物件特色
東海商圈生活機能佳
屋主重新整理水電重拉
室內精裝屋況佳
傢俱家電齊全直接收租
收租自產首選
現況滿租!直接當房東
來電專人解說
買方服務費成交價1%
周邊生活機能


SinyiCare十大守護 信義房屋購售屋服務保障
點擊觀看生活機能
公車 (9)
公共自行車 (1)
0新興遊園南路口
1.6分鐘 / 120m
1新興遊園南路口
1.6分鐘 / 123m
2陽明別墅
4.3分鐘 / 314m
3陽明別墅
4.3分鐘 / 317m
4新庄里
7.2分鐘 / 520m
5新庄里
7.3分鐘 / 528m
6東海停車場
6分鐘 / 446m
7東海停車場
6分鐘 / 448m
8東海商圈
8.1分鐘 / 610m
0新興遊園南路口
1.6分鐘 / 120m
1新興遊園南路口
1.6分鐘 / 123m
2陽明別墅
4.3分鐘 / 314m
3陽明別墅
4.3分鐘 / 317m
4新庄里
7.2分鐘 / 520m
完整周邊生活圈

SinyiCare十大守護 信義房屋購售屋服務保障
類似物件實價登錄
(6)
1公里內 | 半年內 | 透天
12房1廳12衛
|94.47坪
|無車位
3,980萬42.13萬/坪
114/11成交
4房2廳3衛
|6.23坪
|無車位
360萬57.74萬/坪
114/09成交


