
1/5
請注意,上方物件照片如有街景,為物件附近環境介紹,非物件本身。
1/5
有5人也在關注這間👀
本案專家

預約看屋
按下送出表示您已同意本站
服務條款
與隱私權聲明
送出
光興街土地
(0021KG)
新北市三重區光興街
有5人也在關注這間👀
詳情
總價
3,188萬
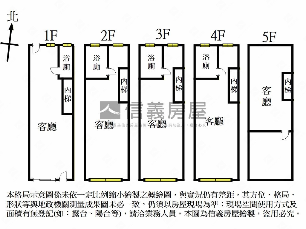
格局
5房4衛
建坪
0坪
類型
土地/透天
樓層
1-5樓/5樓
建坪單價
--
屋齡
--
地坪
7.75坪
(主建物--)
地坪單價
411.35 萬/坪

SinyiCare十大守護 信義房屋購售屋服務保障
點擊觀看生活機能
捷運 (4)公車 (20)公共自行車 (1)停車場 (1)
0菜寮站 - 出口3
6.3分鐘 / 409m
1菜寮站 - 出口2
7.9分鐘 / 549m
2菜寮站 - 出口1
8.5分鐘 / 576m
3臺北橋站 - 出口
11.4分鐘 / 803m
0菜寮站 - 出口3
6.3分鐘 / 409m
1菜寮站 - 出口2
7.9分鐘 / 549m
2菜寮站 - 出口1
8.5分鐘 / 576m
3臺北橋站 - 出口
11.4分鐘 / 803m

SinyiCare十大守護 信義房屋購售屋服務保障
建坪
0坪
建坪單價
--
地坪
7.75坪
地坪單價
411.35 萬/坪
格局
--
加蓋格局
5房4衛
屋齡
--
類型
土地/透天
樓層
1-5樓/5樓
車位
--
邊間/暗房
否/否
建物朝向
南
大門朝向
南
落地窗朝向
南
警衛管理
無
建物詳情
建物結構
--
外牆建材
二丁掛
每層戶數
1
謄本用途
土地
使用分區
住宅區; 道路用地;
注意事項
土地申請建照涉及相關法令,能否取得須俟建管機關審核結果。
本物件有未登記建物,若未補辦申領執照之相關程序,或日後補申請執照但不合規定者,則該建物即屬違章建築。
收合
物件特色
近捷運菜寮站
近公車站交通便利
網路預約專人服務
買方服務費成交價1%
類似物件實價登錄(55)
距離該物件1公里內,半年內成交,土地/別墅/透天
共有55間與我相似的實價登錄物件
編輯篩選條件
列表
地圖
年月
地址
類型/車位
總價
單價
建坪
地坪
屋齡
樓層
格局
114年12月

菜寮段1697地號
土地
30萬
43.5萬
0坪
0.69坪
0.0年
0樓/0樓
0衛
備註資訊:包含公共設施保留地用地;
114年12月
土地菜寮段1697地號30萬
43.5萬/坪
建坪0坪地坪0.69無車位
0衛0.0年0樓/0樓
0衛0.0年0樓/0樓
交易備註
114年12月

大仁段766-1地號
土地
255萬
85.24萬
0坪
2.99坪
0.0年
0樓/0樓
0衛
備註資訊:包含公共設施保留地用地;
114年12月
土地大仁段766-1地號255萬
85.24萬/坪
建坪0坪地坪2.99無車位
0衛0.0年0樓/0樓
0衛0.0年0樓/0樓
交易備註
114年11月

菜寮段88地號
土地
330萬
29.17萬
0坪
11.31坪
0.0年
0樓/0樓
0衛
備註資訊:親友、員工、共有人或其他特殊關係間之交易;
114年11月
土地菜寮段88地號330萬
29.17萬/坪
建坪0坪地坪11.31無車位
0衛0.0年0樓/0樓
0衛0.0年0樓/0樓
交易備註
114年11月

大同南段1640-3地號
土地
50萬
29.31萬
0坪
1.71坪
0.0年
0樓/0樓
0衛
備註資訊:包含公共設施保留地用地;
114年11月
土地大同南段1640-3地號50萬
29.31萬/坪
建坪0坪地坪1.71無車位
0衛0.0年0樓/0樓
0衛0.0年0樓/0樓
交易備註
114年11月

大同南段1640-1地號
土地
434萬
72.1萬
0坪
6.03坪
0.0年
0樓/0樓
0衛
備註資訊:包含公共設施保留地用地;
114年11月
土地大同南段1640-1地號434萬
72.1萬/坪
建坪0坪地坪6.03無車位
0衛0.0年0樓/0樓
0衛0.0年0樓/0樓
交易備註
- 資料來源:
為信義房屋最新成交行情;
為內政部最新公布的實價登錄資料;
該數值為系統運算,詳細請看說明
- 本實價登錄分類係綜合內政部實價登錄2020年7月之建物型態分類調整,以及申報登錄之建物型態、建物權狀登載之「主要用途」資料推估而成,故資料呈現類型、順序可能會與內政部不動產交易實價查詢服務網之搜尋結果有所差異,請斟酌參考。看看我們如何推估實價登錄類型與順序
- 特殊行情物件可能為受到特別條件或特殊關係影響所造成,詳情請參考頁面之粉色「備註資訊」欄。排除特殊交易功能,開啟後可即時排除顯示申報備註中關係人間交易、特殊交易情況及標的類型、與政府有關之交易、僅車位交易、分件登記、含多筆土地或多棟建物、 交易標的僅有建物、土地面積為0(含地上權物件),及其他備註資訊,關閉後則會恢復顯示。
- 歷史移轉次數依據信義成交行情及政府實價登錄資訊推估,再由系統比對當筆與前一筆實價登錄,交易明細完全吻合方計算漲跌幅,當筆交易漲跌幅計算式為(當筆交易之成交總價/前一筆交易之成交總價)-1,計算百分比至小數點後兩位;可能與實際交易有所落差,資料請斟酌參考。
為信義房屋最新成交行情;- 本實價登錄分類係綜合內政部實價登錄2020年7月之建物型態分類調整,以及申報登錄之建物型態、建物權狀登載之「主要用途」資料推估而成,故資料呈現類型、順序可能會與內政部不動產交易實價查詢服務網之搜尋結果有所差異,請斟酌參考。看看我們如何推估實價登錄類型與順序
- 特殊行情物件可能為受到特別條件或特殊關係影響所造成,詳情請參考頁面之粉色「備註資訊」欄。排除特殊交易功能,開啟後可即時排除顯示申報備註中關係人間交易、特殊交易情況及標的類型、與政府有關之交易、僅車位交易、分件登記、含多筆土地或多棟建物、 交易標的僅有建物、土地面積為0(含地上權物件),及其他備註資訊,關閉後則會恢復顯示。
- 歷史移轉次數依據信義成交行情及政府實價登錄資訊推估,再由系統比對當筆與前一筆實價登錄,交易明細完全吻合方計算漲跌幅,當筆交易漲跌幅計算式為(當筆交易之成交總價/前一筆交易之成交總價)-1,計算百分比至小數點後兩位;可能與實際交易有所落差,資料請斟酌參考。
查看實價登錄
本案專家

根據你的設定值計算
161,880/月


