近一中雙透天店面加蓋電梯

更多相似
列印分享收藏
近一中雙透天店面加蓋電梯(0471BY)
地址台中市北區錦南街建坪單價38.84 萬/坪
6,778
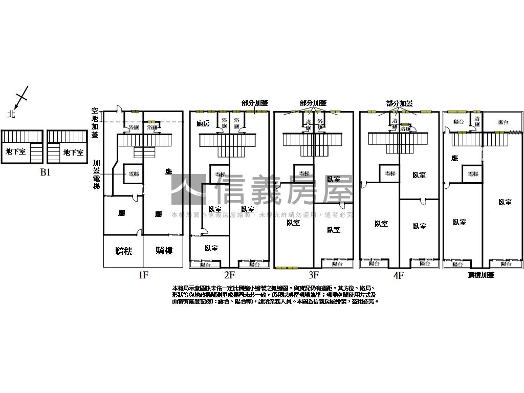
建坪174.52坪 / 地坪44.17坪
主(含其他)174.52坪細項
11房4廳9衛2室
(含加蓋2房1廳4衛)
56.8年
店面/透天
B1-4樓/4樓
依據你的設定值計算
依據你的設定值計算

元/月
試算
1人也在關注這間👀
本案專家
更多挑選
聯絡時間:皆可(9:00-21:00)
按下按鈕表示您已同意本站
服務條款
隱私權聲明
預約看屋
近一中雙透天店面加蓋電梯
(0471BY)
台中市北區錦南街
有裝潢
廁所開窗
近公園
近市場
近學校
新上架
2D/3D看屋
落地窗
有加蓋
近超市
1人也在關注這間👀
總價
6,778
建坪單價
38.84 萬/坪
格局
11房4廳9衛2室
含加蓋2房1廳4衛
房貸試算
計算
元/月
|利率%概算|undefined年寬限期
​符合首購資格嗎?
坪數詳情
細項
建坪174.52
主(含其他)174.52
地坪44.17
類型店面/透天
屋齡56.8年
樓層B1-4樓/4樓
加蓋格局2房1廳4衛
車位--
謄本用途商業用
使用分區第一種商業區、第三種住宅區; 第三種住宅區;
完整物件詳情
本案專家
更多挑選
回電給我
物件特色
機能
近公園
近公園
近市場
近市場
近學校
近學校
近超市
近超市
特色
新上架
新上架
2D/3D看屋
2D/3D看屋
屋況
廁所開窗
廁所開窗
有裝潢
有裝潢
落地窗
落地窗
有加蓋
有加蓋
有加蓋電梯!!
稀有合併大面寬
近一中商圈
屋主用心整理
投資自用首選
使用空間大好規劃
近中國醫
買方服務費1%
周邊生活機能
SinyiCare十大守護 信義房屋購售屋服務保障
點擊觀看生活機能
各學校位置僅為顯示與該校區的距離,非指學區;重要設施以現場實際狀況為主;興建中的捷運站站名尚未定案,請依照捷運官方實際核定站名為主
交通
學校
購物
醫療
金融
寵物
警消
重要設施
公車 (23)
公共自行車 (2)
停車場 (3)
0莒光新城
1.2分鐘 / 85m
1三民錦新街口
2.7分鐘 / 198m
2三民錦新街口
2.9分鐘 / 203m
3一心市場
3.2分鐘 / 213m
4莒光新城
3分鐘 / 212m
5一心市場
4.8分鐘 / 307m
6中友百貨
3.7分鐘 / 277m
7北區運動中心
4.7分鐘 / 315m
8北區運動中心
5分鐘 / 324m
9五權學士路口
5分鐘 / 354m
A新民高中(三民路)
5.7分鐘 / 393m
B五權學士路口
5.5分鐘 / 375m
C臺灣體大體育場
5.3分鐘 / 403m
D臺灣體大體育場
5.8分鐘 / 439m
E中友百貨
5.2分鐘 / 380m
F新民高中(三民路)
6.7分鐘 / 447m
G雙十興進路口
6.9分鐘 / 489m
H新民高中(三民路)
7.2分鐘 / 493m
I文英兒童公園
8分鐘 / 560m
J雙十興進路口
9分鐘 / 625m
K中山堂
9.4分鐘 / 650m
L中山堂
10分鐘 / 693m
M中山堂
9.9分鐘 / 690m
0莒光新城
1.2分鐘 / 85m
1三民錦新街口
2.7分鐘 / 198m
2三民錦新街口
2.9分鐘 / 203m
3一心市場
3.2分鐘 / 213m
4莒光新城
3分鐘 / 212m
完整周邊生活圈
SinyiCare十大守護 信義房屋購售屋服務保障
類似物件實價登錄
(20)
1公里內 | 半年內 | 店面/透天
編輯篩選條件
4房3廳2衛
|
24.2
|
無車位
80033.06萬/坪
114/09成交
2房2衛
|
25.17
|
無車位
1,85073.51萬/坪
114/12成交
義起聊