
1/22
請注意,上方物件照片如有街景,為物件附近環境介紹,非物件本身。
1/22
有6人也在關注這間👀
本案專家

預約看屋
按下送出表示您已同意本站
服務條款
與隱私權聲明
送出
鼓山高中旁小資透天
(05041M)
高雄市鼓山區鼓山三路
有6人也在關注這間👀
詳情
總價
568萬
格局
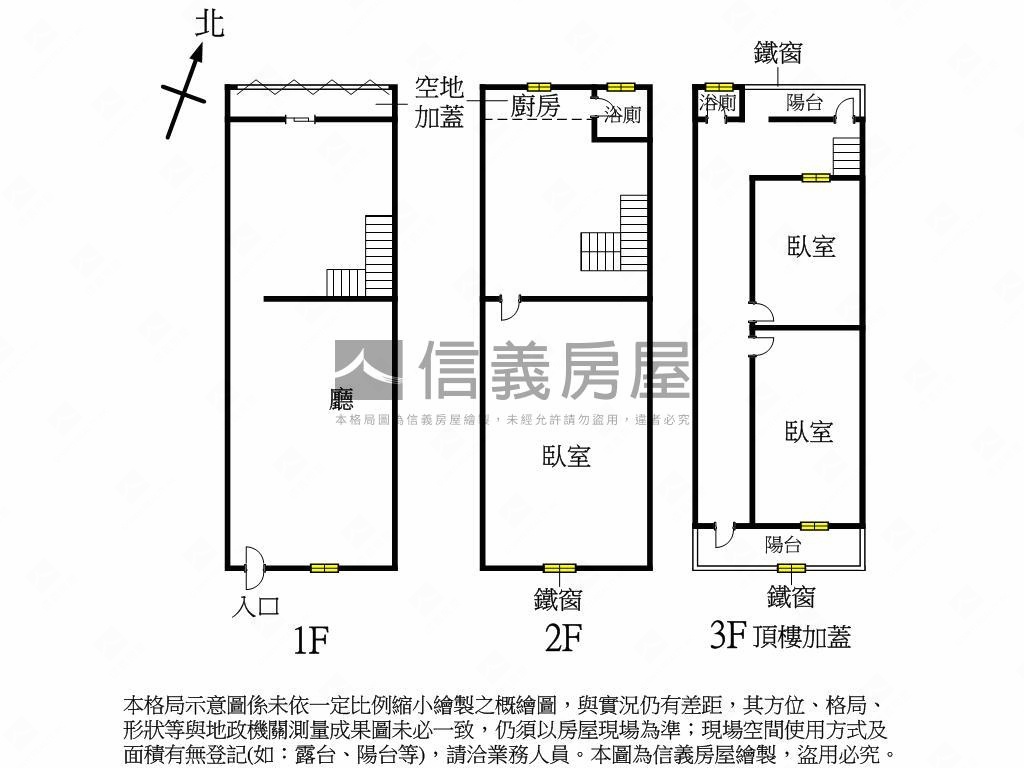
3房1廳2衛
建坪
19.9坪
(主建物19.9坪)
類型
透天
樓層
1-2樓/2樓
建坪單價
28.54 萬/坪
屋齡
58.0年
地坪
12.71坪
地坪單價
44.69 萬/坪

SinyiCare十大守護 信義房屋購售屋服務保障
點擊觀看生活機能
捷運 (4)公車 (14)公共自行車 (2)停車場 (2)
0臺鐵美術館站 - 出口
10.4分鐘 / 721m
1馬卡道站 - 出口
13.6分鐘 / 960m
2美術館站 - 出口
16分鐘 / 1138m
3內惟藝術中心 - 出口
16.3分鐘 / 1147m
0臺鐵美術館站 - 出口
10.4分鐘 / 721m
1馬卡道站 - 出口
13.6分鐘 / 960m
2美術館站 - 出口
16分鐘 / 1138m
3內惟藝術中心 - 出口
16.3分鐘 / 1147m

SinyiCare十大守護 信義房屋購售屋服務保障
建坪
19.9坪
詳情
建坪單價
28.54 萬/坪
地坪
12.71坪
主建物
19.9坪
地坪單價
44.69 萬/坪
格局
1房1廳1衛
加蓋格局
2房1衛
屋齡
58.0年
類型
透天
樓層
1-2樓/2樓
車位
--
邊間/暗房
否/否
建物朝向
南
大門朝向
南
落地窗朝向
南
警衛管理
無
建物詳情
建物結構
加強磚造
外牆建材
二丁掛
每層戶數
1
謄本用途
住宅
使用分區
第四種住宅區;
注意事項
--
收合
物件特色
近市立圖書館鼓山分館
近高雄市立美術館
近美術館車站
屋況精美採光好
室內挑高通風好
低總價好成家
頂樓有鐵皮屋況好維持
活巷好進出
類似物件實價登錄(3)
距離該物件1公里內,半年內成交,別墅/透天
共有3間與我相似的實價登錄物件
編輯篩選條件
列表
地圖
年月
地址
類型/車位
總價
單價
建坪
地坪
屋齡
樓層
格局
114年10月

高雄市鼓山區青泉街130巷27、29號
別墅/透天
500萬
49.16萬
10.17坪
0坪
70.6年
1樓/1樓
3房1廳1衛
備註資訊:買賣契約標的含建物座落土地之地上權地上權設定權利範圍67平方公尺.建物價金:250萬元地上權讓與價金250萬元.;建物坐落地號:內惟段八小段299-3地號;
114年10月
別墅/透天高雄市鼓山區青泉街130巷27、29號500萬
49.16萬/坪
建坪10.17坪地坪0無車位
3房1廳1衛70.6年1樓/1樓
3房1廳1衛70.6年1樓/1樓
交易備註
114年09月

高雄市鼓山區青泉街130巷15、17號
別墅/透天
258萬
25.23萬
10.22坪
0坪
70.5年
1樓/1樓
2房1廳1衛
歷史移轉3次
備註資訊:買賣契約標的含建物座落土地之地上權地上權設定權利範圍77平方公尺.建物價金:30萬元地上權讓與價金228萬元.;建物坐落地號:內惟段八小段299-2地號;
114年09月
別墅/透天高雄市鼓山區青泉街130巷15、17號移轉3次
258萬
25.23萬/坪
建坪10.22坪地坪0無車位
2房1廳1衛70.5年1樓/1樓
2房1廳1衛70.5年1樓/1樓
交易備註
114年09月

高雄市鼓山區建榮路61號
別墅/透天
1,620萬
50.3萬
32.2坪
19.06坪
56.8年
1樓/2樓
4房3廳5衛
備註資訊:其他增建;
114年09月
別墅/透天高雄市鼓山區建榮路61號1,620萬
50.3萬/坪
建坪32.2坪地坪19.06無車位
4房3廳5衛56.8年1樓/2樓
4房3廳5衛56.8年1樓/2樓
交易備註
- 資料來源:
為信義房屋最新成交行情;
為內政部最新公布的實價登錄資料;
該數值為系統運算,詳細請看說明
- 本實價登錄分類係綜合內政部實價登錄2020年7月之建物型態分類調整,以及申報登錄之建物型態、建物權狀登載之「主要用途」資料推估而成,故資料呈現類型、順序可能會與內政部不動產交易實價查詢服務網之搜尋結果有所差異,請斟酌參考。看看我們如何推估實價登錄類型與順序
- 特殊行情物件可能為受到特別條件或特殊關係影響所造成,詳情請參考頁面之粉色「備註資訊」欄。排除特殊交易功能,開啟後可即時排除顯示申報備註中關係人間交易、特殊交易情況及標的類型、與政府有關之交易、僅車位交易、分件登記、含多筆土地或多棟建物、 交易標的僅有建物、土地面積為0(含地上權物件),及其他備註資訊,關閉後則會恢復顯示。
- 歷史移轉次數依據信義成交行情及政府實價登錄資訊推估,再由系統比對當筆與前一筆實價登錄,交易明細完全吻合方計算漲跌幅,當筆交易漲跌幅計算式為(當筆交易之成交總價/前一筆交易之成交總價)-1,計算百分比至小數點後兩位;可能與實際交易有所落差,資料請斟酌參考。
為信義房屋最新成交行情;- 本實價登錄分類係綜合內政部實價登錄2020年7月之建物型態分類調整,以及申報登錄之建物型態、建物權狀登載之「主要用途」資料推估而成,故資料呈現類型、順序可能會與內政部不動產交易實價查詢服務網之搜尋結果有所差異,請斟酌參考。看看我們如何推估實價登錄類型與順序
- 特殊行情物件可能為受到特別條件或特殊關係影響所造成,詳情請參考頁面之粉色「備註資訊」欄。排除特殊交易功能,開啟後可即時排除顯示申報備註中關係人間交易、特殊交易情況及標的類型、與政府有關之交易、僅車位交易、分件登記、含多筆土地或多棟建物、 交易標的僅有建物、土地面積為0(含地上權物件),及其他備註資訊,關閉後則會恢復顯示。
- 歷史移轉次數依據信義成交行情及政府實價登錄資訊推估,再由系統比對當筆與前一筆實價登錄,交易明細完全吻合方計算漲跌幅,當筆交易漲跌幅計算式為(當筆交易之成交總價/前一筆交易之成交總價)-1,計算百分比至小數點後兩位;可能與實際交易有所落差,資料請斟酌參考。
查看實價登錄
本案專家

根據你的設定值計算
28,842/月


