
1/18
請注意,上方物件照片如有街景,為物件附近環境介紹,非物件本身。
1/18
有6人也在關注這間👀
本案專家

預約看屋
按下送出表示您已同意本站
服務條款
與隱私權聲明
送出
中正路整棟商旅
(0508JP)
桃園市桃園區中正路
有6人也在關注這間👀
詳情
總價(含車位)
108,000萬
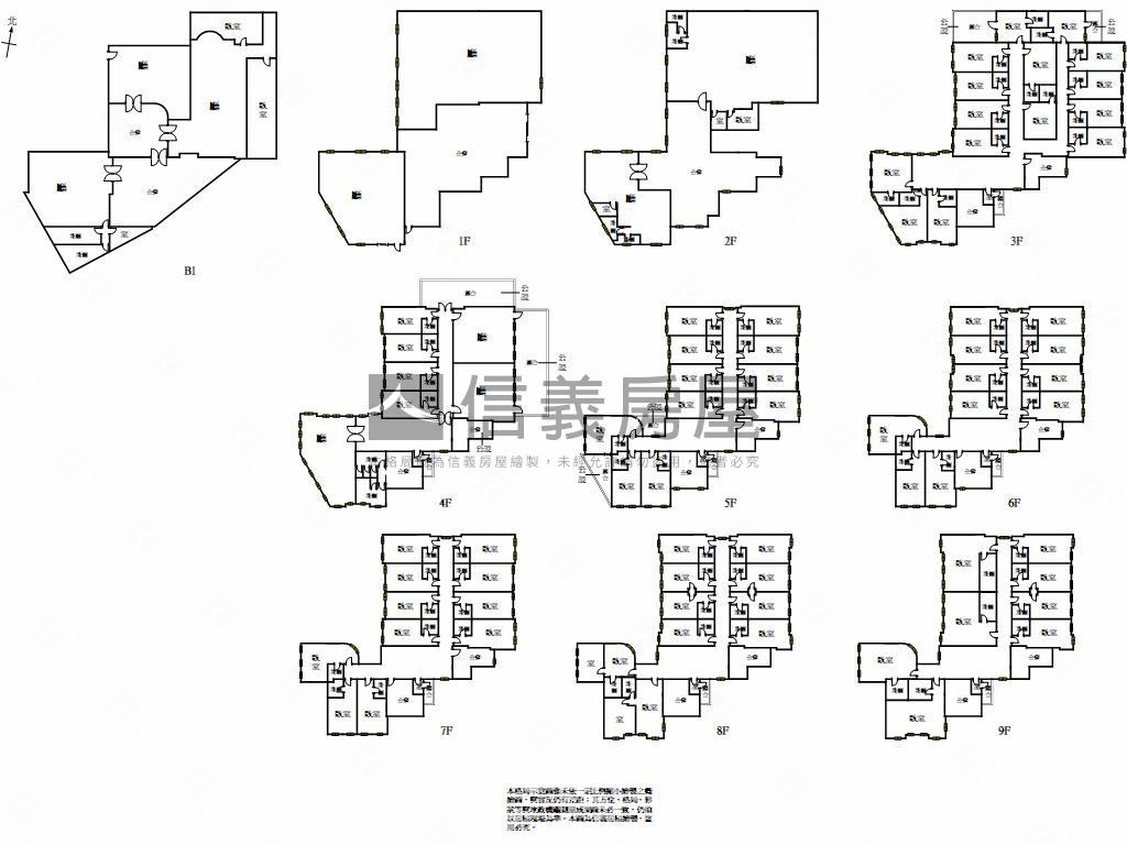
格局
73房10廳78衛12室
建坪
2591.64坪
(主+陽1310.55坪)
類型
店面
樓層
B1-9樓/9樓
建坪單價
本物件含車位,詳洽經紀人員
屋齡
28.0年
地坪
382.06坪
地坪單價
詳洽經紀人員

SinyiCare十大守護 信義房屋購售屋服務保障
點擊觀看生活機能
捷運 (2)公車 (8)公共自行車 (1)停車場 (4)
0G09站(興建中) - 出口
4.9分鐘 / 348m
1G10站(興建中) - 出口
7.6分鐘 / 561m
0G09站(興建中) - 出口
4.9分鐘 / 348m
1G10站(興建中) - 出口
7.6分鐘 / 561m

SinyiCare十大守護 信義房屋購售屋服務保障
建坪
2591.64坪
詳情
建坪單價
本物件含車位,詳洽經紀人員
地坪
382.06坪
主+陽
1310.55坪=
主建物
1299.65坪+
陽台
10.9坪
地下室
170.05坪
共有部份
1111.03坪
地坪單價
詳洽經紀人員
格局
73房10廳78衛12室
加蓋格局
--
屋齡
28.0年
類型
店面
樓層
B1-9樓/9樓
車位
45個坡道平面
邊間/暗房
是/是
建物朝向
東北
大門朝向
東北
落地窗朝向
東北
警衛管理
全天候
建物詳情
建物結構
鋼筋混凝土
外牆建材
二丁掛
每層戶數
10
謄本用途
商業用
使用分區
住宅區;
注意事項
--
收合
物件特色
藝文特區旁稀有物件
中正路門牌桃園首選
中正路上整棟透天型產
附近商家林立、機能強
中正路南來北往交通便利
適合飯店分館、商旅投資
未來性強
近未來綠線G09G10
類似物件實價登錄(10)
距離該物件1公里內,半年內成交,店面
共有10間與我相似的實價登錄物件
編輯篩選條件
列表
地圖
年月
地址
類型/車位
總價
單價
建坪
地坪
屋齡
樓層
格局
114年09月

桃園市桃園區正康一街210號
店面
1,300萬
59.35萬
21.9坪
8.32坪
46.3年
1樓/4樓
1房2廳1衛
歷史移轉3次
114年09月
店面桃園市桃園區正康一街210號移轉3次
1,300萬
59.35萬/坪
建坪21.9坪地坪8.32無車位
1房2廳1衛46.3年1樓/4樓
1房2廳1衛46.3年1樓/4樓
114年07月

桃園市桃園區民生路599巷1號
店面
有車位
1,300萬
含車位價
含車位價
30.82萬
含車位計算
含車位計算
42.18坪
含車位--坪
含車位--坪
6.73坪
29.9年
1樓/8樓
2房1廳1衛
歷史移轉2次
114年07月
店面桃園市桃園區民生路599巷1號移轉2次
1,300萬
含車位價
30.82萬/坪
含車位計算
建坪42.18坪(含車位--坪)地坪6.73有車位
2房1廳1衛29.9年1樓/8樓
2房1廳1衛29.9年1樓/8樓
114年10月

桃園市桃園區永康街49號
店面
1,000萬
38.64萬
25.88坪
5.54坪
45.0年
1樓/7樓
0衛
歷史移轉2次
114年10月
店面桃園市桃園區永康街49號移轉2次
1,000萬
38.64萬/坪
建坪25.88坪地坪5.54無車位
0衛45.0年1樓/7樓
0衛45.0年1樓/7樓
114年06月

桃園市桃園區民光東路332號
店面
有車位
6,063萬
含車位450萬
79.99萬
79.99萬
84.62坪
含車位14.45坪
10.86坪
0.0年
1樓/15樓
1衛
114年06月
店面桃園市桃園區民光東路332號6,063萬
含車位450萬
79.99萬/坪
79.99萬
建坪84.62坪
含車位14.45坪地坪10.86有車位
1衛0.0年1樓/15樓
1衛0.0年1樓/15樓
114年06月

桃園市桃園區民光東路330號
店面
有車位
10,575萬
含車位450萬
85萬
85萬
133.57坪
含車位14.45坪
18.45坪
0.0年
1樓/15樓
1衛
114年06月
店面桃園市桃園區民光東路330號10,575萬
含車位450萬
85萬/坪
85萬
建坪133.57坪
含車位14.45坪地坪18.45有車位
1衛0.0年1樓/15樓
1衛0.0年1樓/15樓
- 資料來源:
為信義房屋最新成交行情;
為內政部最新公布的實價登錄資料;
該數值為系統運算,詳細請看說明
- 本實價登錄分類係綜合內政部實價登錄2020年7月之建物型態分類調整,以及申報登錄之建物型態、建物權狀登載之「主要用途」資料推估而成,故資料呈現類型、順序可能會與內政部不動產交易實價查詢服務網之搜尋結果有所差異,請斟酌參考。看看我們如何推估實價登錄類型與順序
- 特殊行情物件可能為受到特別條件或特殊關係影響所造成,詳情請參考頁面之粉色「備註資訊」欄。排除特殊交易功能,開啟後可即時排除顯示申報備註中關係人間交易、特殊交易情況及標的類型、與政府有關之交易、僅車位交易、分件登記、含多筆土地或多棟建物、 交易標的僅有建物、土地面積為0(含地上權物件),及其他備註資訊,關閉後則會恢復顯示。
- 歷史移轉次數依據信義成交行情及政府實價登錄資訊推估,再由系統比對當筆與前一筆實價登錄,交易明細完全吻合方計算漲跌幅,當筆交易漲跌幅計算式為(當筆交易之成交總價/前一筆交易之成交總價)-1,計算百分比至小數點後兩位;可能與實際交易有所落差,資料請斟酌參考。
為信義房屋最新成交行情;- 本實價登錄分類係綜合內政部實價登錄2020年7月之建物型態分類調整,以及申報登錄之建物型態、建物權狀登載之「主要用途」資料推估而成,故資料呈現類型、順序可能會與內政部不動產交易實價查詢服務網之搜尋結果有所差異,請斟酌參考。看看我們如何推估實價登錄類型與順序
- 特殊行情物件可能為受到特別條件或特殊關係影響所造成,詳情請參考頁面之粉色「備註資訊」欄。排除特殊交易功能,開啟後可即時排除顯示申報備註中關係人間交易、特殊交易情況及標的類型、與政府有關之交易、僅車位交易、分件登記、含多筆土地或多棟建物、 交易標的僅有建物、土地面積為0(含地上權物件),及其他備註資訊,關閉後則會恢復顯示。
- 歷史移轉次數依據信義成交行情及政府實價登錄資訊推估,再由系統比對當筆與前一筆實價登錄,交易明細完全吻合方計算漲跌幅,當筆交易漲跌幅計算式為(當筆交易之成交總價/前一筆交易之成交總價)-1,計算百分比至小數點後兩位;可能與實際交易有所落差,資料請斟酌參考。
查看實價登錄
本案專家

根據你的設定值計算
5,484,023/月


