
請注意,上方物件照片如有街景,為物件附近環境介紹,非物件本身。
1/10
有8人也在關注這間👀
本案專家
更多挑選
按下按鈕表示您已同意本站
服務條款
與隱私權聲明
預約看屋
公園路透天
(0667SB)
台南市北區公園路
有8人也在關注這間👀
總價
1,488萬
建坪單價
23.57 萬/坪
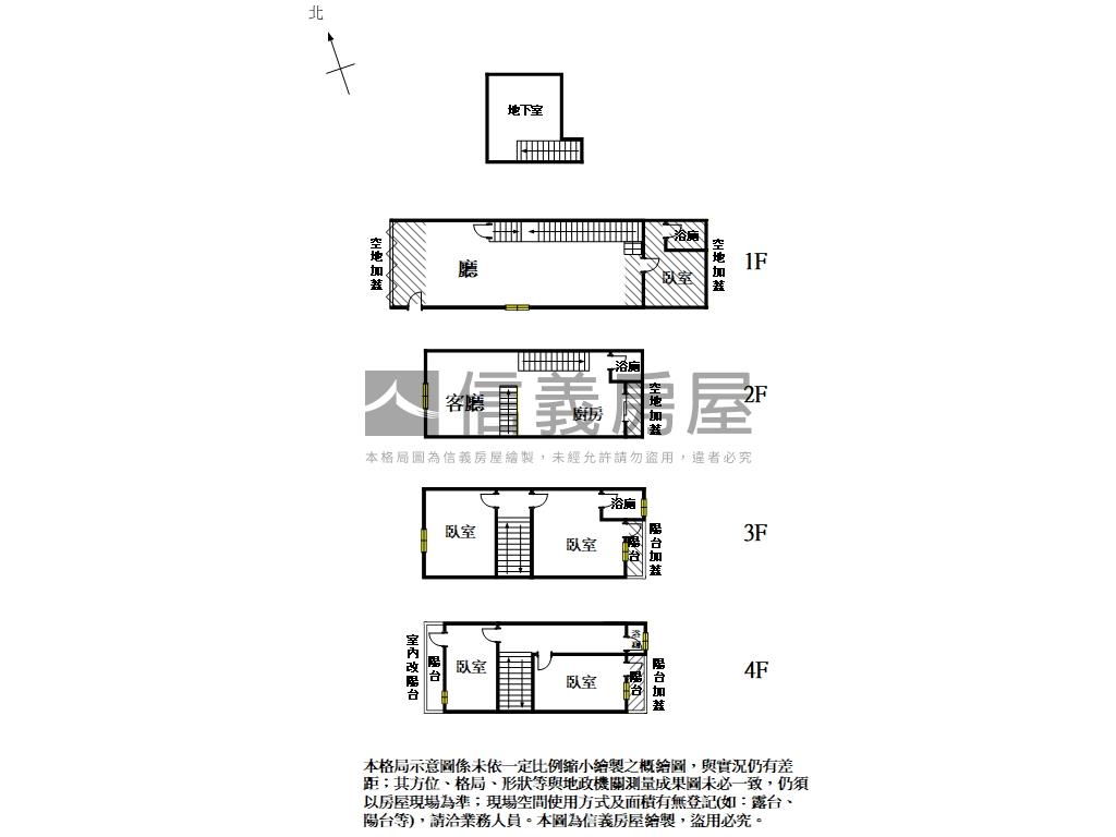
格局
5房2廳4衛
含加蓋1房1衛
房貸試算
計算
元/月
年|利率%概算|undefined年寬限期
符合首購資格嗎?
坪數詳情
細項
建坪63.12
主(含其他)63.12
地坪26.32
類型透天
屋齡46.3年
樓層B1-4樓/4樓
加蓋格局1房1衛
謄本用途住商用
使用分區見土地使用分區證明影本;
完整物件詳情
本案專家
更多挑選
物件特色
近延平國中,走路上學
近延平市場
全聯就在對面
YMCA補習方便
周邊生活機能


SinyiCare十大守護 信義房屋購售屋服務保障
點擊觀看生活機能
公車 (20)
公共自行車 (1)
停車場 (2)
0延平國中
2.9分鐘 / 180m
1延平國中
2.8分鐘 / 179m
2六甲里西
5.9分鐘 / 427m
3和緯路一段
3.6分鐘 / 245m
4延平市場(公園路)
3.3分鐘 / 242m
5六甲里西
6.8分鐘 / 482m
6和緯路一段
4.6分鐘 / 316m
7國際城
6.8分鐘 / 511m
8延平市場(長榮路)
5.2分鐘 / 376m
9建成市場
5分鐘 / 335m
A建成市場
5.2分鐘 / 348m
B延平市場(公園路)
4.9分鐘 / 350m
C新光三越台南小北門
7.8分鐘 / 543m
D延平市場(長榮路)
6.1分鐘 / 435m
E新光三越台南小北門
8.4分鐘 / 593m
F國際城
9.7分鐘 / 715m
G長榮路五段
8.1分鐘 / 574m
H成功國中
7.6分鐘 / 525m
I正風里
7.4分鐘 / 523m
J和緯育德路口
9.2分鐘 / 656m
0延平國中
2.9分鐘 / 180m
1延平國中
2.8分鐘 / 179m
2六甲里西
5.9分鐘 / 427m
3和緯路一段
3.6分鐘 / 245m
4延平市場(公園路)
3.3分鐘 / 242m
完整周邊生活圈

SinyiCare十大守護 信義房屋購售屋服務保障
類似物件實價登錄
(28)
1公里內 | 半年內 | 透天
3房1廳2衛
|19.15坪
|無車位
650萬33.93萬/坪
115/02成交
6房2廳5衛
|58.31坪
|無車位
2,195萬37.65萬/坪
115/01成交


