
1/20
請注意,上方物件照片如有街景,為物件附近環境介紹,非物件本身。
1/20
有70人也在關注這間👀
本案專家

預約看屋
按下送出表示您已同意本站
服務條款
與隱私權聲明
送出
☆前後明亮通風美寓大3房
(0985XX)
新北市蘆洲區三民路
有70人也在關注這間👀
詳情
總價
1,698萬
格局
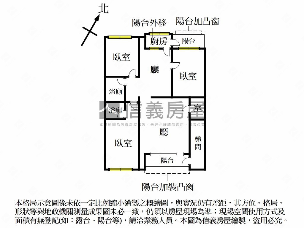
3房2廳2衛1室
建坪
31.93坪
(主+陽31.93坪)
類型
公寓
樓層
4樓/5樓
建坪單價
53.18 萬/坪
屋齡
36.6年
地坪
9.22坪
地坪單價
--

SinyiCare十大守護 信義房屋購售屋服務保障
點擊觀看生活機能
捷運 (5)公車 (32)公共自行車 (4)停車場 (2)
0三民高中站 - 出口1
4.8分鐘 / 334m
1三民高中站 - 出口2
4.2分鐘 / 305m
2蘆洲站 - 出口1
13.2分鐘 / 964m
3蘆洲站 - 出口2
13.2分鐘 / 963m
4蘆洲站 - 出口3
14.6分鐘 / 1059m
0三民高中站 - 出口1
4.8分鐘 / 334m
1三民高中站 - 出口2
4.2分鐘 / 305m
2蘆洲站 - 出口1
13.2分鐘 / 964m
3蘆洲站 - 出口2
13.2分鐘 / 963m
4蘆洲站 - 出口3
14.6分鐘 / 1059m

SinyiCare十大守護 信義房屋購售屋服務保障
建坪
31.93坪
詳情
建坪單價
53.18 萬/坪
地坪
9.22坪
主+陽
31.93坪=
主建物
28.44坪+
陽台
3.49坪
格局
3房2廳2衛1室
加蓋格局
--
屋齡
36.6年
類型
公寓
樓層
4樓/5樓
車位
--
邊間/暗房
否/否
建物朝向
西北
大門朝向
西北
落地窗朝向
西北
警衛管理
無
建物詳情
建物結構
鋼筋混凝土
外牆建材
二丁掛
每層戶數
2
謄本用途
住家用
使用分區
住宅區;
注意事項
--
收合
物件特色
大空間方正明亮好房子
房間開窗可放雙人床
步行約300m捷運站
近麥當勞星巴克機能好
前後陽台~空間寬闊舒適
交通機能佳生活便利
近學校多線公車可利用
網路一鍵預約專人服務
類似物件實價登錄(99)
距離該物件1公里內,半年內成交,公寓
共有99間與我相似的實價登錄物件
編輯篩選條件
列表
地圖
年月
地址
類型/車位
總價
單價
建坪
地坪
屋齡
樓層
格局
114年10月


民義街64巷2號5樓
公寓
1,038萬
30.42萬
34.12坪
7.66坪
39.8年
5樓/5樓
8房1廳8衛
備註資訊:頂樓加蓋;其他增建;
114年10月
公寓民義街64巷2號5樓1,038萬
30.42萬/坪
建坪34.12坪地坪7.66無車位
8房1廳8衛39.8年5樓/5樓
8房1廳8衛39.8年5樓/5樓
信義成交交易備註
114年07月

新北市蘆洲區民權路82巷7弄9號五樓
公寓
1,110萬
34.03萬
32.62坪
9.4坪
37.5年
5樓/5樓
4房4廳3衛
備註資訊:親友、員工、共有人或其他特殊關係間之交易;頂樓加蓋;
114年07月
公寓新北市蘆洲區民權路82巷7弄9號五樓1,110萬
34.03萬/坪
建坪32.62坪地坪9.4無車位
4房4廳3衛37.5年5樓/5樓
4房4廳3衛37.5年5樓/5樓
交易備註
114年07月

新北市蘆洲區民族路327巷81弄5號三樓
公寓
1,220萬
41.64萬
29.3坪
10.25坪
36.5年
3樓/5樓
3房2廳2衛
歷史移轉6次
114年07月
公寓新北市蘆洲區民族路327巷81弄5號三樓移轉6次
1,220萬
41.64萬/坪
建坪29.3坪地坪10.25無車位
3房2廳2衛36.5年3樓/5樓
3房2廳2衛36.5年3樓/5樓
115年01月

新北市蘆洲區民族路250巷16號五樓
公寓
700萬
20.76萬
33.72坪
9.37坪
38.6年
5樓/5樓
3房2廳2衛
備註資訊:親友、員工、共有人或其他特殊關係間之交易;頂樓加蓋;
115年01月
公寓新北市蘆洲區民族路250巷16號五樓700萬
20.76萬/坪
建坪33.72坪地坪9.37無車位
3房2廳2衛38.6年5樓/5樓
3房2廳2衛38.6年5樓/5樓
交易備註
115年01月

新北市蘆洲區和平路196號五樓
公寓
1,170萬
40.16萬
29.13坪
7.16坪
34.0年
5樓/5樓
3房2廳2衛
備註資訊:頂樓加蓋;其他增建;
115年01月
公寓新北市蘆洲區和平路196號五樓1,170萬
40.16萬/坪
建坪29.13坪地坪7.16無車位
3房2廳2衛34.0年5樓/5樓
3房2廳2衛34.0年5樓/5樓
交易備註
- 資料來源:
為信義房屋最新成交行情;
為內政部最新公布的實價登錄資料;
該數值為系統運算,詳細請看說明
- 本實價登錄分類係綜合內政部實價登錄2020年7月之建物型態分類調整,以及申報登錄之建物型態、建物權狀登載之「主要用途」資料推估而成,故資料呈現類型、順序可能會與內政部不動產交易實價查詢服務網之搜尋結果有所差異,請斟酌參考。看看我們如何推估實價登錄類型與順序
- 特殊行情物件可能為受到特別條件或特殊關係影響所造成,詳情請參考頁面之粉色「備註資訊」欄。排除特殊交易功能,開啟後可即時排除顯示申報備註中關係人間交易、特殊交易情況及標的類型、與政府有關之交易、僅車位交易、分件登記、含多筆土地或多棟建物、 交易標的僅有建物、土地面積為0(含地上權物件),及其他備註資訊,關閉後則會恢復顯示。
- 歷史移轉次數依據信義成交行情及政府實價登錄資訊推估,再由系統比對當筆與前一筆實價登錄,交易明細完全吻合方計算漲跌幅,當筆交易漲跌幅計算式為(當筆交易之成交總價/前一筆交易之成交總價)-1,計算百分比至小數點後兩位;可能與實際交易有所落差,資料請斟酌參考。
為信義房屋最新成交行情;- 本實價登錄分類係綜合內政部實價登錄2020年7月之建物型態分類調整,以及申報登錄之建物型態、建物權狀登載之「主要用途」資料推估而成,故資料呈現類型、順序可能會與內政部不動產交易實價查詢服務網之搜尋結果有所差異,請斟酌參考。看看我們如何推估實價登錄類型與順序
- 特殊行情物件可能為受到特別條件或特殊關係影響所造成,詳情請參考頁面之粉色「備註資訊」欄。排除特殊交易功能,開啟後可即時排除顯示申報備註中關係人間交易、特殊交易情況及標的類型、與政府有關之交易、僅車位交易、分件登記、含多筆土地或多棟建物、 交易標的僅有建物、土地面積為0(含地上權物件),及其他備註資訊,關閉後則會恢復顯示。
- 歷史移轉次數依據信義成交行情及政府實價登錄資訊推估,再由系統比對當筆與前一筆實價登錄,交易明細完全吻合方計算漲跌幅,當筆交易漲跌幅計算式為(當筆交易之成交總價/前一筆交易之成交總價)-1,計算百分比至小數點後兩位;可能與實際交易有所落差,資料請斟酌參考。
查看實價登錄
本案專家

根據你的設定值計算
86,221/月


