
請注意,上方物件照片如有街景,為物件附近環境介紹,非物件本身。
1/19
有183人也在關注這間👀
本案專家
更多挑選
按下按鈕表示您已同意本站
服務條款
與隱私權聲明
預約看屋
正中清路醫美診所金透店
(1012PH)
台中市北區中清路一段
有183人也在關注這間👀
總價
7,300萬
9,888萬
建坪單價
43.37 萬/坪
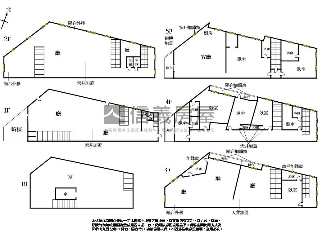
格局
8房8廳13衛2室
含加蓋4房2廳4衛
房貸試算
計算
元/月
年|利率%概算|undefined年寬限期
符合首購資格嗎?
坪數詳情
細項
建坪168.33
主(含其他)168.33
地坪48.33
類型店面
屋齡50.5年
樓層B1-4樓/4樓
加蓋格局4房2廳4衛
謄本用途商業用
使用分區第一種商業區;
完整物件詳情
本案專家
更多挑選
物件特色
中國醫生活圈宜開診所
近未來橘線捷運站
近科博館生活圈人潮多
自用收租兩相宜
交通方便四通八達
三面採光明亮舒適
大地坪室內空間好規劃
買方服務費成交價1%
周邊生活機能


SinyiCare十大守護 信義房屋購售屋服務保障
點擊觀看生活機能
公車 (23)
公共自行車 (2)
0邱厝里
0.8分鐘 / 59m
1中清健行路口
3.5分鐘 / 216m
2中清健行路口
3.8分鐘 / 226m
3中清英才路口
4.1分鐘 / 290m
4五權國中
4.8分鐘 / 340m
5中清英才路口
4.1分鐘 / 294m
6健行尚德街口
5.7分鐘 / 372m
7五權國中
5.1分鐘 / 378m
8健行尚德街口
6.4分鐘 / 426m
9篤行國小
7.9分鐘 / 514m
A臺中二中
6.3分鐘 / 444m
B篤行國小
8分鐘 / 524m
C臺中二中(梅川東路)
8分鐘 / 543m
D健行國小
8.3分鐘 / 530m
E健行國小
8.4分鐘 / 536m
F健行學士路口
8.5分鐘 / 586m
G中國醫藥大學
7.4分鐘 / 534m
H大道公廟(中清路)
7.3分鐘 / 460m
I健行學士路口
8.5分鐘 / 591m
J大道公廟(中清路)
7.6分鐘 / 473m
K中國醫藥大學
7.9分鐘 / 567m
L學士健行路口
9.7分鐘 / 671m
M臺中二中
7.4分鐘 / 537m
0邱厝里
0.8分鐘 / 59m
1中清健行路口
3.5分鐘 / 216m
2中清健行路口
3.8分鐘 / 226m
3中清英才路口
4.1分鐘 / 290m
4五權國中
4.8分鐘 / 340m
完整周邊生活圈


SinyiCare十大守護 信義房屋購售屋服務保障
類似物件實價登錄
(15)
1公里內 | 半年內 | 店面
10房1廳10衛
|59.16坪
|無車位
1,860萬31.44萬/坪
115/03成交
6房2廳4衛
|87.41坪
|無車位
2,530萬28.94萬/坪
115/03成交


