
請注意,上方物件照片如有街景,為物件附近環境介紹,非物件本身。
1/14
有94人也在關注這間👀
本案專家
更多挑選
按下按鈕表示您已同意本站
服務條款
與隱私權聲明
預約看屋
新案!南台整棟宿舍透天
(1088NB)
台南市永康區南台街
有94人也在關注這間👀
總價
3,998萬
建坪單價
29.60 萬/坪
格局
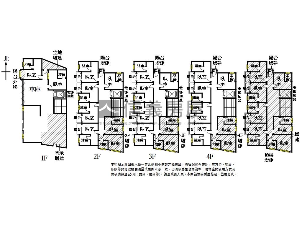
30房30衛
含加蓋13房13衛
房貸試算
計算
元/月
年|利率%概算|undefined年寬限期
符合首購資格嗎?
坪數詳情
細項
建坪135.08
主+陽(含其他)135.08
地坪61.99
類型透天
屋齡18.8年
樓層1-4樓/4樓
加蓋格局13房13衛
謄本用途住家用
使用分區見土地使用分區證明影本;
完整物件詳情
本案專家
更多挑選
物件特色
間間套房浴室開窗
投資首選租金收益
近南台生活商圈
投資置產標地首選
屋齡約20年透天
近奇美醫院生活機能佳
一樓車庫為停機車空間
歡迎網路預約專人服務
周邊生活機能


SinyiCare十大守護 信義房屋購售屋服務保障
點擊觀看生活機能
台鐵 (1)
公車 (8)
公共自行車 (3)
停車場 (2)
0大橋站
12分鐘 / 837m
0大橋站
12分鐘 / 837m

SinyiCare十大守護 信義房屋購售屋服務保障
類似物件實價登錄
(21)
1公里內 | 半年內 | 透天
5房2廳2衛
|30.28坪
|無車位
410萬13.54萬/坪
115/02成交
4房2廳3衛
|48.76坪
|無車位
640萬13.13萬/坪
114/12成交


