
1/18
請注意,上方物件照片如有街景,為物件附近環境介紹,非物件本身。
1/18
有112人也在關注這間👀
本案專家

預約看屋
按下送出表示您已同意本站
服務條款
與隱私權聲明
送出
專◆大地坪邊間臨路透店
(1269BV)
台中市大里區好來五街
有112人也在關注這間👀
詳情
總價
1,398萬
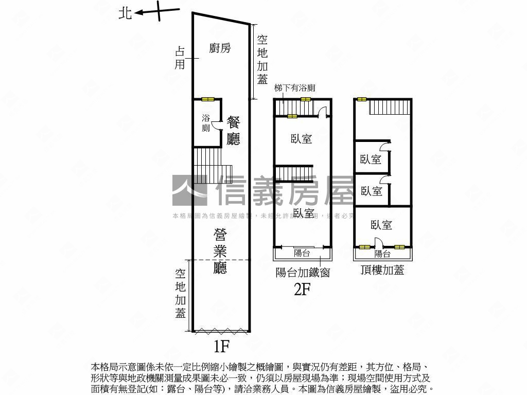
格局
5房2廳2衛
建坪
27.23坪
(主建物27.23坪)
類型
透天/店面
樓層
1-2樓/2樓
建坪單價
51.34 萬/坪
屋齡
48.8年
地坪
31.97坪
地坪單價
--

SinyiCare十大守護 信義房屋購售屋服務保障

點擊觀看生活機能
公車 (12)公共自行車 (1)
0甲堤2(甲堤十街)
5.1分鐘 / 374m
1新仁好來一街口
4.4分鐘 / 314m
2立新國小
3.9分鐘 / 289m
3新仁好來一街口
4.4分鐘 / 314m
4甲堤2(甲堤十街)
5.6分鐘 / 410m
5立仁路57巷口
6.3分鐘 / 453m
6立新國小
4.6分鐘 / 336m
7甲堤南甲堤六街口
8.1分鐘 / 599m
8立新國中
7.8分鐘 / 579m
9新仁永豐路口
8分鐘 / 573m
A新仁永豐路口
8.1分鐘 / 580m
B立仁路157巷口
10.1分鐘 / 724m
0甲堤2(甲堤十街)
5.1分鐘 / 374m
1新仁好來一街口
4.4分鐘 / 314m
2立新國小
3.9分鐘 / 289m
3新仁好來一街口
4.4分鐘 / 314m
4甲堤2(甲堤十街)
5.6分鐘 / 410m
觀看全部

SinyiCare十大守護 信義房屋購售屋服務保障
建坪
27.23坪
詳情
建坪單價
51.34 萬/坪
地坪
31.97坪
主建物
27.23坪
格局
2房1廳2衛
加蓋格局
3房1廳
屋齡
48.8年
類型
透天/店面
樓層
1-2樓/2樓
車位
--
邊間/暗房
是/否
建物朝向
西
大門朝向
西
落地窗朝向
西
警衛管理
無
建物詳情
建物結構
加強磚造
外牆建材
方塊磚
每層戶數
1
謄本用途
住家用
使用分區
鄉村區乙種建築用地;
注意事項
--
收合
物件特色
大地坪邊間臨路透店
1樓可當店面使用
近立新國小國中
屋況需自行整理
屋主誠意出售
近74號道南來北往方便
線上預約,專人帶看
買方服務費成交價1%
類似物件實價登錄(35)
距離該物件1公里內,半年內成交,別墅/透天/店面
共有35間與我相似的實價登錄物件
編輯篩選條件
列表
地圖
年月
地址
類型/車位
總價
單價
建坪
地坪
屋齡
樓層
格局
114年11月

台中市太平區新仁路一段192號
店面
1,450萬
48.88萬
29.67坪
29.3坪
48.8年
1樓/2樓
2房1廳2衛
114年11月
店面台中市太平區新仁路一段192號1,450萬
48.88萬/坪
建坪29.67坪地坪29.3無車位
2房1廳2衛48.8年1樓/2樓
2房1廳2衛48.8年1樓/2樓
114年11月

台中市大里區立仁四路28號
店面
1,280萬
42.53萬
30.1坪
29.93坪
45.9年
1樓/2樓
4房3廳3衛
114年11月
店面台中市大里區立仁四路28號1,280萬
42.53萬/坪
建坪30.1坪地坪29.93無車位
4房3廳3衛45.9年1樓/2樓
4房3廳3衛45.9年1樓/2樓
114年10月

台中市大里區新仁七街83巷8號
別墅/透天
1,250萬
39.52萬
31.63坪
39.3坪
44.8年
1樓/2樓
4房2廳2衛
備註資訊:頂樓加蓋;
114年10月
別墅/透天台中市大里區新仁七街83巷8號1,250萬
39.52萬/坪
建坪31.63坪地坪39.3無車位
4房2廳2衛44.8年1樓/2樓
4房2廳2衛44.8年1樓/2樓
交易備註
114年09月


新仁七街47巷16號
別墅/透天
870萬
34.17萬
25.46坪
26.7坪
44.7年
1樓/2樓
4房2廳2衛
備註資訊:頂樓加蓋;其他增建;
114年09月
別墅/透天新仁七街47巷16號870萬
34.17萬/坪
建坪25.46坪地坪26.7無車位
4房2廳2衛44.7年1樓/2樓
4房2廳2衛44.7年1樓/2樓
信義成交交易備註
114年08月

台中市大里區公教街19號
別墅/透天
444萬
13.85萬
32.06坪
36.82坪
44.9年
1樓/2樓
4房2廳2衛
備註資訊:親友、員工、共有人或其他特殊關係間之交易;
114年08月
別墅/透天台中市大里區公教街19號444萬
13.85萬/坪
建坪32.06坪地坪36.82無車位
4房2廳2衛44.9年1樓/2樓
4房2廳2衛44.9年1樓/2樓
交易備註
- 資料來源:
為信義房屋最新成交行情;
為內政部最新公布的實價登錄資料;
該數值為系統運算,詳細請看說明
- 本實價登錄分類係綜合內政部實價登錄2020年7月之建物型態分類調整,以及申報登錄之建物型態、建物權狀登載之「主要用途」資料推估而成,故資料呈現類型、順序可能會與內政部不動產交易實價查詢服務網之搜尋結果有所差異,請斟酌參考。看看我們如何推估實價登錄類型與順序
- 特殊行情物件可能為受到特別條件或特殊關係影響所造成,詳情請參考頁面之粉色「備註資訊」欄。排除特殊交易功能,開啟後可即時排除顯示申報備註中關係人間交易、特殊交易情況及標的類型、與政府有關之交易、僅車位交易、分件登記、含多筆土地或多棟建物、 交易標的僅有建物、土地面積為0(含地上權物件),及其他備註資訊,關閉後則會恢復顯示。
- 歷史移轉次數依據信義成交行情及政府實價登錄資訊推估,再由系統比對當筆與前一筆實價登錄,交易明細完全吻合方計算漲跌幅,當筆交易漲跌幅計算式為(當筆交易之成交總價/前一筆交易之成交總價)-1,計算百分比至小數點後兩位;可能與實際交易有所落差,資料請斟酌參考。
為信義房屋最新成交行情;- 本實價登錄分類係綜合內政部實價登錄2020年7月之建物型態分類調整,以及申報登錄之建物型態、建物權狀登載之「主要用途」資料推估而成,故資料呈現類型、順序可能會與內政部不動產交易實價查詢服務網之搜尋結果有所差異,請斟酌參考。看看我們如何推估實價登錄類型與順序
- 特殊行情物件可能為受到特別條件或特殊關係影響所造成,詳情請參考頁面之粉色「備註資訊」欄。排除特殊交易功能,開啟後可即時排除顯示申報備註中關係人間交易、特殊交易情況及標的類型、與政府有關之交易、僅車位交易、分件登記、含多筆土地或多棟建物、 交易標的僅有建物、土地面積為0(含地上權物件),及其他備註資訊,關閉後則會恢復顯示。
- 歷史移轉次數依據信義成交行情及政府實價登錄資訊推估,再由系統比對當筆與前一筆實價登錄,交易明細完全吻合方計算漲跌幅,當筆交易漲跌幅計算式為(當筆交易之成交總價/前一筆交易之成交總價)-1,計算百分比至小數點後兩位;可能與實際交易有所落差,資料請斟酌參考。
查看實價登錄
本案專家

根據你的設定值計算
70,988/月


