
請注意,上方物件照片如有街景,為物件附近環境介紹,非物件本身。
1/22
有137人也在關注這間👀
本案專家
更多挑選
按下按鈕表示您已同意本站
服務條款
與隱私權聲明
預約看屋
有137人也在關注這間👀
總價
2,288萬
含車位價
建坪單價
本物件含車位,詳洽經紀人員
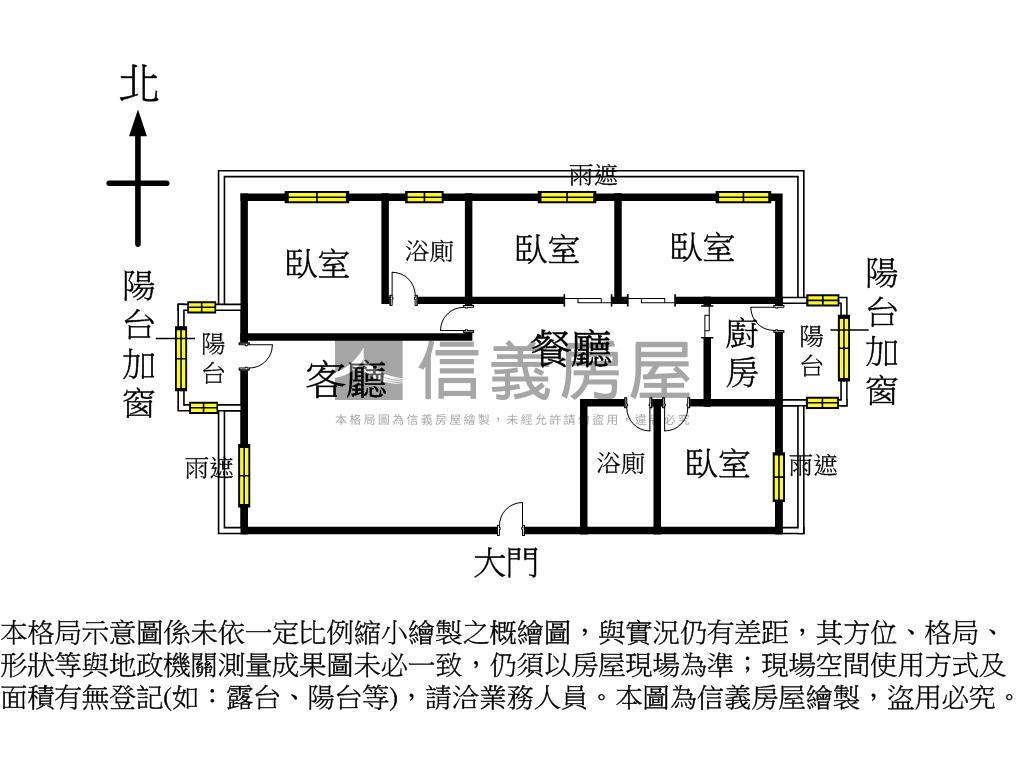
格局
4房2廳2衛
房貸試算
計算
元/月
年|利率%概算|undefined年寬限期
符合首購資格嗎?
坪數詳情
細項
建坪62.83
主+陽(含其他)34.7
地坪9.05
類型大樓
屋齡18.6年
樓層9樓/13樓
管理費
約3,319 元/月
加蓋格局--
謄本用途住家用
使用分區第五種住宅區;
完整物件詳情
本案專家
更多挑選
物件特色
新市鎮蛋黃區機能佳
四房空間好運用
社區門口有公車站牌
步行可達全聯家樂福
周邊生活機能


SinyiCare十大守護 信義房屋購售屋服務保障
點擊觀看生活機能
捷運 (4)
公車 (30)
公共自行車 (2)
停車場 (4)
0新市一路站 - 出口
9.1分鐘 / 591m
1淡水行政中心站 - 出口
10.6分鐘 / 779m
2淡金北新站 - 出口
14.2分鐘 / 947m
3重建街站(興建中) - 出口
16.6分鐘 / 1155m
0新市一路站 - 出口
9.1分鐘 / 591m
1淡水行政中心站 - 出口
10.6分鐘 / 779m
2淡金北新站 - 出口
14.2分鐘 / 947m
3重建街站(興建中) - 出口
16.6分鐘 / 1155m


SinyiCare十大守護 信義房屋購售屋服務保障
類似物件實價登錄
(151)


