
請注意,上方物件照片如有街景,為物件附近環境介紹,非物件本身。
1/22
有141人也在關注這間👀
本案專家
更多挑選
按下按鈕表示您已同意本站
服務條款
與隱私權聲明
預約看屋
約10米面寬大地坪透店優
(1381UX)
台中市北區陝西八街
有141人也在關注這間👀
總價
6,888萬
建坪單價
80.22 萬/坪
格局
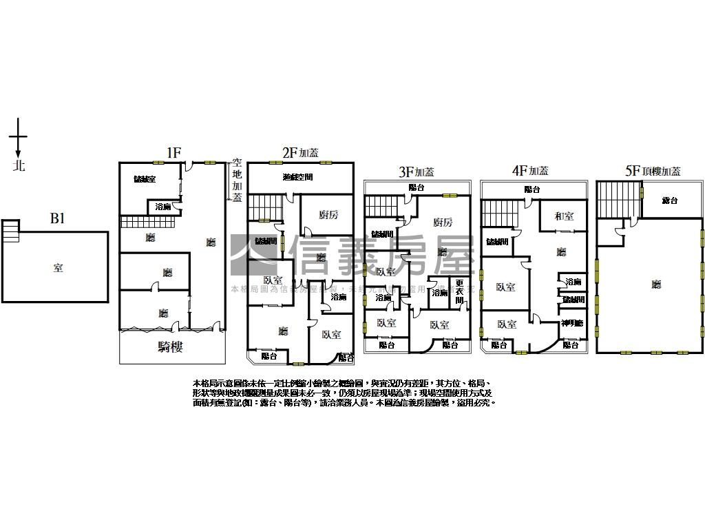
7房10廳5衛3室
含加蓋7房6廳4衛2室
房貸試算
計算
元/月
年|利率%概算|undefined年寬限期
符合首購資格嗎?
坪數詳情
細項
建坪85.86
主(含其他)85.86
地坪90.75
類型店面/透天
屋齡41.4年
樓層B1-1樓/1樓
加蓋格局7房6廳4衛2室
謄本用途住商用
使用分區第二種住宅區;
完整物件詳情
本案專家
更多挑選
物件特色
地坪約90.75坪
有預留電梯井,好利用
三面採光,使用空間大
面寬約10米貨車可進
土地方正,格局方正
重慶漢口雙熱鬧商圈
適合三代同堂大家庭
適中小型企業總部入駐
周邊生活機能


SinyiCare十大守護 信義房屋購售屋服務保障
點擊觀看生活機能
捷運 (2)
公車 (9)
公共自行車 (3)
停車場 (1)
0文華高中站 - 出口
14.9分鐘 / 1042m
1文心中清站 - 出口
15.2分鐘 / 1072m
0文華高中站 - 出口
14.9分鐘 / 1042m
1文心中清站 - 出口
15.2分鐘 / 1072m


SinyiCare十大守護 信義房屋購售屋服務保障
類似物件實價登錄
(27)
1公里內 | 半年內 | 店面/透天
3房2廳1衛
|29.51坪
|無車位
800萬27.11萬/坪
114/12成交
4房2廳3衛
|48.65坪
|無車位
1,200萬24.66萬/坪
114/11成交


