
1/22
請注意,上方物件照片如有街景,為物件附近環境介紹,非物件本身。
1/22
有464人也在關注這間👀
本案專家

預約看屋
按下送出表示您已同意本站
服務條款
與隱私權聲明
送出
文化中心稀有五福學區透店
(1468PS)
高雄市新興區信守街
有464人也在關注這間👀
詳情
總價
2,380萬
格局
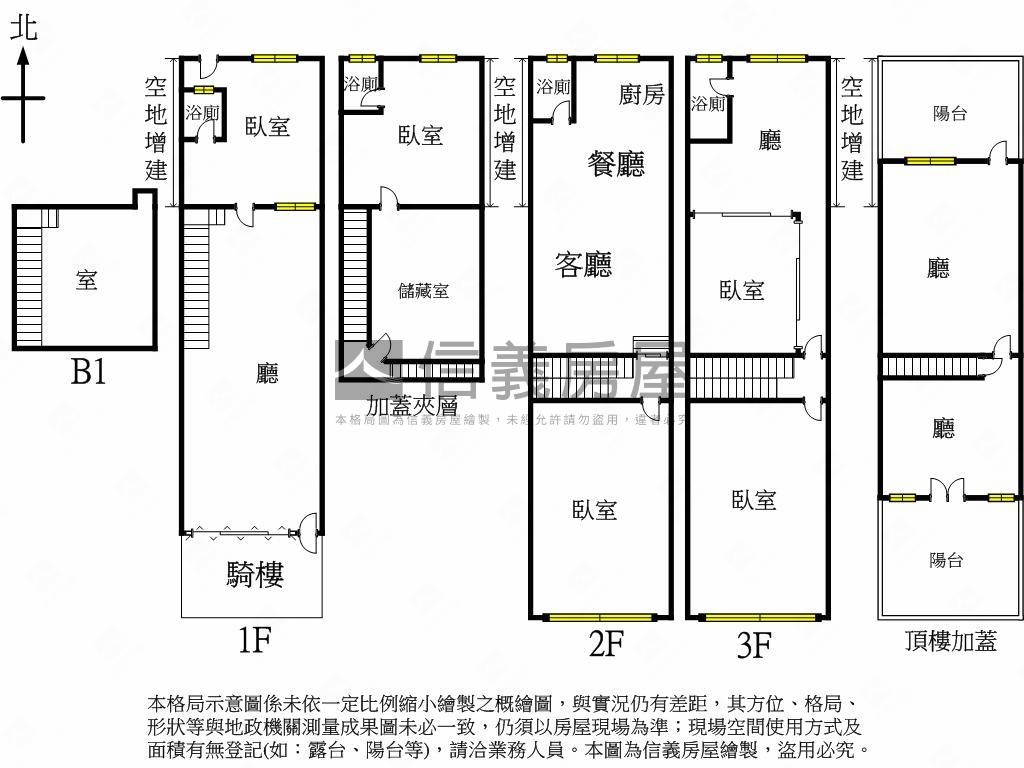
5房6廳4衛2室
建坪
45.98坪
(主建物42.61坪)
類型
店面/透天
樓層
1-3樓/3樓
建坪單價
51.76 萬/坪
屋齡
52.6年
地坪
22.08坪
地坪單價
107.79 萬/坪

SinyiCare十大守護 信義房屋購售屋服務保障
點擊觀看生活機能
捷運 (10)公車 (21)公共自行車 (2)停車場 (7)
0文化中心站 - 出口1
3.9分鐘 / 287m
1文化中心站 - 出口2
4.7分鐘 / 334m
2信義國小站 - 出口5
5.1分鐘 / 337m
3信義國小站 - 出口4
5.6分鐘 / 365m
4文化中心站 - 出口4
6分鐘 / 440m
5信義國小站 - 出口1
6.9分鐘 / 473m
6信義國小站 - 出口2
6.9分鐘 / 472m
7文化中心站 - 出口3
6.9分鐘 / 473m
8信義國小站 - 出口3
8.6分鐘 / 585m
9凱旋公園站 - 出口
12.8分鐘 / 921m
0文化中心站 - 出口1
3.9分鐘 / 287m
1文化中心站 - 出口2
4.7分鐘 / 334m
2信義國小站 - 出口5
5.1分鐘 / 337m
3信義國小站 - 出口4
5.6分鐘 / 365m
4文化中心站 - 出口4
6分鐘 / 440m
觀看全部

SinyiCare十大守護 信義房屋購售屋服務保障
建坪
45.98坪
詳情
建坪單價
51.76 萬/坪
地坪
22.08坪
主建物
42.61坪
騎樓
3.37坪
地坪單價
107.79 萬/坪
格局
3房2廳
加蓋格局
2房4廳4衛2室
屋齡
52.6年
類型
店面/透天
樓層
1-3樓/3樓
車位
--
邊間/暗房
否/否
建物朝向
南
大門朝向
南
落地窗朝向
南
警衛管理
無
建物詳情
建物結構
加強磚造
外牆建材
二丁掛
每層戶數
1
謄本用途
店舖、住宅
使用分區
第五種商業區;
注意事項
--
收合
物件特色
格局方正空間大好規劃
信義國小五福國中學區
騎樓式透天●停車便利
步行約5分達捷運站
近未來Y11●潛力佳
商辦林立●生活機能佳
近文化中心●綠意盎然
收租置產●自住兩相宜
類似物件實價登錄(29)
距離該物件1公里內,半年內成交,店面/別墅/透天
共有29間與我相似的實價登錄物件
編輯篩選條件
列表
地圖
年月
地址
類型/車位
總價
單價
建坪
地坪
屋齡
樓層
格局
備註資訊:含傢俱設備費;其他增建;
114年10月


尚義街136巷42號
別墅/透天
1,400萬
66.41萬
21.08坪
18.76坪
53.1年
1樓/2樓
2房2廳2衛
114年10月
別墅/透天尚義街136巷42號1,400萬
66.41萬/坪
建坪21.08坪地坪18.76無車位
2房2廳2衛53.1年1樓/2樓
2房2廳2衛53.1年1樓/2樓
信義成交備註資訊:頂樓加蓋;其他增建;
114年10月

高雄市苓雅區民族二路88巷51號
別墅/透天
660萬
27.83萬
23.72坪
22.08坪
52.8年
1樓/2樓
3房2廳2衛
備註資訊:親友、員工、共有人或其他特殊關係間之交易;
114年10月
別墅/透天高雄市苓雅區民族二路88巷51號660萬
27.83萬/坪
建坪23.72坪地坪22.08無車位
3房2廳2衛52.8年1樓/2樓
3房2廳2衛52.8年1樓/2樓
交易備註
- 資料來源:
為信義房屋最新成交行情;
為內政部最新公布的實價登錄資料;
該數值為系統運算,詳細請看說明
- 本實價登錄分類係綜合內政部實價登錄2020年7月之建物型態分類調整,以及申報登錄之建物型態、建物權狀登載之「主要用途」資料推估而成,故資料呈現類型、順序可能會與內政部不動產交易實價查詢服務網之搜尋結果有所差異,請斟酌參考。看看我們如何推估實價登錄類型與順序
- 特殊行情物件可能為受到特別條件或特殊關係影響所造成,詳情請參考頁面之粉色「備註資訊」欄。排除特殊交易功能,開啟後可即時排除顯示申報備註中關係人間交易、特殊交易情況及標的類型、與政府有關之交易、僅車位交易、分件登記、含多筆土地或多棟建物、 交易標的僅有建物、土地面積為0(含地上權物件),及其他備註資訊,關閉後則會恢復顯示。
- 歷史移轉次數依據信義成交行情及政府實價登錄資訊推估,再由系統比對當筆與前一筆實價登錄,交易明細完全吻合方計算漲跌幅,當筆交易漲跌幅計算式為(當筆交易之成交總價/前一筆交易之成交總價)-1,計算百分比至小數點後兩位;可能與實際交易有所落差,資料請斟酌參考。
為信義房屋最新成交行情;- 本實價登錄分類係綜合內政部實價登錄2020年7月之建物型態分類調整,以及申報登錄之建物型態、建物權狀登載之「主要用途」資料推估而成,故資料呈現類型、順序可能會與內政部不動產交易實價查詢服務網之搜尋結果有所差異,請斟酌參考。看看我們如何推估實價登錄類型與順序
- 特殊行情物件可能為受到特別條件或特殊關係影響所造成,詳情請參考頁面之粉色「備註資訊」欄。排除特殊交易功能,開啟後可即時排除顯示申報備註中關係人間交易、特殊交易情況及標的類型、與政府有關之交易、僅車位交易、分件登記、含多筆土地或多棟建物、 交易標的僅有建物、土地面積為0(含地上權物件),及其他備註資訊,關閉後則會恢復顯示。
- 歷史移轉次數依據信義成交行情及政府實價登錄資訊推估,再由系統比對當筆與前一筆實價登錄,交易明細完全吻合方計算漲跌幅,當筆交易漲跌幅計算式為(當筆交易之成交總價/前一筆交易之成交總價)-1,計算百分比至小數點後兩位;可能與實際交易有所落差,資料請斟酌參考。
查看實價登錄
本案專家

根據你的設定值計算
120,852/月


