
請注意,上方物件照片如有街景,為物件附近環境介紹,非物件本身。
1/17
有37人也在關注這間👀
本案專家
更多挑選
按下按鈕表示您已同意本站
服務條款
與隱私權聲明
預約看屋
中華西路店面
(1550GG)
彰化縣彰化市中華西路
有37人也在關注這間👀
總價
2,880萬
建坪單價
55.35 萬/坪
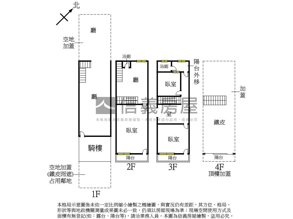
格局
3房3廳2衛1室
含加蓋1廳
房貸試算
計算
元/月
年|利率%概算|undefined年寬限期
符合首購資格嗎?
坪數詳情
細項
建坪52.03
主(含其他)52.03
地坪24.81
類型店面/透天
屋齡51.6年
樓層1-3樓/3樓
加蓋格局1廳
謄本用途住家用
使用分區見土地使用分區證明影本;
完整物件詳情
本案專家
更多挑選
物件特色
正中華西路
店住皆適合
採光一級棒
近國道一號
生活便利採買方便
格局方正好利用
門前約32米路
買方服務費成交價1%
周邊生活機能


SinyiCare十大守護 信義房屋購售屋服務保障
點擊觀看生活機能
停車場 (1)
0彰化縣停車場
4.9分鐘 / 321m
0彰化縣停車場
4.9分鐘 / 321m


SinyiCare十大守護 信義房屋購售屋服務保障
類似物件實價登錄
(19)
1公里內 | 半年內 | 店面/透天
5房2廳4衛
|49.55坪
|無車位
1,100萬22.2萬/坪
115/01成交
3房3廳4衛
|47.6坪
|無車位
1,520萬31.93萬/坪
114/12成交


