
1/11
請注意,上方物件照片如有街景,為物件附近環境介紹,非物件本身。
1/11
有98人也在關注這間👀
本案專家

預約看屋
按下送出表示您已同意本站
服務條款
與隱私權聲明
送出
中山國小捷運靜巷方便一樓
(1928AL)
台北市中山區新生北路三段
有98人也在關注這間👀
詳情
總價
2,800萬
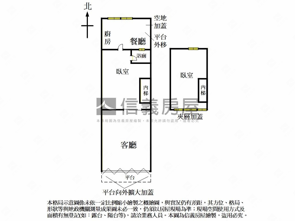
格局
2房2廳1衛
建坪
22.4坪
(主建物18.72坪)
類型
店面/辦公
樓層
1樓/10樓
建坪單價
125.00 萬/坪
屋齡
45.6年
地坪
2.59坪
地坪單價
--

SinyiCare十大守護 信義房屋購售屋服務保障
點擊觀看生活機能
捷運 (18)公車 (32)公共自行車 (6)停車場 (8)
0中山國小站 - 出口4
6.7分鐘 / 469m
1中山國小站 - 出口1
7.7分鐘 / 544m
2中山國小站 - 出口3
8.8分鐘 / 540m
3中山國小站 - 出口2
8.8分鐘 / 605m
4民權西路站 - 出口9
14.4分鐘 / 995m
5民權西路站 - 出口8
15.9分鐘 / 1059m
6民權西路站 - 出口7
16.6分鐘 / 1109m
7民權西路站 - 出口10
15.6分鐘 / 1089m
8行天宮站 - 出口4
17.7分鐘 / 1221m
9民權西路站 - 出口3
18.5分鐘 / 1248m
A民權西路站 - 出口1
17.9分鐘 / 1203m
B民權西路站 - 出口4
18.5分鐘 / 1252m
C圓山站 - 出口1
18.1分鐘 / 1255m
D民權西路站 - 出口2
18.9分鐘 / 1281m
E行天宮站 - 出口3
19.1分鐘 / 1299m
F民權西路站 - 出口5
16.6分鐘 / 1156m
G圓山站 - 出口2
19.7分鐘 / 1378m
H民權西路站 - 出口6
18.8分鐘 / 1296m
0中山國小站 - 出口4
6.7分鐘 / 469m
1中山國小站 - 出口1
7.7分鐘 / 544m
2中山國小站 - 出口3
8.8分鐘 / 540m
3中山國小站 - 出口2
8.8分鐘 / 605m
4民權西路站 - 出口9
14.4分鐘 / 995m
觀看全部

SinyiCare十大守護 信義房屋購售屋服務保障
建坪
22.4坪
詳情
建坪單價
125.00 萬/坪
地坪
2.59坪
主建物
18.72坪
共有部份
1.6坪
平台
2.08坪
格局
1房2廳1衛
加蓋格局
1房
屋齡
45.6年
類型
店面/辦公
樓層
1樓/10樓
車位
--
邊間/暗房
是/是
建物朝向
南
大門朝向
南
落地窗朝向
南
警衛管理
日間
管理費
300 元/月
建物詳情
建物結構
鋼筋混凝土
外牆建材
方塊磚
每層戶數
6
謄本用途
停車場、店舖
使用分區
因土地筆數過多或分區內容過長,請詳見不動產說明書或使用分區證明文件
注意事項
--
收合
物件特色
近捷運中山國小站
晴光市場、全聯機能佳
超商銀行多、郵局便利
南北黃金座向好屋
公園靜巷宜人舒適使用
方便停車低總價一樓
使用空間大好利用
網路APP預約專人服務
類似物件實價登錄(60)
距離該物件1公里內,半年內成交,店面/辦公
共有60間與我相似的實價登錄物件
編輯篩選條件
列表
地圖
年月
地址
類型/車位
總價
單價
建坪
地坪
屋齡
樓層
格局
114年08月

台北市中山區新生北路三段84巷38號二樓
辦公
1,200萬
57.88萬
20.73坪
5.51坪
40.7年
2樓/5樓
2房1廳1衛
備註資訊:陽台外推;
114年08月
辦公台北市中山區新生北路三段84巷38號二樓1,200萬
57.88萬/坪
建坪20.73坪地坪5.51無車位
2房1廳1衛40.7年2樓/5樓
2房1廳1衛40.7年2樓/5樓
交易備註
114年08月


新生北路三段88巷46號5樓
辦公
1,150萬
54.89萬
20.95坪
5.87坪
48.0年
5樓/5樓
4房2廳2衛
備註資訊:陽台外推;其他增建;
114年08月
辦公新生北路三段88巷46號5樓1,150萬
54.89萬/坪
建坪20.95坪地坪5.87無車位
4房2廳2衛48.0年5樓/5樓
4房2廳2衛48.0年5樓/5樓
信義成交交易備註
114年12月

台北市中山區中山北路三段25號二樓之28
辦公
220萬
37.64萬
5.84坪
0.28坪
47.9年
2樓/14樓
0衛
備註資訊:親友、員工、共有人或其他特殊關係間之交易;
114年12月
辦公台北市中山區中山北路三段25號二樓之28220萬
37.64萬/坪
建坪5.84坪地坪0.28無車位
0衛47.9年2樓/14樓
0衛47.9年2樓/14樓
交易備註
114年11月
辦公台北市中山區林森北路413號九樓之251,053萬
59.99萬/坪
- 資料來源:
為信義房屋最新成交行情;
為內政部最新公布的實價登錄資料;
該數值為系統運算,詳細請看說明
- 本實價登錄分類係綜合內政部實價登錄2020年7月之建物型態分類調整,以及申報登錄之建物型態、建物權狀登載之「主要用途」資料推估而成,故資料呈現類型、順序可能會與內政部不動產交易實價查詢服務網之搜尋結果有所差異,請斟酌參考。看看我們如何推估實價登錄類型與順序
- 特殊行情物件可能為受到特別條件或特殊關係影響所造成,詳情請參考頁面之粉色「備註資訊」欄。排除特殊交易功能,開啟後可即時排除顯示申報備註中關係人間交易、特殊交易情況及標的類型、與政府有關之交易、僅車位交易、分件登記、含多筆土地或多棟建物、 交易標的僅有建物、土地面積為0(含地上權物件),及其他備註資訊,關閉後則會恢復顯示。
- 歷史移轉次數依據信義成交行情及政府實價登錄資訊推估,再由系統比對當筆與前一筆實價登錄,交易明細完全吻合方計算漲跌幅,當筆交易漲跌幅計算式為(當筆交易之成交總價/前一筆交易之成交總價)-1,計算百分比至小數點後兩位;可能與實際交易有所落差,資料請斟酌參考。
為信義房屋最新成交行情;- 本實價登錄分類係綜合內政部實價登錄2020年7月之建物型態分類調整,以及申報登錄之建物型態、建物權狀登載之「主要用途」資料推估而成,故資料呈現類型、順序可能會與內政部不動產交易實價查詢服務網之搜尋結果有所差異,請斟酌參考。看看我們如何推估實價登錄類型與順序
- 特殊行情物件可能為受到特別條件或特殊關係影響所造成,詳情請參考頁面之粉色「備註資訊」欄。排除特殊交易功能,開啟後可即時排除顯示申報備註中關係人間交易、特殊交易情況及標的類型、與政府有關之交易、僅車位交易、分件登記、含多筆土地或多棟建物、 交易標的僅有建物、土地面積為0(含地上權物件),及其他備註資訊,關閉後則會恢復顯示。
- 歷史移轉次數依據信義成交行情及政府實價登錄資訊推估,再由系統比對當筆與前一筆實價登錄,交易明細完全吻合方計算漲跌幅,當筆交易漲跌幅計算式為(當筆交易之成交總價/前一筆交易之成交總價)-1,計算百分比至小數點後兩位;可能與實際交易有所落差,資料請斟酌參考。
查看實價登錄
本案專家

根據你的設定值計算
142,178/月


