
1/12












請注意,上方物件照片如有街景,為物件附近環境介紹,非物件本身。
1/12
非信義物件
有6人也在關注這間👀
中信房屋-北區學士加盟店(信主房屋仲介有限公司)
04-2235-5118
臺中市北區學士路242號
本物件非信義房屋受託銷售,各項責任(包括但不限於廣告真實性及仲介義務等)概由各該受託業者自行負責,不屬信義房屋控制及負責範圍。
預約看屋
按下送出表示您已同意本站
服務條款
與隱私權聲明
送出
此為其他仲介業者物件

北區🔥篤行路一樓公寓⭐️門前停車
非信義物件(1965059CT)
台中市北區篤行路
有6人也在關注這間👀
詳情
總價
1,298萬
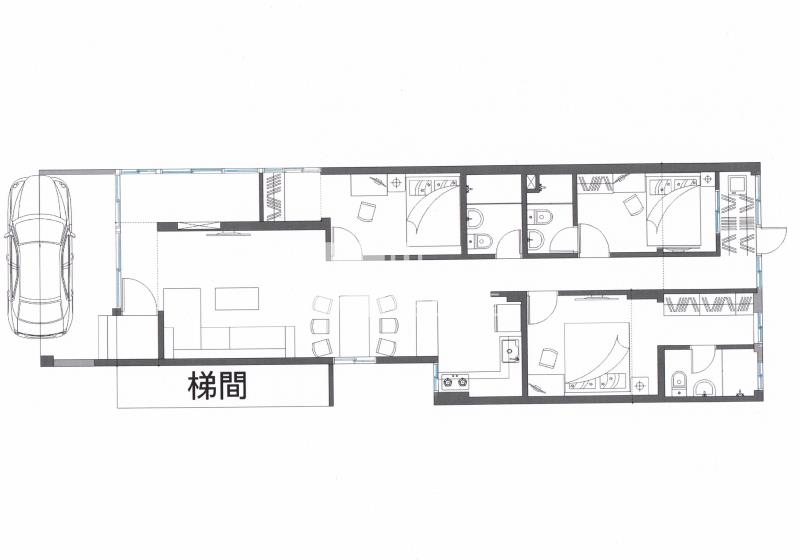
格局
3房2廳3衛
建坪
26.55坪
(主建物23.68坪)
類型
公寓
樓層
1樓/5樓
建坪單價
48.89萬/坪
屋齡
38.9年
地坪
8.43坪
地坪單價
--
基本資料

建坪
26.55坪
詳情
建坪單價
48.89萬/坪
地坪
8.43坪
主建物
23.68坪
格局
3房2廳3衛
加蓋格局
--
屋齡
38.9年
類型
公寓
樓層
1樓/5樓
車位
1個其他,詳情請洽經紀人員更多
邊間/暗房
--/--
大門朝向
南
落地窗朝向
南
警衛管理
無
建物詳情
建物結構
--
外牆建材
--
每層戶數
--
謄本用途
--
使用分區
--
注意事項
--
收合
物件特色
梅川綠園道平日休憩好去處 周邊商家林立日常採買機能好
全新整理裝潢 三面採光 鄰路可做店面工作室 地點佳
室內空間大 客廳寬敞 開放式廚房 空間感十足
雙套房設計 稀有物件 宜居宜室值得您置產
類似物件實價登錄(20)
距離該物件1公里內,半年內成交,公寓
共有20間與我相似的實價登錄物件
編輯篩選條件
列表
地圖
年月
地址
類型/車位
總價
單價
建坪
地坪
屋齡
樓層
格局
114年08月

台中市北區文武街5巷5之4號
公寓
500萬
16.87萬
29.64坪
10.16坪
42.2年
5樓/5樓
3房2廳2衛
歷史移轉2次
114年08月
公寓台中市北區文武街5巷5之4號移轉2次
500萬
16.87萬/坪
建坪29.64坪地坪10.16無車位
3房2廳2衛42.2年5樓/5樓
3房2廳2衛42.2年5樓/5樓
114年07月

台中市北區英才路262巷16之1號
公寓
610萬
22.01萬
27.72坪
9.15坪
39.6年
2樓/5樓
3房2廳1衛
114年07月
公寓台中市北區英才路262巷16之1號610萬
22.01萬/坪
建坪27.72坪地坪9.15無車位
3房2廳1衛39.6年2樓/5樓
3房2廳1衛39.6年2樓/5樓
114年09月


華中街16號4樓
公寓
666萬
19.02萬
35.01坪
10.86坪
40.8年
4樓/5樓
3房2廳2衛
備註資訊:其他增建;
114年09月
公寓華中街16號4樓666萬
19.02萬/坪
建坪35.01坪地坪10.86無車位
3房2廳2衛40.8年4樓/5樓
3房2廳2衛40.8年4樓/5樓
信義成交交易備註
114年06月

台中市北區華興街57之1號
公寓
775萬
28.82萬
26.89坪
6.79坪
42.9年
2樓/5樓
3房2廳2衛
歷史移轉2次
114年06月
公寓台中市北區華興街57之1號移轉2次
775萬
28.82萬/坪
建坪26.89坪地坪6.79無車位
3房2廳2衛42.9年2樓/5樓
3房2廳2衛42.9年2樓/5樓
114年06月

台中市北區健行路664巷4之3號
公寓
558萬
23.1萬
24.16坪
7.87坪
43.3年
4樓/5樓
3房2廳2衛
歷史移轉2次
114年06月
公寓台中市北區健行路664巷4之3號移轉2次
558萬
23.1萬/坪
建坪24.16坪地坪7.87無車位
3房2廳2衛43.3年4樓/5樓
3房2廳2衛43.3年4樓/5樓
- 資料來源:
為信義房屋最新成交行情;
為內政部最新公布的實價登錄資料;
該數值為系統運算,詳細請看說明
- 本實價登錄分類係綜合內政部實價登錄2020年7月之建物型態分類調整,以及申報登錄之建物型態、建物權狀登載之「主要用途」資料推估而成,故資料呈現類型、順序可能會與內政部不動產交易實價查詢服務網之搜尋結果有所差異,請斟酌參考。看看我們如何推估實價登錄類型與順序
- 特殊行情物件可能為受到特別條件或特殊關係影響所造成,詳情請參考頁面之粉色「備註資訊」欄。排除特殊交易功能,開啟後可即時排除顯示申報備註中關係人間交易、特殊交易情況及標的類型、與政府有關之交易、僅車位交易、分件登記、含多筆土地或多棟建物、 交易標的僅有建物、土地面積為0(含地上權物件),及其他備註資訊,關閉後則會恢復顯示。
- 歷史移轉次數依據信義成交行情及政府實價登錄資訊推估,再由系統比對當筆與前一筆實價登錄,交易明細完全吻合方計算漲跌幅,當筆交易漲跌幅計算式為(當筆交易之成交總價/前一筆交易之成交總價)-1,計算百分比至小數點後兩位;可能與實際交易有所落差,資料請斟酌參考。
為信義房屋最新成交行情;- 本實價登錄分類係綜合內政部實價登錄2020年7月之建物型態分類調整,以及申報登錄之建物型態、建物權狀登載之「主要用途」資料推估而成,故資料呈現類型、順序可能會與內政部不動產交易實價查詢服務網之搜尋結果有所差異,請斟酌參考。看看我們如何推估實價登錄類型與順序
- 特殊行情物件可能為受到特別條件或特殊關係影響所造成,詳情請參考頁面之粉色「備註資訊」欄。排除特殊交易功能,開啟後可即時排除顯示申報備註中關係人間交易、特殊交易情況及標的類型、與政府有關之交易、僅車位交易、分件登記、含多筆土地或多棟建物、 交易標的僅有建物、土地面積為0(含地上權物件),及其他備註資訊,關閉後則會恢復顯示。
- 歷史移轉次數依據信義成交行情及政府實價登錄資訊推估,再由系統比對當筆與前一筆實價登錄,交易明細完全吻合方計算漲跌幅,當筆交易漲跌幅計算式為(當筆交易之成交總價/前一筆交易之成交總價)-1,計算百分比至小數點後兩位;可能與實際交易有所落差,資料請斟酌參考。
查看實價登錄
根據你的設定值計算
65,910/月


