
1/8








請注意,上方物件照片如有街景,為物件附近環境介紹,非物件本身。
1/8
非信義物件
有0人也在關注這間👀
中信房屋-屏東自由加盟店(泰順不動產有限公司)
08-7327-373
屏東縣屏東市自由路218號
本物件非信義房屋受託銷售,各項責任(包括但不限於廣告真實性及仲介義務等)概由各該受託業者自行負責,不屬信義房屋控制及負責範圍。
預約看屋
按下送出表示您已同意本站
服務條款
與隱私權聲明
送出
此為其他仲介業者物件

屏基商圈車位美廈
非信義物件(2007354CT)
屏東縣屏東市華山街
有0人也在關注這間👀
詳情
總價
668萬
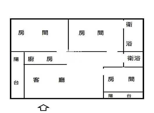
格局
3房2廳2衛
建坪
33.28坪
(主+陽24.48坪)
類型
大樓
樓層
6樓/7樓
建坪單價
20.07萬/坪
屋齡
29.9年
地坪
0坪
地坪單價
--
基本資料

建坪
33.28坪
詳情
建坪單價
20.07萬/坪
地坪
0坪
主+陽
24.48坪
格局
3房2廳2衛
加蓋格局
--
屋齡
29.9年
類型
大樓
樓層
6樓/7樓
車位
1個其他,詳情請洽經紀人員更多
邊間/暗房
--/--
警衛管理
無
建物詳情
建物結構
--
外牆建材
--
每層戶數
--
謄本用途
--
使用分區
--
注意事項
--
收合
物件特色
格局方正 雙陽台採光通風佳
近屏基 社福館 家樂福
生活機能便利
鬧中取靜 出入方便
類似物件實價登錄(4)
距離該物件1公里內,半年內成交,大樓
共有4間與我相似的實價登錄物件
編輯篩選條件
列表
地圖
年月
地址
類型/車位
總價
單價
建坪
地坪
屋齡
樓層
格局
114年04月

屏東縣屏東巿公裕街242號五樓之二
大樓
571萬
17.07萬
33.44坪
6.02坪
31.0年
5樓/11樓
3房2廳2衛
歷史移轉2次
114年04月
大樓屏東縣屏東巿公裕街242號五樓之二移轉2次
571萬
17.07萬/坪
建坪33.44坪地坪6.02無車位
3房2廳2衛31.0年5樓/11樓
3房2廳2衛31.0年5樓/11樓
114年07月

屏東縣屏東巿公裕街242號六樓之三
大樓
有車位
560萬
含車位價
含車位價
13.79萬
含車位計算
含車位計算
40.6坪
含車位--坪
含車位--坪
5.95坪
31.3年
6樓/11樓
3房2廳2衛
114年07月
大樓屏東縣屏東巿公裕街242號六樓之三560萬
含車位價
13.79萬/坪
含車位計算
建坪40.6坪(含車位--坪)地坪5.95有車位
3房2廳2衛31.3年6樓/11樓
3房2廳2衛31.3年6樓/11樓
114年06月

屏東縣屏東市公正四街66號五樓之六
大樓
有車位
865萬
含車位價
含車位價
23.86萬
含車位計算
含車位計算
36.25坪
含車位9.01坪
含車位9.01坪
6.67坪
1.4年
5樓/13樓
2房2廳2衛
歷史移轉2次
114年06月
大樓屏東縣屏東市公正四街66號五樓之六移轉2次
865萬
含車位價
23.86萬/坪
含車位計算
建坪36.25坪(含車位9.01坪)地坪6.67有車位
2房2廳2衛1.4年5樓/13樓
2房2廳2衛1.4年5樓/13樓
114年05月

屏東縣屏東巿公正四街70號三樓之三
大樓
有車位
1,028萬
含車位價
含車位價
27.22萬
含車位計算
含車位計算
37.76坪
含車位9.01坪
含車位9.01坪
7.13坪
1.3年
3樓/13樓
2房2廳2衛
歷史移轉2次
114年05月
大樓屏東縣屏東巿公正四街70號三樓之三移轉2次
1,028萬
含車位價
27.22萬/坪
含車位計算
建坪37.76坪(含車位9.01坪)地坪7.13有車位
2房2廳2衛1.3年3樓/13樓
2房2廳2衛1.3年3樓/13樓
- 資料來源:
為信義房屋最新成交行情;
為內政部最新公布的實價登錄資料;
該數值為系統運算,詳細請看說明
- 本實價登錄分類係綜合內政部實價登錄2020年7月之建物型態分類調整,以及申報登錄之建物型態、建物權狀登載之「主要用途」資料推估而成,故資料呈現類型、順序可能會與內政部不動產交易實價查詢服務網之搜尋結果有所差異,請斟酌參考。看看我們如何推估實價登錄類型與順序
- 特殊行情物件可能為受到特別條件或特殊關係影響所造成,詳情請參考頁面之粉色「備註資訊」欄。排除特殊交易功能,開啟後可即時排除顯示申報備註中關係人間交易、特殊交易情況及標的類型、與政府有關之交易、僅車位交易、分件登記、含多筆土地或多棟建物、 交易標的僅有建物、土地面積為0(含地上權物件),及其他備註資訊,關閉後則會恢復顯示。
- 歷史移轉次數依據信義成交行情及政府實價登錄資訊推估,再由系統比對當筆與前一筆實價登錄,交易明細完全吻合方計算漲跌幅,當筆交易漲跌幅計算式為(當筆交易之成交總價/前一筆交易之成交總價)-1,計算百分比至小數點後兩位;可能與實際交易有所落差,資料請斟酌參考。
為信義房屋最新成交行情;- 本實價登錄分類係綜合內政部實價登錄2020年7月之建物型態分類調整,以及申報登錄之建物型態、建物權狀登載之「主要用途」資料推估而成,故資料呈現類型、順序可能會與內政部不動產交易實價查詢服務網之搜尋結果有所差異,請斟酌參考。看看我們如何推估實價登錄類型與順序
- 特殊行情物件可能為受到特別條件或特殊關係影響所造成,詳情請參考頁面之粉色「備註資訊」欄。排除特殊交易功能,開啟後可即時排除顯示申報備註中關係人間交易、特殊交易情況及標的類型、與政府有關之交易、僅車位交易、分件登記、含多筆土地或多棟建物、 交易標的僅有建物、土地面積為0(含地上權物件),及其他備註資訊,關閉後則會恢復顯示。
- 歷史移轉次數依據信義成交行情及政府實價登錄資訊推估,再由系統比對當筆與前一筆實價登錄,交易明細完全吻合方計算漲跌幅,當筆交易漲跌幅計算式為(當筆交易之成交總價/前一筆交易之成交總價)-1,計算百分比至小數點後兩位;可能與實際交易有所落差,資料請斟酌參考。
查看實價登錄
根據你的設定值計算
33,920/月


