
1/13













請注意,上方物件照片如有街景,為物件附近環境介紹,非物件本身。
1/13
非信義物件
有0人也在關注這間👀
中信房屋-宜蘭礁溪加盟店(富騰不動產)
03-9872-999
宜蘭縣礁溪鄉礁溪路4段78號
本物件非信義房屋受託銷售,各項責任(包括但不限於廣告真實性及仲介義務等)概由各該受託業者自行負責,不屬信義房屋控制及負責範圍。
預約看屋
按下送出表示您已同意本站
服務條款
與隱私權聲明
送出
此為其他仲介業者物件

大面寬邊間渡假樂活溫泉透天
非信義物件(2019078CT)
宜蘭縣礁溪鄉德陽路
有0人也在關注這間👀
詳情
總價
1,680萬
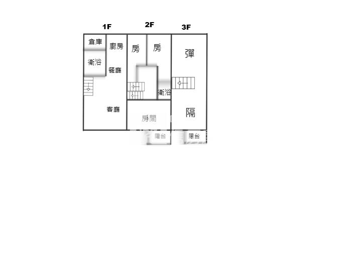
格局
4房2廳2衛
建坪
38坪
(主建物38坪)
類型
別墅/透天
樓層
1-2樓/2樓
建坪單價
44.21萬/坪
屋齡
45.9年
地坪
33.77坪
地坪單價
--
基本資料

建坪
38坪
詳情
建坪單價
44.21萬/坪
地坪
33.77坪
主建物
38坪
格局
4房2廳2衛
加蓋格局
--
屋齡
45.9年
類型
別墅/透天
樓層
1-2樓/2樓
車位
--
邊間/暗房
--/--
大門朝向
西南
警衛管理
無
管理費
291 元/月
建物詳情
建物結構
--
外牆建材
--
每層戶數
--
謄本用途
--
使用分區
--
注意事項
--
收合
物件特色
正礁溪市區,生活機能佳
七米大面寬,自住好標的
養生又樂活,自住溫泉宅
邊間採光佳,通風一極棒
近跑馬古道,五峰旗瀑布
投資自用唯一的最佳選擇
類似物件實價登錄(6)
距離該物件1公里內,半年內成交,別墅/透天
共有6間與我相似的實價登錄物件
編輯篩選條件
列表
地圖
年月
地址
類型/車位
總價
單價
建坪
地坪
屋齡
樓層
格局
114年05月

宜蘭縣礁溪鄉德陽路231巷28號
別墅/透天
200萬
23.66萬
8.45坪
7.27坪
45.5年
1樓/2樓
4房1廳2衛
歷史移轉2次
備註資訊:表兄弟間移轉。親友、員工、共有人或其他特殊關係間之交易;頂樓加蓋;
114年05月
別墅/透天宜蘭縣礁溪鄉德陽路231巷28號移轉2次
200萬
23.66萬/坪
建坪8.45坪地坪7.27無車位
4房1廳2衛45.5年1樓/2樓
4房1廳2衛45.5年1樓/2樓
交易備註
114年07月

宜蘭縣礁溪鄉礁溪路五段50巷18號
別墅/透天
1,280萬
61.74萬
20.73坪
17.85坪
49.3年
1樓/2樓
3房2廳1衛
備註資訊:未登記建物;
114年07月
別墅/透天宜蘭縣礁溪鄉礁溪路五段50巷18號1,280萬
61.74萬/坪
建坪20.73坪地坪17.85無車位
3房2廳1衛49.3年1樓/2樓
3房2廳1衛49.3年1樓/2樓
交易備註
114年08月

宜蘭縣礁溪鄉復興街2號
別墅/透天
2,100萬
29.22萬
71.87坪
35.39坪
53.7年
1樓/3樓
4房3廳3衛
114年08月
別墅/透天宜蘭縣礁溪鄉復興街2號2,100萬
29.22萬/坪
建坪71.87坪地坪35.39無車位
4房3廳3衛53.7年1樓/3樓
4房3廳3衛53.7年1樓/3樓
114年07月

宜蘭縣礁溪鄉信義路53號
別墅/透天
1,350萬
65.63萬
20.57坪
13.61坪
0.0年
1樓/2樓
4房2廳4衛
備註資訊:一樓後方廚房增建佔用鄰地。其他增建;
114年07月
別墅/透天宜蘭縣礁溪鄉信義路53號1,350萬
65.63萬/坪
建坪20.57坪地坪13.61無車位
4房2廳4衛0.0年1樓/2樓
4房2廳4衛0.0年1樓/2樓
交易備註
114年06月

宜蘭縣礁溪鄉大忠路40巷22弄6號
別墅/透天
2,200萬
30.05萬
73.22坪
35.21坪
2.3年
1樓/4樓
4房2廳6衛
備註資訊:1.有管委會尚在成立中。2.停車位位於室內專用範圍內。毛胚屋;
114年06月
別墅/透天宜蘭縣礁溪鄉大忠路40巷22弄6號2,200萬
30.05萬/坪
建坪73.22坪地坪35.21無車位
4房2廳6衛2.3年1樓/4樓
4房2廳6衛2.3年1樓/4樓
交易備註
- 資料來源:
為信義房屋最新成交行情;
為內政部最新公布的實價登錄資料;
該數值為系統運算,詳細請看說明
- 本實價登錄分類係綜合內政部實價登錄2020年7月之建物型態分類調整,以及申報登錄之建物型態、建物權狀登載之「主要用途」資料推估而成,故資料呈現類型、順序可能會與內政部不動產交易實價查詢服務網之搜尋結果有所差異,請斟酌參考。看看我們如何推估實價登錄類型與順序
- 特殊行情物件可能為受到特別條件或特殊關係影響所造成,詳情請參考頁面之粉色「備註資訊」欄。排除特殊交易功能,開啟後可即時排除顯示申報備註中關係人間交易、特殊交易情況及標的類型、與政府有關之交易、僅車位交易、分件登記、含多筆土地或多棟建物、 交易標的僅有建物、土地面積為0(含地上權物件),及其他備註資訊,關閉後則會恢復顯示。
- 歷史移轉次數依據信義成交行情及政府實價登錄資訊推估,再由系統比對當筆與前一筆實價登錄,交易明細完全吻合方計算漲跌幅,當筆交易漲跌幅計算式為(當筆交易之成交總價/前一筆交易之成交總價)-1,計算百分比至小數點後兩位;可能與實際交易有所落差,資料請斟酌參考。
為信義房屋最新成交行情;- 本實價登錄分類係綜合內政部實價登錄2020年7月之建物型態分類調整,以及申報登錄之建物型態、建物權狀登載之「主要用途」資料推估而成,故資料呈現類型、順序可能會與內政部不動產交易實價查詢服務網之搜尋結果有所差異,請斟酌參考。看看我們如何推估實價登錄類型與順序
- 特殊行情物件可能為受到特別條件或特殊關係影響所造成,詳情請參考頁面之粉色「備註資訊」欄。排除特殊交易功能,開啟後可即時排除顯示申報備註中關係人間交易、特殊交易情況及標的類型、與政府有關之交易、僅車位交易、分件登記、含多筆土地或多棟建物、 交易標的僅有建物、土地面積為0(含地上權物件),及其他備註資訊,關閉後則會恢復顯示。
- 歷史移轉次數依據信義成交行情及政府實價登錄資訊推估,再由系統比對當筆與前一筆實價登錄,交易明細完全吻合方計算漲跌幅,當筆交易漲跌幅計算式為(當筆交易之成交總價/前一筆交易之成交總價)-1,計算百分比至小數點後兩位;可能與實際交易有所落差,資料請斟酌參考。
查看實價登錄
根據你的設定值計算
85,307/月


