
1/16
















請注意,上方物件照片如有街景,為物件附近環境介紹,非物件本身。
1/16
非信義物件
有40人也在關注這間👀
中信房屋-北屯敦富加盟店(千家不動產有限公司)
04-3609-8989
臺中市北屯區敦富路539號一樓
本物件非信義房屋受託銷售,各項責任(包括但不限於廣告真實性及仲介義務等)概由各該受託業者自行負責,不屬信義房屋控制及負責範圍。
預約看屋
按下送出表示您已同意本站
服務條款
與隱私權聲明
送出
此為其他仲介業者物件

寶輝The Springs|最俗三改二房平車
非信義物件(2054993CT)
台中市北屯區敦富路
有40人也在關注這間👀
詳情
總價
2,498萬
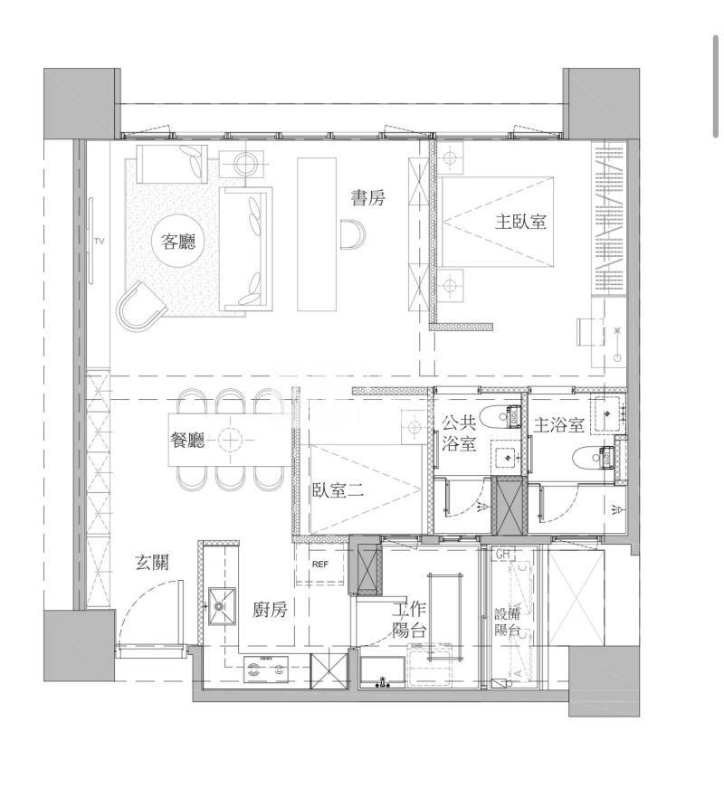
格局
3房2廳2衛
建坪
46.24坪
(主+陽25.09坪)
類型
大樓
樓層
3樓/15樓
建坪單價
54.02萬/坪
屋齡
0.5年
地坪
6.81坪
地坪單價
--
基本資料

建坪
46.24坪
詳情
建坪單價
54.02萬/坪
地坪
6.81坪
主+陽
25.09坪
格局
3房2廳2衛
加蓋格局
--
屋齡
0.5年
類型
大樓
樓層
3樓/15樓
車位
1個坡道平面
邊間/暗房
--/--
大門朝向
北
警衛管理
有
建物詳情
建物結構
--
外牆建材
--
每層戶數
--
謄本用途
--
使用分區
--
注意事項
--
收合
物件特色
全新交屋,挑戰社區最便宜物件
機捷特區唯一寶輝,質感地標
惠宇價格入住全新寶輝,跳躍圈層不加價
類似物件實價登錄(78)
距離該物件1公里內,半年內成交,大樓
共有78間與我相似的實價登錄物件
編輯篩選條件
列表
地圖
年月
地址
類型/車位
總價
單價
建坪
地坪
屋齡
樓層
格局
2,180萬
含車位價
44.93萬/坪
含車位計算
建坪48.51坪(含車位7.44坪)地坪6.49有車位
3房2廳2衛1.8年7樓/15樓
3房2廳2衛1.8年7樓/15樓
114年08月

台中市北屯區敦富路708號十一樓之1
大樓
有車位
2,336萬
含車位價
含車位價
48.38萬
含車位計算
含車位計算
48.29坪
含車位7.65坪
含車位7.65坪
7.18坪
0.2年
11樓/15樓
3房2廳2衛
歷史移轉2次
114年08月
大樓台中市北屯區敦富路708號十一樓之1移轉2次
2,336萬
含車位價
48.38萬/坪
含車位計算
建坪48.29坪(含車位7.65坪)地坪7.18有車位
3房2廳2衛0.2年11樓/15樓
3房2廳2衛0.2年11樓/15樓
114年08月

台中市北屯區敦富路708號五樓之1
大樓
有車位
2,325萬
含車位價
含車位價
48.15萬
含車位計算
含車位計算
48.29坪
含車位7.65坪
含車位7.65坪
7.18坪
0.2年
5樓/15樓
3房2廳2衛
歷史移轉2次
114年08月
大樓台中市北屯區敦富路708號五樓之1移轉2次
2,325萬
含車位價
48.15萬/坪
含車位計算
建坪48.29坪(含車位7.65坪)地坪7.18有車位
3房2廳2衛0.2年5樓/15樓
3房2廳2衛0.2年5樓/15樓
114年07月

台中市北屯區敦富路710號十四樓之1
大樓
有車位
2,500萬
含車位價
含車位價
54.66萬
含車位計算
含車位計算
45.74坪
含車位7.65坪
含車位7.65坪
6.71坪
0.1年
14樓/15樓
3房2廳2衛
歷史移轉2次
備註資訊:本案土地價款為16886340元整,建物價款為8113660元整
114年07月
大樓台中市北屯區敦富路710號十四樓之1移轉2次
2,500萬
含車位價
54.66萬/坪
含車位計算
建坪45.74坪(含車位7.65坪)地坪6.71有車位
3房2廳2衛0.1年14樓/15樓
3房2廳2衛0.1年14樓/15樓
交易備註
- 資料來源:
為信義房屋最新成交行情;
為內政部最新公布的實價登錄資料;
該數值為系統運算,詳細請看說明
- 本實價登錄分類係綜合內政部實價登錄2020年7月之建物型態分類調整,以及申報登錄之建物型態、建物權狀登載之「主要用途」資料推估而成,故資料呈現類型、順序可能會與內政部不動產交易實價查詢服務網之搜尋結果有所差異,請斟酌參考。看看我們如何推估實價登錄類型與順序
- 特殊行情物件可能為受到特別條件或特殊關係影響所造成,詳情請參考頁面之粉色「備註資訊」欄。排除特殊交易功能,開啟後可即時排除顯示申報備註中關係人間交易、特殊交易情況及標的類型、與政府有關之交易、僅車位交易、分件登記、含多筆土地或多棟建物、 交易標的僅有建物、土地面積為0(含地上權物件),及其他備註資訊,關閉後則會恢復顯示。
- 歷史移轉次數依據信義成交行情及政府實價登錄資訊推估,再由系統比對當筆與前一筆實價登錄,交易明細完全吻合方計算漲跌幅,當筆交易漲跌幅計算式為(當筆交易之成交總價/前一筆交易之成交總價)-1,計算百分比至小數點後兩位;可能與實際交易有所落差,資料請斟酌參考。
為信義房屋最新成交行情;- 本實價登錄分類係綜合內政部實價登錄2020年7月之建物型態分類調整,以及申報登錄之建物型態、建物權狀登載之「主要用途」資料推估而成,故資料呈現類型、順序可能會與內政部不動產交易實價查詢服務網之搜尋結果有所差異,請斟酌參考。看看我們如何推估實價登錄類型與順序
- 特殊行情物件可能為受到特別條件或特殊關係影響所造成,詳情請參考頁面之粉色「備註資訊」欄。排除特殊交易功能,開啟後可即時排除顯示申報備註中關係人間交易、特殊交易情況及標的類型、與政府有關之交易、僅車位交易、分件登記、含多筆土地或多棟建物、 交易標的僅有建物、土地面積為0(含地上權物件),及其他備註資訊,關閉後則會恢復顯示。
- 歷史移轉次數依據信義成交行情及政府實價登錄資訊推估,再由系統比對當筆與前一筆實價登錄,交易明細完全吻合方計算漲跌幅,當筆交易漲跌幅計算式為(當筆交易之成交總價/前一筆交易之成交總價)-1,計算百分比至小數點後兩位;可能與實際交易有所落差,資料請斟酌參考。
查看實價登錄
根據你的設定值計算
126,843/月


