
1/16
















請注意,上方物件照片如有街景,為物件附近環境介紹,非物件本身。
1/16
非信義物件
有20人也在關注這間👀
中信房屋-土城中央加盟店(和群不動產顧問有限公司)
02-2265-2988
新北市土城區中央路1段301號
本物件非信義房屋受託銷售,各項責任(包括但不限於廣告真實性及仲介義務等)概由各該受託業者自行負責,不屬信義房屋控制及負責範圍。
預約看屋
按下送出表示您已同意本站
服務條款
與隱私權聲明
送出
此為其他仲介業者物件

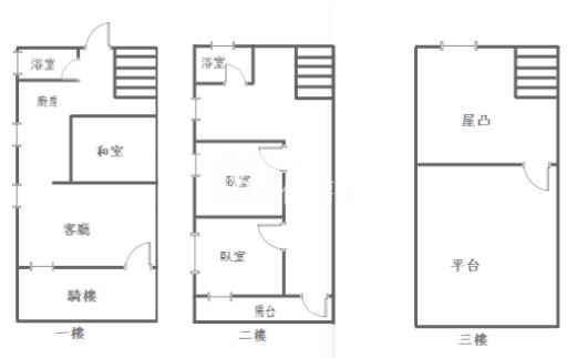
C238宜蘭員山近市區透天別墅
非信義物件(2057276CT)
宜蘭縣員山鄉尚惠路
有20人也在關注這間👀
詳情
總價
1,280萬
格局
3房2廳2衛
建坪
55.83坪
(主+陽47.98坪)
類型
別墅/透天
樓層
1-2樓/2樓
建坪單價
22.93萬/坪
屋齡
16.4年
地坪
47.91坪
地坪單價
--
基本資料

建坪
55.83坪
詳情
建坪單價
22.93萬/坪
地坪
47.91坪
主+陽
47.98坪
格局
3房2廳2衛
加蓋格局
--
屋齡
16.4年
類型
別墅/透天
樓層
1-2樓/2樓
車位
--
邊間/暗房
--/--
大門朝向
東南
警衛管理
無
建物詳情
建物結構
--
外牆建材
--
每層戶數
--
謄本用途
--
使用分區
--
注意事項
--
收合
物件特色
💥前有空地可停車
💥省道旁臨路6米
💥近員山市區
類似物件實價登錄(5)
距離該物件1公里內,半年內成交,別墅/透天
共有5間與我相似的實價登錄物件
編輯篩選條件
列表
地圖
年月
地址
類型/車位
總價
單價
建坪
地坪
屋齡
樓層
格局
114年08月

宜蘭縣員山鄉三鬮路205號
別墅/透天
830萬
13.16萬
63.05坪
25.47坪
30.5年
1樓/4樓
4房2廳3衛
備註資訊:增建範圍:一樓空地。陽台外推;頂樓加蓋;其他增建;
114年08月
別墅/透天宜蘭縣員山鄉三鬮路205號830萬
13.16萬/坪
建坪63.05坪地坪25.47無車位
4房2廳3衛30.5年1樓/4樓
4房2廳3衛30.5年1樓/4樓
交易備註
114年07月

宜蘭縣員山鄉尚深路139巷22弄10號
別墅/透天
1,250萬
24.51萬
51坪
24.91坪
5.3年
1樓/3樓
3房3廳3衛
歷史移轉2次
備註資訊:其他增建:一樓後方陽台其他增建;
114年07月
別墅/透天宜蘭縣員山鄉尚深路139巷22弄10號移轉2次
1,250萬
24.51萬/坪
建坪51坪地坪24.91無車位
3房3廳3衛5.3年1樓/3樓
3房3廳3衛5.3年1樓/3樓
交易備註
114年11月

宜蘭縣員山鄉員山路二段27巷18號
別墅/透天
1,600萬
21.63萬
73.96坪
32.02坪
6.3年
1樓/4樓
4房2廳5衛
歷史移轉2次
備註資訊:頂樓其他增建;
114年11月
別墅/透天宜蘭縣員山鄉員山路二段27巷18號移轉2次
1,600萬
21.63萬/坪
建坪73.96坪地坪32.02無車位
4房2廳5衛6.3年1樓/4樓
4房2廳5衛6.3年1樓/4樓
交易備註
114年10月

宜蘭縣員山鄉員山路一段573巷11號
別墅/透天
610萬
19.21萬
31.75坪
25.67坪
44.8年
1樓/2樓
3房3廳3衛
歷史移轉2次
備註資訊:一樓空地、鐵皮屋屋頂增建頂樓加蓋;其他增建;
114年10月
別墅/透天宜蘭縣員山鄉員山路一段573巷11號移轉2次
610萬
19.21萬/坪
建坪31.75坪地坪25.67無車位
3房3廳3衛44.8年1樓/2樓
3房3廳3衛44.8年1樓/2樓
交易備註
114年10月

宜蘭縣員山鄉尚深路139巷22弄1號
別墅/透天
1,680萬
22.37萬
75.11坪
41.07坪
5.5年
1樓/4樓
3房2廳4衛
歷史移轉2次
備註資訊:一樓空地及頂樓加設遮雨棚陽台外推;其他增建;
114年10月
別墅/透天宜蘭縣員山鄉尚深路139巷22弄1號移轉2次
1,680萬
22.37萬/坪
建坪75.11坪地坪41.07無車位
3房2廳4衛5.5年1樓/4樓
3房2廳4衛5.5年1樓/4樓
交易備註
- 資料來源:
為信義房屋最新成交行情;
為內政部最新公布的實價登錄資料;
該數值為系統運算,詳細請看說明
- 本實價登錄分類係綜合內政部實價登錄2020年7月之建物型態分類調整,以及申報登錄之建物型態、建物權狀登載之「主要用途」資料推估而成,故資料呈現類型、順序可能會與內政部不動產交易實價查詢服務網之搜尋結果有所差異,請斟酌參考。看看我們如何推估實價登錄類型與順序
- 特殊行情物件可能為受到特別條件或特殊關係影響所造成,詳情請參考頁面之粉色「備註資訊」欄。排除特殊交易功能,開啟後可即時排除顯示申報備註中關係人間交易、特殊交易情況及標的類型、與政府有關之交易、僅車位交易、分件登記、含多筆土地或多棟建物、 交易標的僅有建物、土地面積為0(含地上權物件),及其他備註資訊,關閉後則會恢復顯示。
- 歷史移轉次數依據信義成交行情及政府實價登錄資訊推估,再由系統比對當筆與前一筆實價登錄,交易明細完全吻合方計算漲跌幅,當筆交易漲跌幅計算式為(當筆交易之成交總價/前一筆交易之成交總價)-1,計算百分比至小數點後兩位;可能與實際交易有所落差,資料請斟酌參考。
為信義房屋最新成交行情;- 本實價登錄分類係綜合內政部實價登錄2020年7月之建物型態分類調整,以及申報登錄之建物型態、建物權狀登載之「主要用途」資料推估而成,故資料呈現類型、順序可能會與內政部不動產交易實價查詢服務網之搜尋結果有所差異,請斟酌參考。看看我們如何推估實價登錄類型與順序
- 特殊行情物件可能為受到特別條件或特殊關係影響所造成,詳情請參考頁面之粉色「備註資訊」欄。排除特殊交易功能,開啟後可即時排除顯示申報備註中關係人間交易、特殊交易情況及標的類型、與政府有關之交易、僅車位交易、分件登記、含多筆土地或多棟建物、 交易標的僅有建物、土地面積為0(含地上權物件),及其他備註資訊,關閉後則會恢復顯示。
- 歷史移轉次數依據信義成交行情及政府實價登錄資訊推估,再由系統比對當筆與前一筆實價登錄,交易明細完全吻合方計算漲跌幅,當筆交易漲跌幅計算式為(當筆交易之成交總價/前一筆交易之成交總價)-1,計算百分比至小數點後兩位;可能與實際交易有所落差,資料請斟酌參考。
查看實價登錄
根據你的設定值計算
64,996/月


