
1/13













請注意,上方物件照片如有街景,為物件附近環境介紹,非物件本身。
1/13
非信義物件
有0人也在關注這間👀
中信房屋-楊梅青山加盟店(聖平地產開發有限公司)
03-4643-355
桃園市楊梅區青山五街2號
本物件非信義房屋受託銷售,各項責任(包括但不限於廣告真實性及仲介義務等)概由各該受託業者自行負責,不屬信義房屋控制及負責範圍。
預約看屋
按下送出表示您已同意本站
服務條款
與隱私權聲明
送出
此為其他仲介業者物件

華隆街整新美透天
非信義物件(2061657CT)
桃園市平鎮區華隆街
有0人也在關注這間👀
詳情
總價
1,280萬
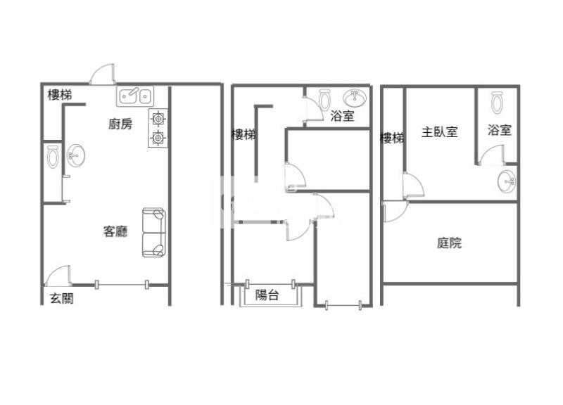
格局
4房1廳3衛
建坪
38.57坪
(主建物38.57坪)
類型
別墅/透天
樓層
1-3樓/3樓
建坪單價
33.19萬/坪
屋齡
43.6年
地坪
17.77坪
地坪單價
--
基本資料

建坪
38.57坪
詳情
建坪單價
33.19萬/坪
地坪
17.77坪
主建物
38.57坪
格局
4房1廳3衛
加蓋格局
--
屋齡
43.6年
類型
別墅/透天
樓層
1-3樓/3樓
車位
--
邊間/暗房
--/--
警衛管理
無
建物詳情
建物結構
--
外牆建材
--
每層戶數
--
謄本用途
--
使用分區
--
注意事項
--
收合
物件特色
1.全室水電、防水全新重作
2.近66快速道路
3.近東勢國小、東安國小、東安國中
4.旁為道路用地、有搭棚作為停車之用(約10坪)
5.近龍岡大操場、忠貞市場
類似物件實價登錄(17)
距離該物件1公里內,半年內成交,別墅/透天
共有17間與我相似的實價登錄物件
編輯篩選條件
列表
地圖
年月
地址
類型/車位
總價
單價
建坪
地坪
屋齡
樓層
格局
114年03月

桃園市平鎮區平東路666巷28弄2號
別墅/透天
500萬
16.2萬
30.86坪
22.31坪
44.1年
1樓/2樓
3房2廳2衛
備註資訊:親友、員工、共有人或其他特殊關係間之交易;
114年03月
別墅/透天桃園市平鎮區平東路666巷28弄2號500萬
16.2萬/坪
建坪30.86坪地坪22.31無車位
3房2廳2衛44.1年1樓/2樓
3房2廳2衛44.1年1樓/2樓
交易備註
114年03月

桃園市平鎮區平東路239巷75號
別墅/透天
620萬
16.48萬
37.61坪
22.69坪
44.8年
1樓/2樓
2房2廳1衛
備註資訊:未登記建物;
114年03月
別墅/透天桃園市平鎮區平東路239巷75號620萬
16.48萬/坪
建坪37.61坪地坪22.69無車位
2房2廳1衛44.8年1樓/2樓
2房2廳1衛44.8年1樓/2樓
交易備註
114年03月

桃園市平鎮區平東路526巷21號
別墅/透天
150萬
5.46萬
27.48坪
15.47坪
44.7年
1樓/2樓
5房2廳2衛
歷史移轉2次
備註資訊:親友、員工、共有人或其他特殊關係間之交易;
114年03月
別墅/透天桃園市平鎮區平東路526巷21號移轉2次
150萬
5.46萬/坪
建坪27.48坪地坪15.47無車位
5房2廳2衛44.7年1樓/2樓
5房2廳2衛44.7年1樓/2樓
交易備註
114年07月

桃園市平鎮區平東路246巷26弄4號
別墅/透天
645萬
26.65萬
24.2坪
20.28坪
45.7年
1樓/2樓
4房2廳3衛
備註資訊:頂樓加蓋;
114年07月
別墅/透天桃園市平鎮區平東路246巷26弄4號645萬
26.65萬/坪
建坪24.2坪地坪20.28無車位
4房2廳3衛45.7年1樓/2樓
4房2廳3衛45.7年1樓/2樓
交易備註
114年07月

桃園市平鎮區建安路236巷116號
別墅/透天
1,100萬
18.09萬
60.81坪
24.52坪
30.8年
1樓/4樓
5房2廳3衛
歷史移轉2次
114年07月
別墅/透天桃園市平鎮區建安路236巷116號移轉2次
1,100萬
18.09萬/坪
建坪60.81坪地坪24.52無車位
5房2廳3衛30.8年1樓/4樓
5房2廳3衛30.8年1樓/4樓
- 資料來源:
為信義房屋最新成交行情;
為內政部最新公布的實價登錄資料;
該數值為系統運算,詳細請看說明
- 本實價登錄分類係綜合內政部實價登錄2020年7月之建物型態分類調整,以及申報登錄之建物型態、建物權狀登載之「主要用途」資料推估而成,故資料呈現類型、順序可能會與內政部不動產交易實價查詢服務網之搜尋結果有所差異,請斟酌參考。看看我們如何推估實價登錄類型與順序
- 特殊行情物件可能為受到特別條件或特殊關係影響所造成,詳情請參考頁面之粉色「備註資訊」欄。排除特殊交易功能,開啟後可即時排除顯示申報備註中關係人間交易、特殊交易情況及標的類型、與政府有關之交易、僅車位交易、分件登記、含多筆土地或多棟建物、 交易標的僅有建物、土地面積為0(含地上權物件),及其他備註資訊,關閉後則會恢復顯示。
- 歷史移轉次數依據信義成交行情及政府實價登錄資訊推估,再由系統比對當筆與前一筆實價登錄,交易明細完全吻合方計算漲跌幅,當筆交易漲跌幅計算式為(當筆交易之成交總價/前一筆交易之成交總價)-1,計算百分比至小數點後兩位;可能與實際交易有所落差,資料請斟酌參考。

- 本實價登錄分類係綜合內政部實價登錄2020年7月之建物型態分類調整,以及申報登錄之建物型態、建物權狀登載之「主要用途」資料推估而成,故資料呈現類型、順序可能會與內政部不動產交易實價查詢服務網之搜尋結果有所差異,請斟酌參考。看看我們如何推估實價登錄類型與順序
- 特殊行情物件可能為受到特別條件或特殊關係影響所造成,詳情請參考頁面之粉色「備註資訊」欄。排除特殊交易功能,開啟後可即時排除顯示申報備註中關係人間交易、特殊交易情況及標的類型、與政府有關之交易、僅車位交易、分件登記、含多筆土地或多棟建物、 交易標的僅有建物、土地面積為0(含地上權物件),及其他備註資訊,關閉後則會恢復顯示。
- 歷史移轉次數依據信義成交行情及政府實價登錄資訊推估,再由系統比對當筆與前一筆實價登錄,交易明細完全吻合方計算漲跌幅,當筆交易漲跌幅計算式為(當筆交易之成交總價/前一筆交易之成交總價)-1,計算百分比至小數點後兩位;可能與實際交易有所落差,資料請斟酌參考。
查看實價登錄
根據你的設定值計算
64,996/月