
1/14














請注意,上方物件照片如有街景,為物件附近環境介紹,非物件本身。
1/14
非信義物件
有0人也在關注這間👀
中信房屋-台中好事多加盟店(好事多不動產經紀有限公司)
04-2376-8866
臺中市西區林森路126號
本物件非信義房屋受託銷售,各項責任(包括但不限於廣告真實性及仲介義務等)概由各該受託業者自行負責,不屬信義房屋控制及負責範圍。
預約看屋
按下送出表示您已同意本站
服務條款
與隱私權聲明
送出
此為其他仲介業者物件

松竹捷運站北歐風3房精裝戶
非信義物件(2062580CT)
台中市北屯區松竹路二段
有0人也在關注這間👀
詳情
總價
695萬
格局
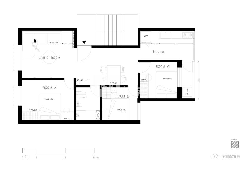
3房2廳1衛
建坪
22.62坪
(主+陽22.62坪)
類型
公寓
樓層
5樓/5樓
建坪單價
30.73萬/坪
屋齡
44.2年
地坪
7坪
地坪單價
--
基本資料

建坪
22.62坪
詳情
建坪單價
30.73萬/坪
地坪
7坪
主+陽
22.62坪
格局
3房2廳1衛
加蓋格局
--
屋齡
44.2年
類型
公寓
樓層
5樓/5樓
車位
--
邊間/暗房
--/--
大門朝向
西
警衛管理
無
建物詳情
建物結構
--
外牆建材
--
每層戶數
--
謄本用途
--
使用分區
--
注意事項
--
收合
物件特色
1.鄰近北屯好事多、松竹捷運站
2.電線、冷熱水管全室更新
3.One Touch節能開關設計
4.全新三機廚具
5.附贈設計師選配餐桌餐椅
類似物件實價登錄(4)
距離該物件1公里內,半年內成交,公寓
共有4間與我相似的實價登錄物件
編輯篩選條件
列表
地圖
年月
地址
類型/車位
總價
單價
建坪
地坪
屋齡
樓層
格局
備註資訊:陽台外推;
備註資訊:陽台外推;
114年03月

台中市潭子區大通街93巷64之1號
公寓
470萬
22.03萬
21.34坪
10.63坪
43.5年
2樓/5樓
3房1廳1衛
114年03月
公寓台中市潭子區大通街93巷64之1號470萬
22.03萬/坪
建坪21.34坪地坪10.63無車位
3房1廳1衛43.5年2樓/5樓
3房1廳1衛43.5年2樓/5樓
- 資料來源:
為信義房屋最新成交行情;
為內政部最新公布的實價登錄資料;
該數值為系統運算,詳細請看說明
- 本實價登錄分類係綜合內政部實價登錄2020年7月之建物型態分類調整,以及申報登錄之建物型態、建物權狀登載之「主要用途」資料推估而成,故資料呈現類型、順序可能會與內政部不動產交易實價查詢服務網之搜尋結果有所差異,請斟酌參考。看看我們如何推估實價登錄類型與順序
- 特殊行情物件可能為受到特別條件或特殊關係影響所造成,詳情請參考頁面之粉色「備註資訊」欄。排除特殊交易功能,開啟後可即時排除顯示申報備註中關係人間交易、特殊交易情況及標的類型、與政府有關之交易、僅車位交易、分件登記、含多筆土地或多棟建物、 交易標的僅有建物、土地面積為0(含地上權物件),及其他備註資訊,關閉後則會恢復顯示。
- 歷史移轉次數依據信義成交行情及政府實價登錄資訊推估,再由系統比對當筆與前一筆實價登錄,交易明細完全吻合方計算漲跌幅,當筆交易漲跌幅計算式為(當筆交易之成交總價/前一筆交易之成交總價)-1,計算百分比至小數點後兩位;可能與實際交易有所落差,資料請斟酌參考。

- 本實價登錄分類係綜合內政部實價登錄2020年7月之建物型態分類調整,以及申報登錄之建物型態、建物權狀登載之「主要用途」資料推估而成,故資料呈現類型、順序可能會與內政部不動產交易實價查詢服務網之搜尋結果有所差異,請斟酌參考。看看我們如何推估實價登錄類型與順序
- 特殊行情物件可能為受到特別條件或特殊關係影響所造成,詳情請參考頁面之粉色「備註資訊」欄。排除特殊交易功能,開啟後可即時排除顯示申報備註中關係人間交易、特殊交易情況及標的類型、與政府有關之交易、僅車位交易、分件登記、含多筆土地或多棟建物、 交易標的僅有建物、土地面積為0(含地上權物件),及其他備註資訊,關閉後則會恢復顯示。
- 歷史移轉次數依據信義成交行情及政府實價登錄資訊推估,再由系統比對當筆與前一筆實價登錄,交易明細完全吻合方計算漲跌幅,當筆交易漲跌幅計算式為(當筆交易之成交總價/前一筆交易之成交總價)-1,計算百分比至小數點後兩位;可能與實際交易有所落差,資料請斟酌參考。
查看實價登錄
根據你的設定值計算
35,291/月