
1/17
請注意,上方物件照片如有街景,為物件附近環境介紹,非物件本身。
1/17
有6人也在關注這間👀
本案專家

預約看屋
按下送出表示您已同意本站
服務條款
與隱私權聲明
送出
美麗精裝分租公寓
(2062TF)
新北市汐止區樟樹一路
有6人也在關注這間👀
詳情
總價
1,368萬
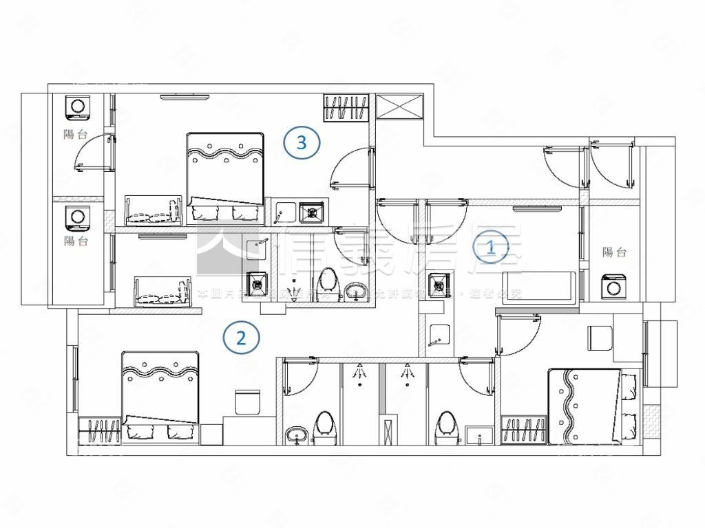
格局
3房2廳3衛
建坪
32.22坪
(主+陽28.15坪)
類型
公寓
樓層
4樓/5樓
建坪單價
42.46 萬/坪
屋齡
38.0年
地坪
7.75坪
地坪單價
--

SinyiCare十大守護 信義房屋購售屋服務保障
點擊觀看生活機能
捷運 (3)公車 (30)公共自行車 (2)停車場 (3)
0樟樹灣站(規劃中) - 出口
8.9分鐘 / 645m
1汐科站(規劃中) - 出口
17.2分鐘 / 1230m
2社后站(規劃中) - 出口
16.1分鐘 / 1181m
0樟樹灣站(規劃中) - 出口
8.9分鐘 / 645m
1汐科站(規劃中) - 出口
17.2分鐘 / 1230m
2社后站(規劃中) - 出口
16.1分鐘 / 1181m

SinyiCare十大守護 信義房屋購售屋服務保障
建坪
32.22坪
詳情
建坪單價
42.46 萬/坪
地坪
7.75坪
主+陽
28.15坪=
主建物
25.48坪+
陽台
2.67坪
共有部份
4.07坪
格局
3房2廳3衛
加蓋格局
--
屋齡
38.0年
類型
公寓
樓層
4樓/5樓
車位
--
邊間/暗房
否/否
建物朝向
南
大門朝向
東
落地窗朝向
南
警衛管理
無
建物詳情
建物結構
鋼筋混凝土
外牆建材
二丁掛
每層戶數
2
謄本用途
住家用
使用分區
第二種住宅區;
注意事項
--
收合
物件特色
109年裝潢屋況佳
每房皆有陽台精心設計
有房有廳租客喜愛
配置豐富出租不費心
近市場學校機能豐富
置產理財新選擇
捷運預定出口步行11分
網路預約專人服務
類似物件實價登錄(15)
距離該物件1公里內,半年內成交,公寓
共有15間與我相似的實價登錄物件
編輯篩選條件
列表
地圖
年月
地址
類型/車位
總價
單價
建坪
地坪
屋齡
樓層
格局
114年11月

新北市汐止區樟樹一路260號4樓
公寓
1,000萬
28.26萬
35.39坪
10.37坪
35.4年
4樓/5樓
3房1廳2衛
備註資訊:親友、員工、共有人或其他特殊關係間之交易;
114年11月
公寓新北市汐止區樟樹一路260號4樓1,000萬
28.26萬/坪
建坪35.39坪地坪10.37無車位
3房1廳2衛35.4年4樓/5樓
3房1廳2衛35.4年4樓/5樓
交易備註
114年06月

新北市汐止區樟樹一路133巷1號3樓
公寓
520萬
17.23萬
30.18坪
7.87坪
39.6年
3樓/5樓
3房2廳2衛
備註資訊:親友、員工、共有人或其他特殊關係間之交易;
114年06月
公寓新北市汐止區樟樹一路133巷1號3樓520萬
17.23萬/坪
建坪30.18坪地坪7.87無車位
3房2廳2衛39.6年3樓/5樓
3房2廳2衛39.6年3樓/5樓
交易備註
114年06月

新北市汐止區樟樹二路136巷2號2樓
公寓
1,285萬
38.38萬
33.48坪
9.11坪
37.9年
2樓/5樓
4房1廳2衛
114年06月
公寓新北市汐止區樟樹二路136巷2號2樓1,285萬
38.38萬/坪
建坪33.48坪地坪9.11無車位
4房1廳2衛37.9年2樓/5樓
4房1廳2衛37.9年2樓/5樓
114年11月

新北市汐止區樟樹一路137巷15號5樓
公寓
240萬
19.15萬
12.54坪
3.41坪
39.1年
5樓/5樓
3房1廳1衛
備註資訊:親友、員工、共有人或其他特殊關係間之交易;頂樓加蓋;
114年11月
公寓新北市汐止區樟樹一路137巷15號5樓240萬
19.15萬/坪
建坪12.54坪地坪3.41無車位
3房1廳1衛39.1年5樓/5樓
3房1廳1衛39.1年5樓/5樓
交易備註
114年11月

新北市汐止區湖前街2巷5號4樓
公寓
750萬
24.13萬
31.08坪
7.39坪
37.0年
4樓/5樓
3房2廳2衛
備註資訊:親友、員工、共有人或其他特殊關係間之交易;
114年11月
公寓新北市汐止區湖前街2巷5號4樓750萬
24.13萬/坪
建坪31.08坪地坪7.39無車位
3房2廳2衛37.0年4樓/5樓
3房2廳2衛37.0年4樓/5樓
交易備註
- 資料來源:
為信義房屋最新成交行情;
為內政部最新公布的實價登錄資料;
該數值為系統運算,詳細請看說明
- 本實價登錄分類係綜合內政部實價登錄2020年7月之建物型態分類調整,以及申報登錄之建物型態、建物權狀登載之「主要用途」資料推估而成,故資料呈現類型、順序可能會與內政部不動產交易實價查詢服務網之搜尋結果有所差異,請斟酌參考。看看我們如何推估實價登錄類型與順序
- 特殊行情物件可能為受到特別條件或特殊關係影響所造成,詳情請參考頁面之粉色「備註資訊」欄。排除特殊交易功能,開啟後可即時排除顯示申報備註中關係人間交易、特殊交易情況及標的類型、與政府有關之交易、僅車位交易、分件登記、含多筆土地或多棟建物、 交易標的僅有建物、土地面積為0(含地上權物件),及其他備註資訊,關閉後則會恢復顯示。
- 歷史移轉次數依據信義成交行情及政府實價登錄資訊推估,再由系統比對當筆與前一筆實價登錄,交易明細完全吻合方計算漲跌幅,當筆交易漲跌幅計算式為(當筆交易之成交總價/前一筆交易之成交總價)-1,計算百分比至小數點後兩位;可能與實際交易有所落差,資料請斟酌參考。
為信義房屋最新成交行情;- 本實價登錄分類係綜合內政部實價登錄2020年7月之建物型態分類調整,以及申報登錄之建物型態、建物權狀登載之「主要用途」資料推估而成,故資料呈現類型、順序可能會與內政部不動產交易實價查詢服務網之搜尋結果有所差異,請斟酌參考。看看我們如何推估實價登錄類型與順序
- 特殊行情物件可能為受到特別條件或特殊關係影響所造成,詳情請參考頁面之粉色「備註資訊」欄。排除特殊交易功能,開啟後可即時排除顯示申報備註中關係人間交易、特殊交易情況及標的類型、與政府有關之交易、僅車位交易、分件登記、含多筆土地或多棟建物、 交易標的僅有建物、土地面積為0(含地上權物件),及其他備註資訊,關閉後則會恢復顯示。
- 歷史移轉次數依據信義成交行情及政府實價登錄資訊推估,再由系統比對當筆與前一筆實價登錄,交易明細完全吻合方計算漲跌幅,當筆交易漲跌幅計算式為(當筆交易之成交總價/前一筆交易之成交總價)-1,計算百分比至小數點後兩位;可能與實際交易有所落差,資料請斟酌參考。
查看實價登錄
本案專家

根據你的設定值計算
69,464/月


