
1/16
















請注意,上方物件照片如有街景,為物件附近環境介紹,非物件本身。
1/16
非信義物件
有0人也在關注這間👀
中信房屋-屏東鏈家加盟店(鏈家房屋有限公司)
08-7325-885
屏東縣屏東市徐州路164-3號
本物件非信義房屋受託銷售,各項責任(包括但不限於廣告真實性及仲介義務等)概由各該受託業者自行負責,不屬信義房屋控制及負責範圍。
預約看屋
按下送出表示您已同意本站
服務條款
與隱私權聲明
送出
此為其他仲介業者物件

屏東房屋-崇蘭輕屋齡雙車別墅
非信義物件(2064588CT)
屏東縣屏東市廣東路
有0人也在關注這間👀
詳情
總價
2,150萬
格局
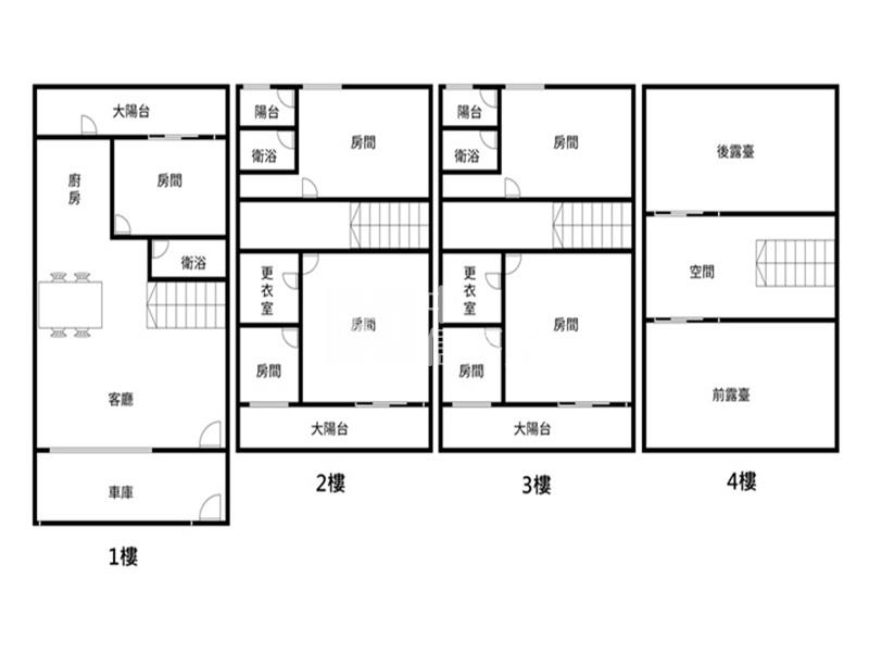
5房2廳5衛
建坪
57.37坪
(主+陽53.34坪)
類型
別墅/透天
樓層
1-3樓/3樓
建坪單價
37.48萬/坪
屋齡
8.7年
地坪
28.44坪
地坪單價
--
基本資料

建坪
57.37坪
詳情
建坪單價
37.48萬/坪
地坪
28.44坪
主+陽
53.34坪
格局
5房2廳5衛
加蓋格局
--
屋齡
8.7年
類型
別墅/透天
樓層
1-3樓/3樓
車位
1個其他,詳情請洽經紀人員更多
邊間/暗房
--/--
警衛管理
無
建物詳情
建物結構
--
外牆建材
--
每層戶數
--
謄本用途
--
使用分區
--
注意事項
--
收合
物件特色
1.鬧中取靜
2.間間套房,格局方正
3.鄰近國小、超商、超市,採買方便
類似物件實價登錄(31)
距離該物件1公里內,半年內成交,別墅/透天
共有31間與我相似的實價登錄物件
編輯篩選條件
列表
地圖
年月
地址
類型/車位
總價
單價
建坪
地坪
屋齡
樓層
格局
114年06月

屏東縣屏東巿廣東路1586巷62弄18號
別墅/透天
1,770萬
30.85萬
57.37坪
36.12坪
8.3年
1樓/3樓
5房2廳5衛
歷史移轉2次
備註資訊:其他增建;
114年06月
別墅/透天屏東縣屏東巿廣東路1586巷62弄18號移轉2次
1,770萬
30.85萬/坪
建坪57.37坪地坪36.12無車位
5房2廳5衛8.3年1樓/3樓
5房2廳5衛8.3年1樓/3樓
交易備註
114年08月

屏東縣屏東市崇朝一路36號
別墅/透天
2,588萬
46.22萬
55.99坪
25.71坪
0.3年
1樓/3樓
4房2廳2衛
備註資訊:預售屋、或土地及建物分件登記案件;
114年08月
別墅/透天屏東縣屏東市崇朝一路36號2,588萬
46.22萬/坪
建坪55.99坪地坪25.71無車位
4房2廳2衛0.3年1樓/3樓
4房2廳2衛0.3年1樓/3樓
交易備註
114年08月

屏東縣屏東巿古松西巷4弄31號
別墅/透天
738萬
14萬
52.72坪
23.29坪
32.6年
1樓/3樓
5房2廳3衛
114年08月
別墅/透天屏東縣屏東巿古松西巷4弄31號738萬
14萬/坪
建坪52.72坪地坪23.29無車位
5房2廳3衛32.6年1樓/3樓
5房2廳3衛32.6年1樓/3樓
114年08月

屏東縣屏東巿崇朝路185巷86號
別墅/透天
1,500萬
30.47萬
49.23坪
32.77坪
6.0年
1樓/3樓
4房2廳3衛
歷史移轉2次
備註資訊:陽台外推;其他增建;
114年08月
別墅/透天屏東縣屏東巿崇朝路185巷86號移轉2次
1,500萬
30.47萬/坪
建坪49.23坪地坪32.77無車位
4房2廳3衛6.0年1樓/3樓
4房2廳3衛6.0年1樓/3樓
交易備註
114年07月

屏東縣屏東巿古松西巷467之2號
別墅/透天
1,000萬
17.55萬
56.98坪
44.77坪
20.8年
1樓/3樓
5房1廳3衛
114年07月
別墅/透天屏東縣屏東巿古松西巷467之2號1,000萬
17.55萬/坪
建坪56.98坪地坪44.77無車位
5房1廳3衛20.8年1樓/3樓
5房1廳3衛20.8年1樓/3樓
- 資料來源:
為信義房屋最新成交行情;
為內政部最新公布的實價登錄資料;
該數值為系統運算,詳細請看說明
- 本實價登錄分類係綜合內政部實價登錄2020年7月之建物型態分類調整,以及申報登錄之建物型態、建物權狀登載之「主要用途」資料推估而成,故資料呈現類型、順序可能會與內政部不動產交易實價查詢服務網之搜尋結果有所差異,請斟酌參考。看看我們如何推估實價登錄類型與順序
- 特殊行情物件可能為受到特別條件或特殊關係影響所造成,詳情請參考頁面之粉色「備註資訊」欄。排除特殊交易功能,開啟後可即時排除顯示申報備註中關係人間交易、特殊交易情況及標的類型、與政府有關之交易、僅車位交易、分件登記、含多筆土地或多棟建物、 交易標的僅有建物、土地面積為0(含地上權物件),及其他備註資訊,關閉後則會恢復顯示。
- 歷史移轉次數依據信義成交行情及政府實價登錄資訊推估,再由系統比對當筆與前一筆實價登錄,交易明細完全吻合方計算漲跌幅,當筆交易漲跌幅計算式為(當筆交易之成交總價/前一筆交易之成交總價)-1,計算百分比至小數點後兩位;可能與實際交易有所落差,資料請斟酌參考。
為信義房屋最新成交行情;- 本實價登錄分類係綜合內政部實價登錄2020年7月之建物型態分類調整,以及申報登錄之建物型態、建物權狀登載之「主要用途」資料推估而成,故資料呈現類型、順序可能會與內政部不動產交易實價查詢服務網之搜尋結果有所差異,請斟酌參考。看看我們如何推估實價登錄類型與順序
- 特殊行情物件可能為受到特別條件或特殊關係影響所造成,詳情請參考頁面之粉色「備註資訊」欄。排除特殊交易功能,開啟後可即時排除顯示申報備註中關係人間交易、特殊交易情況及標的類型、與政府有關之交易、僅車位交易、分件登記、含多筆土地或多棟建物、 交易標的僅有建物、土地面積為0(含地上權物件),及其他備註資訊,關閉後則會恢復顯示。
- 歷史移轉次數依據信義成交行情及政府實價登錄資訊推估,再由系統比對當筆與前一筆實價登錄,交易明細完全吻合方計算漲跌幅,當筆交易漲跌幅計算式為(當筆交易之成交總價/前一筆交易之成交總價)-1,計算百分比至小數點後兩位;可能與實際交易有所落差,資料請斟酌參考。
查看實價登錄
根據你的設定值計算
109,173/月


