
1/8








請注意,上方物件照片如有街景,為物件附近環境介紹,非物件本身。
1/8
非信義物件
有0人也在關注這間👀
中信房屋-台南小北加盟店(彩旭房屋仲介有限公司)
06-2812-777
臺南市北區西門路4段462號
本物件非信義房屋受託銷售,各項責任(包括但不限於廣告真實性及仲介義務等)概由各該受託業者自行負責,不屬信義房屋控制及負責範圍。
預約看屋
按下送出表示您已同意本站
服務條款
與隱私權聲明
送出
此為其他仲介業者物件

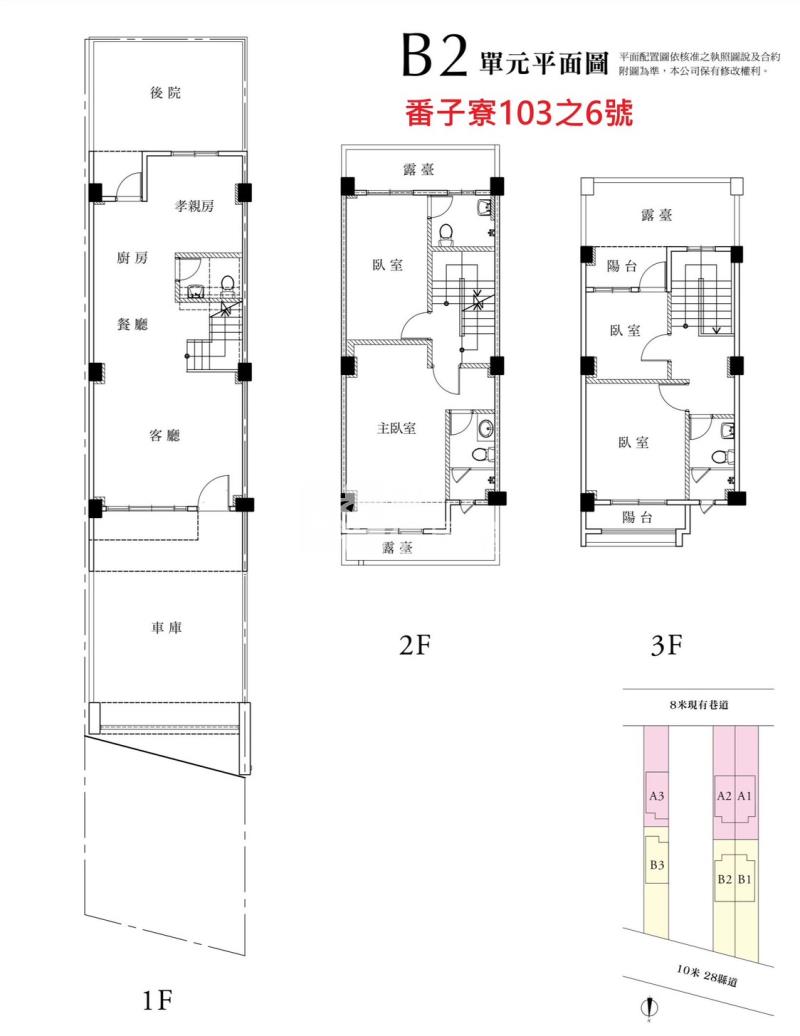
番子寮車墅-鎮瀛御院B2
非信義物件(2069280CT)
台南市佳里區番子寮路
有0人也在關注這間👀
詳情
總價
1,436萬
格局
4房2廳4衛
建坪
46.05坪
(主+陽46.05坪)
類型
別墅/透天
樓層
1-3樓/3樓
建坪單價
31.18萬/坪
屋齡
2.2年
地坪
53.83坪
地坪單價
--
基本資料

建坪
46.05坪
詳情
建坪單價
31.18萬/坪
地坪
53.83坪
主+陽
46.05坪
格局
4房2廳4衛
加蓋格局
--
屋齡
2.2年
類型
別墅/透天
樓層
1-3樓/3樓
車位
--
邊間/暗房
--/--
大門朝向
南
警衛管理
無
建物詳情
建物結構
--
外牆建材
--
每層戶數
--
謄本用途
--
使用分區
--
注意事項
--
收合
物件特色
PS:土地含前方私人持分交通用地
1.近佳里市區,大全聯佳里店量販店,購物方便
2.佳里工業區2KM,8KM直達麻豆交流道,近南科
3.雙主臥&浴室皆有對外窗,邊間採光通風佳
4.大氣門面,房房皆有陽台,南北利王座向
5.自有車庫,停車免煩惱
類似物件實價登錄(5)
距離該物件1公里內,半年內成交,別墅/透天
共有5間與我相似的實價登錄物件
編輯篩選條件
列表
地圖
年月
地址
類型/車位
總價
單價
建坪
地坪
屋齡
樓層
格局
114年05月

台南市佳里區番子寮23之9號
別墅/透天
1,200萬
27.89萬
43.03坪
25.41坪
0.4年
1樓/3樓
4房2廳3衛
114年05月
別墅/透天台南市佳里區番子寮23之9號1,200萬
27.89萬/坪
建坪43.03坪地坪25.41無車位
4房2廳3衛0.4年1樓/3樓
4房2廳3衛0.4年1樓/3樓
114年04月

台南市佳里區番子寮93之6號
別墅/透天
1,280萬
30.39萬
42.12坪
30.63坪
0.3年
1樓/3樓
4房2廳4衛
114年04月
別墅/透天台南市佳里區番子寮93之6號1,280萬
30.39萬/坪
建坪42.12坪地坪30.63無車位
4房2廳4衛0.3年1樓/3樓
4房2廳4衛0.3年1樓/3樓
114年06月

台南市佳里區番子寮103之5號
別墅/透天
1,400萬
27.05萬
51.75坪
54.26坪
1.8年
1樓/3樓
4房2廳4衛
備註資訊:一土地價款:新安段460地號:新台幣貳拾伍萬元整。新安段461-1地號:新台幣伍佰伍拾萬元整。二建物價款:新台幣捌佰貳拾伍萬元整。陽台外推;其他增建;
114年06月
別墅/透天台南市佳里區番子寮103之5號1,400萬
27.05萬/坪
建坪51.75坪地坪54.26無車位
4房2廳4衛1.8年1樓/3樓
4房2廳4衛1.8年1樓/3樓
交易備註
114年05月

台南市佳里區番子寮39之9號
別墅/透天
908萬
22.36萬
40.62坪
28.85坪
0.1年
1樓/3樓
4房2廳3衛
114年05月
別墅/透天台南市佳里區番子寮39之9號908萬
22.36萬/坪
建坪40.62坪地坪28.85無車位
4房2廳3衛0.1年1樓/3樓
4房2廳3衛0.1年1樓/3樓
114年05月

台南市七股區後港里港東56之4號
別墅/透天
315萬
14.34萬
21.97坪
16.39坪
40.2年
1樓/2樓
2房2廳2衛
備註資訊:頂樓加蓋;其他增建;
114年05月
別墅/透天台南市七股區後港里港東56之4號315萬
14.34萬/坪
建坪21.97坪地坪16.39無車位
2房2廳2衛40.2年1樓/2樓
2房2廳2衛40.2年1樓/2樓
交易備註
- 資料來源:
為信義房屋最新成交行情;
為內政部最新公布的實價登錄資料;
該數值為系統運算,詳細請看說明
- 本實價登錄分類係綜合內政部實價登錄2020年7月之建物型態分類調整,以及申報登錄之建物型態、建物權狀登載之「主要用途」資料推估而成,故資料呈現類型、順序可能會與內政部不動產交易實價查詢服務網之搜尋結果有所差異,請斟酌參考。看看我們如何推估實價登錄類型與順序
- 特殊行情物件可能為受到特別條件或特殊關係影響所造成,詳情請參考頁面之粉色「備註資訊」欄。排除特殊交易功能,開啟後可即時排除顯示申報備註中關係人間交易、特殊交易情況及標的類型、與政府有關之交易、僅車位交易、分件登記、含多筆土地或多棟建物、 交易標的僅有建物、土地面積為0(含地上權物件),及其他備註資訊,關閉後則會恢復顯示。
- 歷史移轉次數依據信義成交行情及政府實價登錄資訊推估,再由系統比對當筆與前一筆實價登錄,交易明細完全吻合方計算漲跌幅,當筆交易漲跌幅計算式為(當筆交易之成交總價/前一筆交易之成交總價)-1,計算百分比至小數點後兩位;可能與實際交易有所落差,資料請斟酌參考。
為信義房屋最新成交行情;- 本實價登錄分類係綜合內政部實價登錄2020年7月之建物型態分類調整,以及申報登錄之建物型態、建物權狀登載之「主要用途」資料推估而成,故資料呈現類型、順序可能會與內政部不動產交易實價查詢服務網之搜尋結果有所差異,請斟酌參考。看看我們如何推估實價登錄類型與順序
- 特殊行情物件可能為受到特別條件或特殊關係影響所造成,詳情請參考頁面之粉色「備註資訊」欄。排除特殊交易功能,開啟後可即時排除顯示申報備註中關係人間交易、特殊交易情況及標的類型、與政府有關之交易、僅車位交易、分件登記、含多筆土地或多棟建物、 交易標的僅有建物、土地面積為0(含地上權物件),及其他備註資訊,關閉後則會恢復顯示。
- 歷史移轉次數依據信義成交行情及政府實價登錄資訊推估,再由系統比對當筆與前一筆實價登錄,交易明細完全吻合方計算漲跌幅,當筆交易漲跌幅計算式為(當筆交易之成交總價/前一筆交易之成交總價)-1,計算百分比至小數點後兩位;可能與實際交易有所落差,資料請斟酌參考。
查看實價登錄
根據你的設定值計算
72,917/月


