
1/25

























請注意,上方物件照片如有街景,為物件附近環境介紹,非物件本身。
1/25
非信義物件
有5人也在關注這間👀
中信房屋-楊梅青山加盟店(聖平地產開發有限公司)
03-4643-355
桃園市楊梅區青山五街2號
本物件非信義房屋受託銷售,各項責任(包括但不限於廣告真實性及仲介義務等)概由各該受託業者自行負責,不屬信義房屋控制及負責範圍。
預約看屋
按下送出表示您已同意本站
服務條款
與隱私權聲明
送出
此為其他仲介業者物件

平鎮南豐5層透天大空間
非信義物件(2073840CT)
桃園市平鎮區南豐路
有5人也在關注這間👀
詳情
總價
1,288萬
格局
6房2廳4衛
建坪
53.41坪
(主+陽50.28坪)
類型
別墅/透天
樓層
1-4樓/4樓
建坪單價
24.12萬/坪
屋齡
30.7年
地坪
16.16坪
地坪單價
--
基本資料

建坪
53.41坪
詳情
建坪單價
24.12萬/坪
地坪
16.16坪
主+陽
50.28坪
格局
6房2廳4衛
加蓋格局
--
屋齡
30.7年
類型
別墅/透天
樓層
1-4樓/4樓
車位
--
邊間/暗房
--/--
警衛管理
無
建物詳情
建物結構
--
外牆建材
--
每層戶數
--
謄本用途
--
使用分區
--
注意事項
--
收合
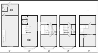
物件特色
1. 格局方正,房間數多,適合家庭入住
2. 一樓空間寬廣,適合多種需求
3. 廚房為增建空間
4. 5樓後方房間有滲漏水情況,需進行整修
類似物件實價登錄(36)
距離該物件1公里內,半年內成交,別墅/透天
共有36間與我相似的實價登錄物件
編輯篩選條件
列表
地圖
年月
地址
類型/車位
總價
單價
建坪
地坪
屋齡
樓層
格局
114年07月

桃園市平鎮區南豐路154巷16號
別墅/透天
800萬
19.5萬
41.02坪
29.2坪
34.2年
1樓/2樓
4房2廳4衛
備註資訊:親友、員工、共有人或其他特殊關係間之交易;
114年07月
別墅/透天桃園市平鎮區南豐路154巷16號800萬
19.5萬/坪
建坪41.02坪地坪29.2無車位
4房2廳4衛34.2年1樓/2樓
4房2廳4衛34.2年1樓/2樓
交易備註
114年07月

桃園市平鎮區東豐路19巷34號
別墅/透天
1,380萬
23.59萬
58.49坪
30.62坪
32.2年
1樓/2樓
5房2廳5衛
備註資訊:親友間買賣陽台外推;頂樓加蓋;
114年07月
別墅/透天桃園市平鎮區東豐路19巷34號1,380萬
23.59萬/坪
建坪58.49坪地坪30.62無車位
5房2廳5衛32.2年1樓/2樓
5房2廳5衛32.2年1樓/2樓
交易備註
114年08月

桃園市平鎮區湧光路136巷38弄4衖14號
別墅/透天
262萬
10.71萬
24.46坪
19.99坪
46.6年
1樓/2樓
2房2廳2衛
114年08月
別墅/透天桃園市平鎮區湧光路136巷38弄4衖14號262萬
10.71萬/坪
建坪24.46坪地坪19.99無車位
2房2廳2衛46.6年1樓/2樓
2房2廳2衛46.6年1樓/2樓
114年07月

桃園市平鎮區東豐路36巷6弄23號
別墅/透天
700萬
27.33萬
25.61坪
23.53坪
46.0年
1樓/2樓
5房2廳4衛
歷史移轉3次
備註資訊:頂樓平台增建其他增建;
114年07月
別墅/透天桃園市平鎮區東豐路36巷6弄23號移轉3次
700萬
27.33萬/坪
建坪25.61坪地坪23.53無車位
5房2廳4衛46.0年1樓/2樓
5房2廳4衛46.0年1樓/2樓
交易備註
114年06月

桃園市平鎮區中豐路山頂段495巷25號
別墅/透天
345萬
7.75萬
44.49坪
31.55坪
34.2年
1樓/3樓
4房1廳2衛
備註資訊:親友、員工、共有人或其他特殊關係間之交易;
114年06月
別墅/透天桃園市平鎮區中豐路山頂段495巷25號345萬
7.75萬/坪
建坪44.49坪地坪31.55無車位
4房1廳2衛34.2年1樓/3樓
4房1廳2衛34.2年1樓/3樓
交易備註
- 資料來源:
為信義房屋最新成交行情;
為內政部最新公布的實價登錄資料;
該數值為系統運算,詳細請看說明
- 本實價登錄分類係綜合內政部實價登錄2020年7月之建物型態分類調整,以及申報登錄之建物型態、建物權狀登載之「主要用途」資料推估而成,故資料呈現類型、順序可能會與內政部不動產交易實價查詢服務網之搜尋結果有所差異,請斟酌參考。看看我們如何推估實價登錄類型與順序
- 特殊行情物件可能為受到特別條件或特殊關係影響所造成,詳情請參考頁面之粉色「備註資訊」欄。排除特殊交易功能,開啟後可即時排除顯示申報備註中關係人間交易、特殊交易情況及標的類型、與政府有關之交易、僅車位交易、分件登記、含多筆土地或多棟建物、 交易標的僅有建物、土地面積為0(含地上權物件),及其他備註資訊,關閉後則會恢復顯示。
- 歷史移轉次數依據信義成交行情及政府實價登錄資訊推估,再由系統比對當筆與前一筆實價登錄,交易明細完全吻合方計算漲跌幅,當筆交易漲跌幅計算式為(當筆交易之成交總價/前一筆交易之成交總價)-1,計算百分比至小數點後兩位;可能與實際交易有所落差,資料請斟酌參考。
為信義房屋最新成交行情;- 本實價登錄分類係綜合內政部實價登錄2020年7月之建物型態分類調整,以及申報登錄之建物型態、建物權狀登載之「主要用途」資料推估而成,故資料呈現類型、順序可能會與內政部不動產交易實價查詢服務網之搜尋結果有所差異,請斟酌參考。看看我們如何推估實價登錄類型與順序
- 特殊行情物件可能為受到特別條件或特殊關係影響所造成,詳情請參考頁面之粉色「備註資訊」欄。排除特殊交易功能,開啟後可即時排除顯示申報備註中關係人間交易、特殊交易情況及標的類型、與政府有關之交易、僅車位交易、分件登記、含多筆土地或多棟建物、 交易標的僅有建物、土地面積為0(含地上權物件),及其他備註資訊,關閉後則會恢復顯示。
- 歷史移轉次數依據信義成交行情及政府實價登錄資訊推估,再由系統比對當筆與前一筆實價登錄,交易明細完全吻合方計算漲跌幅,當筆交易漲跌幅計算式為(當筆交易之成交總價/前一筆交易之成交總價)-1,計算百分比至小數點後兩位;可能與實際交易有所落差,資料請斟酌參考。
查看實價登錄
根據你的設定值計算
65,402/月


