
請注意,上方物件照片如有街景,為物件附近環境介紹,非物件本身。
1/22
有46人也在關注這間👀
本案專家
更多挑選
按下按鈕表示您已同意本站
服務條款
與隱私權聲明
預約看屋
仁德國宅2樓
(2074FV)
新竹市建新路
有46人也在關注這間👀
總價
980萬
建坪單價
56.55 萬/坪
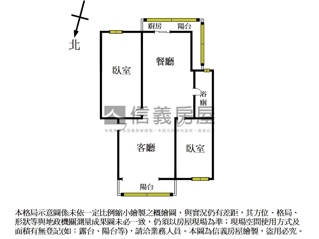
格局
2房2廳1衛
房貸試算
計算
元/月
年|利率%概算|undefined年寬限期
符合首購資格嗎?
坪數詳情
細項
建坪17.33
主建物17.33
地坪9.3
類型公寓
屋齡48.2年
樓層2樓/4樓
加蓋格局--
謄本用途住家用
使用分區第一種住宅區;
完整物件詳情
本案專家
更多挑選
物件特色
近建功國小國中
近清大夜市
交通便利,鬧中取靜
使用空間大
首購族的最愛
近清華大學
園區上班方便
生活機能便利
周邊生活機能


SinyiCare十大守護 信義房屋購售屋服務保障
點擊觀看生活機能
公車 (18)
公共自行車 (2)
0文教新村
3.5分鐘 / 241m
1文教新村
4分鐘 / 276m
2建功高中
4.4分鐘 / 315m
3忠貞新村
6分鐘 / 421m
4忠貞新村
6.6分鐘 / 471m
5建功高中
5.5分鐘 / 399m
6孟竹國宅
5分鐘 / 384m
7孟竹國宅
5.5分鐘 / 428m
8清華大學
7.2分鐘 / 489m
9文教新村
8分鐘 / 546m
A文教新村
7.9分鐘 / 547m
B清華大學
8.1分鐘 / 575m
C北校門
8.9分鐘 / 601m
D清大北校門
8.9分鐘 / 599m
E金城一路站
8.9分鐘 / 634m
F金城一路站
9.1分鐘 / 645m
G金城新村口
11.4分鐘 / 793m
H光復中學
8.7分鐘 / 632m
0文教新村
3.5分鐘 / 241m
1文教新村
4分鐘 / 276m
2建功高中
4.4分鐘 / 315m
3忠貞新村
6分鐘 / 421m
4忠貞新村
6.6分鐘 / 471m
完整周邊生活圈


SinyiCare十大守護 信義房屋購售屋服務保障
類似物件實價登錄
(5)
1公里內 | 半年內 | 公寓
3房1廳2衛
|19.81坪
|無車位
1,300萬65.61萬/坪
114/09成交
3房2廳2衛
|24.37坪
|無車位
1,100萬45.14萬/坪
114/12成交


