
1/8








請注意,上方物件照片如有街景,為物件附近環境介紹,非物件本身。
1/8
非信義物件
有1人也在關注這間👀
中信房屋-平鎮振興加盟店(祥耀企業社)
03-2712-860
桃園市平鎮區振興路58號
本物件非信義房屋受託銷售,各項責任(包括但不限於廣告真實性及仲介義務等)概由各該受託業者自行負責,不屬信義房屋控制及負責範圍。
預約看屋
按下送出表示您已同意本站
服務條款
與隱私權聲明
送出
此為其他仲介業者物件

平興國小店墅
非信義物件(2076902CT)
桃園市平鎮區廣泰路
有1人也在關注這間👀
詳情
總價
2,600萬
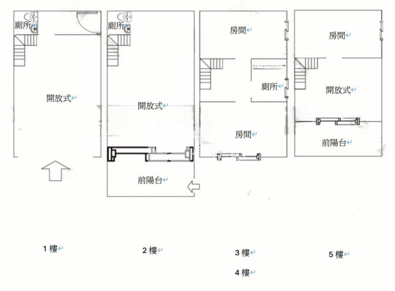
格局
5房3廳4衛
建坪
78.49坪
(主+陽76.57坪)
類型
別墅/透天
樓層
1-5樓/5樓
建坪單價
33.13萬/坪
屋齡
21.6年
地坪
32.08坪
地坪單價
--
基本資料

建坪
78.49坪
詳情
建坪單價
33.13萬/坪
地坪
32.08坪
主+陽
76.57坪
格局
5房3廳4衛
加蓋格局
--
屋齡
21.6年
類型
別墅/透天
樓層
1-5樓/5樓
車位
--
邊間/暗房
--/--
大門朝向
西南
警衛管理
無
建物詳情
建物結構
--
外牆建材
--
每層戶數
--
謄本用途
--
使用分區
--
注意事項
--
收合
物件特色
1.近平興國小&聯新醫院
2.近66快速道路.交通便利
3.住店合一.生活機能優
4.門前停車
類似物件實價登錄(14)
距離該物件1公里內,半年內成交,別墅/透天
共有14間與我相似的實價登錄物件
編輯篩選條件
列表
地圖
年月
地址
類型/車位
總價
單價
建坪
地坪
屋齡
樓層
格局
114年10月

桃園市平鎮區廣泰路210巷59號
別墅/透天
2,130萬
28.76萬
74.07坪
25.64坪
11.8年
1樓/5樓
4房4廳3衛
歷史移轉3次
114年10月
別墅/透天桃園市平鎮區廣泰路210巷59號移轉3次
2,130萬
28.76萬/坪
建坪74.07坪地坪25.64無車位
4房4廳3衛11.8年1樓/5樓
4房4廳3衛11.8年1樓/5樓
114年11月

桃園市平鎮區廣泰路201巷28弄8衖3號
別墅/透天
930萬
34.83萬
26.7坪
28.4坪
46.5年
1樓/2樓
3房2廳2衛
歷史移轉2次
備註資訊:3樓鐵皮及1樓左側與1樓后方增建。
114年11月
別墅/透天桃園市平鎮區廣泰路201巷28弄8衖3號移轉2次
930萬
34.83萬/坪
建坪26.7坪地坪28.4無車位
3房2廳2衛46.5年1樓/2樓
3房2廳2衛46.5年1樓/2樓
交易備註
2,600萬
21.16萬/坪
建坪122.88坪地坪25.44無車位
3房3廳3衛25.8年1樓/5樓
3房3廳3衛25.8年1樓/5樓
114年10月


廣泰路154巷13號
別墅/透天
900萬
31.51萬
28.57坪
19.97坪
46.6年
1樓/2樓
4房2廳2衛
備註資訊:頂樓加蓋;其他增建;
114年10月
別墅/透天廣泰路154巷13號900萬
31.51萬/坪
建坪28.57坪地坪19.97無車位
4房2廳2衛46.6年1樓/2樓
4房2廳2衛46.6年1樓/2樓
信義成交交易備註
114年10月

桃園市平鎮區延平路三段104巷11弄21號
別墅/透天
1,000萬
15.97萬
62.62坪
22.77坪
22.3年
1樓/5樓
4房2廳4衛
歷史移轉2次
備註資訊:親友、員工、共有人或其他特殊關係間之交易;
114年10月
別墅/透天桃園市平鎮區延平路三段104巷11弄21號移轉2次
1,000萬
15.97萬/坪
建坪62.62坪地坪22.77無車位
4房2廳4衛22.3年1樓/5樓
4房2廳4衛22.3年1樓/5樓
交易備註
- 資料來源:
為信義房屋最新成交行情;
為內政部最新公布的實價登錄資料;
該數值為系統運算,詳細請看說明
- 本實價登錄分類係綜合內政部實價登錄2020年7月之建物型態分類調整,以及申報登錄之建物型態、建物權狀登載之「主要用途」資料推估而成,故資料呈現類型、順序可能會與內政部不動產交易實價查詢服務網之搜尋結果有所差異,請斟酌參考。看看我們如何推估實價登錄類型與順序
- 特殊行情物件可能為受到特別條件或特殊關係影響所造成,詳情請參考頁面之粉色「備註資訊」欄。排除特殊交易功能,開啟後可即時排除顯示申報備註中關係人間交易、特殊交易情況及標的類型、與政府有關之交易、僅車位交易、分件登記、含多筆土地或多棟建物、 交易標的僅有建物、土地面積為0(含地上權物件),及其他備註資訊,關閉後則會恢復顯示。
- 歷史移轉次數依據信義成交行情及政府實價登錄資訊推估,再由系統比對當筆與前一筆實價登錄,交易明細完全吻合方計算漲跌幅,當筆交易漲跌幅計算式為(當筆交易之成交總價/前一筆交易之成交總價)-1,計算百分比至小數點後兩位;可能與實際交易有所落差,資料請斟酌參考。
為信義房屋最新成交行情;- 本實價登錄分類係綜合內政部實價登錄2020年7月之建物型態分類調整,以及申報登錄之建物型態、建物權狀登載之「主要用途」資料推估而成,故資料呈現類型、順序可能會與內政部不動產交易實價查詢服務網之搜尋結果有所差異,請斟酌參考。看看我們如何推估實價登錄類型與順序
- 特殊行情物件可能為受到特別條件或特殊關係影響所造成,詳情請參考頁面之粉色「備註資訊」欄。排除特殊交易功能,開啟後可即時排除顯示申報備註中關係人間交易、特殊交易情況及標的類型、與政府有關之交易、僅車位交易、分件登記、含多筆土地或多棟建物、 交易標的僅有建物、土地面積為0(含地上權物件),及其他備註資訊,關閉後則會恢復顯示。
- 歷史移轉次數依據信義成交行情及政府實價登錄資訊推估,再由系統比對當筆與前一筆實價登錄,交易明細完全吻合方計算漲跌幅,當筆交易漲跌幅計算式為(當筆交易之成交總價/前一筆交易之成交總價)-1,計算百分比至小數點後兩位;可能與實際交易有所落差,資料請斟酌參考。
查看實價登錄
根據你的設定值計算
132,023/月


