
































請注意,上方物件照片如有街景,為物件附近環境介紹,非物件本身。
1/16
有3人也在關注這間👀
中信房屋-屏東自由加盟店(泰順不動產有限公司)
08-7327-373
屏東縣屏東市自由路218號
本物件非信義房屋受託銷售,各項責任(包括但不限於廣告真實性及仲介義務等)概由各該受託業者自行負責,不屬信義房屋控制及負責範圍。
按下按鈕表示您已同意本站
服務條款
與隱私權聲明
預約看屋
此為其他仲介業者物件

自由路西段店面透天
非信義物件(2079202CT)
屏東縣屏東市自由路
有3人也在關注這間👀
總價
1,288萬
建坪單價
20.33萬/坪
格局
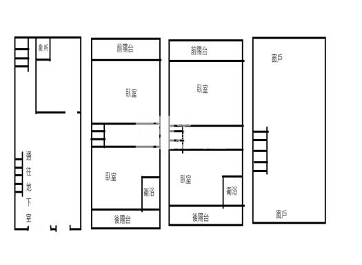
5房2廳3衛
房貸試算
計算
元/月
年|利率%概算|undefined年寬限期
符合首購資格嗎?
坪數詳情
細項
建坪63.34
主建物62.38
地坪23.6
類型其它
屋齡45.3年
樓層1-3樓/3樓
加蓋格局--
謄本用途--
使用分區--
完整物件詳情
中信房屋-屏東自由加盟店(泰順不動產有限公司)
08-7327-373
屏東縣屏東市自由路218號
物件特色
前面道路為屏東市公所所有
大馬路邊.可做生意或住宅
近學區.小孩接送免煩惱
雙菜市場.方便又便利
屋頂有搭鐵皮.磁磚地板
屋況需整理
類似物件實價登錄
(0)
1公里內 | 半年內 | 其它
還沒有任何成交資訊


