
1/10










請注意,上方物件照片如有街景,為物件附近環境介紹,非物件本身。
1/10
非信義物件
有0人也在關注這間👀
中信房屋-新世紀加盟店(程得不動產股份有限公司)
03-4620-808
桃園市中壢區南園二路69號
本物件非信義房屋受託銷售,各項責任(包括但不限於廣告真實性及仲介義務等)概由各該受託業者自行負責,不屬信義房屋控制及負責範圍。
預約看屋
按下送出表示您已同意本站
服務條款
與隱私權聲明
送出
此為其他仲介業者物件

【新世紀】延平路大地坪透店
非信義物件(2082151CT)
桃園市平鎮區延平路2段
有0人也在關注這間👀
詳情
總價
2,480萬
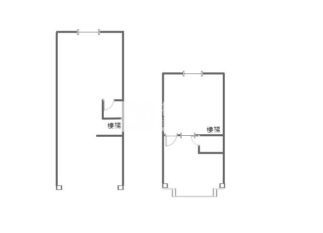
格局
--
建坪
51.64坪
(主建物51.64坪)
類型
別墅/透天
樓層
1-2樓/2樓
建坪單價
48.02萬/坪
屋齡
46.4年
地坪
49.01坪
地坪單價
--
基本資料

建坪
51.64坪
詳情
建坪單價
48.02萬/坪
地坪
49.01坪
主建物
51.64坪
格局
--
加蓋格局
--
屋齡
46.4年
類型
別墅/透天
樓層
1-2樓/2樓
車位
--
邊間/暗房
--/--
大門朝向
西
警衛管理
無
建物詳情
建物結構
--
外牆建材
--
每層戶數
--
謄本用途
--
使用分區
--
注意事項
--
收合
物件特色
類似物件實價登錄(18)
距離該物件1公里內,半年內成交,別墅/透天
共有18間與我相似的實價登錄物件
編輯篩選條件
列表
地圖
年月
地址
類型/車位
總價
單價
建坪
地坪
屋齡
樓層
格局
114年07月

桃園市平鎮區中豐路72巷9號
別墅/透天
1,310萬
25.31萬
51.76坪
36.05坪
43.1年
1樓/2樓
6房3廳4衛
歷史移轉2次
備註資訊:增建至防火巷頂樓加蓋;其他增建;
114年07月
別墅/透天桃園市平鎮區中豐路72巷9號移轉2次
1,310萬
25.31萬/坪
建坪51.76坪地坪36.05無車位
6房3廳4衛43.1年1樓/2樓
6房3廳4衛43.1年1樓/2樓
交易備註
114年06月

桃園市平鎮區義民路226巷18號
別墅/透天
868萬
33.27萬
26.09坪
33.27坪
45.4年
1樓/2樓
3房2廳2衛
備註資訊:防火巷增建、鐵鋁窗增建、鐵皮屋增建、頂樓增建、停車空間、獨立車庫
114年06月
別墅/透天桃園市平鎮區義民路226巷18號868萬
33.27萬/坪
建坪26.09坪地坪33.27無車位
3房2廳2衛45.4年1樓/2樓
3房2廳2衛45.4年1樓/2樓
交易備註
114年06月

桃園市平鎮區延平路二段21巷43弄13衖6號
別墅/透天
1,400萬
54.44萬
25.72坪
19.66坪
46.6年
1樓/2樓
4房2廳2衛
歷史移轉2次
114年06月
別墅/透天桃園市平鎮區延平路二段21巷43弄13衖6號移轉2次
1,400萬
54.44萬/坪
建坪25.72坪地坪19.66無車位
4房2廳2衛46.6年1樓/2樓
4房2廳2衛46.6年1樓/2樓
114年10月


廣泰路154巷13號
別墅/透天
900萬
31.51萬
28.57坪
19.97坪
46.6年
1樓/2樓
4房2廳2衛
備註資訊:頂樓加蓋;其他增建;
114年10月
別墅/透天廣泰路154巷13號900萬
31.51萬/坪
建坪28.57坪地坪19.97無車位
4房2廳2衛46.6年1樓/2樓
4房2廳2衛46.6年1樓/2樓
信義成交交易備註
114年10月

桃園市平鎮區新榮路94巷1弄7號
別墅/透天
303萬
9.46萬
32.04坪
18.48坪
40.1年
1樓/2樓
3房1廳1衛
備註資訊:親友、員工、共有人或其他特殊關係間之交易;
114年10月
別墅/透天桃園市平鎮區新榮路94巷1弄7號303萬
9.46萬/坪
建坪32.04坪地坪18.48無車位
3房1廳1衛40.1年1樓/2樓
3房1廳1衛40.1年1樓/2樓
交易備註
- 資料來源:
為信義房屋最新成交行情;
為內政部最新公布的實價登錄資料;
該數值為系統運算,詳細請看說明
- 本實價登錄分類係綜合內政部實價登錄2020年7月之建物型態分類調整,以及申報登錄之建物型態、建物權狀登載之「主要用途」資料推估而成,故資料呈現類型、順序可能會與內政部不動產交易實價查詢服務網之搜尋結果有所差異,請斟酌參考。看看我們如何推估實價登錄類型與順序
- 特殊行情物件可能為受到特別條件或特殊關係影響所造成,詳情請參考頁面之粉色「備註資訊」欄。排除特殊交易功能,開啟後可即時排除顯示申報備註中關係人間交易、特殊交易情況及標的類型、與政府有關之交易、僅車位交易、分件登記、含多筆土地或多棟建物、 交易標的僅有建物、土地面積為0(含地上權物件),及其他備註資訊,關閉後則會恢復顯示。
- 歷史移轉次數依據信義成交行情及政府實價登錄資訊推估,再由系統比對當筆與前一筆實價登錄,交易明細完全吻合方計算漲跌幅,當筆交易漲跌幅計算式為(當筆交易之成交總價/前一筆交易之成交總價)-1,計算百分比至小數點後兩位;可能與實際交易有所落差,資料請斟酌參考。
為信義房屋最新成交行情;- 本實價登錄分類係綜合內政部實價登錄2020年7月之建物型態分類調整,以及申報登錄之建物型態、建物權狀登載之「主要用途」資料推估而成,故資料呈現類型、順序可能會與內政部不動產交易實價查詢服務網之搜尋結果有所差異,請斟酌參考。看看我們如何推估實價登錄類型與順序
- 特殊行情物件可能為受到特別條件或特殊關係影響所造成,詳情請參考頁面之粉色「備註資訊」欄。排除特殊交易功能,開啟後可即時排除顯示申報備註中關係人間交易、特殊交易情況及標的類型、與政府有關之交易、僅車位交易、分件登記、含多筆土地或多棟建物、 交易標的僅有建物、土地面積為0(含地上權物件),及其他備註資訊,關閉後則會恢復顯示。
- 歷史移轉次數依據信義成交行情及政府實價登錄資訊推估,再由系統比對當筆與前一筆實價登錄,交易明細完全吻合方計算漲跌幅,當筆交易漲跌幅計算式為(當筆交易之成交總價/前一筆交易之成交總價)-1,計算百分比至小數點後兩位;可能與實際交易有所落差,資料請斟酌參考。
查看實價登錄
根據你的設定值計算
125,929/月


