
1/13













請注意,上方物件照片如有街景,為物件附近環境介紹,非物件本身。
1/13
非信義物件
有4人也在關注這間👀
中信房屋-太平家誠加盟店(家誠不動產開發有限公司)
04-2279-4988
臺中市太平區太平路816號
本物件非信義房屋受託銷售,各項責任(包括但不限於廣告真實性及仲介義務等)概由各該受託業者自行負責,不屬信義房屋控制及負責範圍。
預約看屋
按下送出表示您已同意本站
服務條款
與隱私權聲明
送出
此為其他仲介業者物件

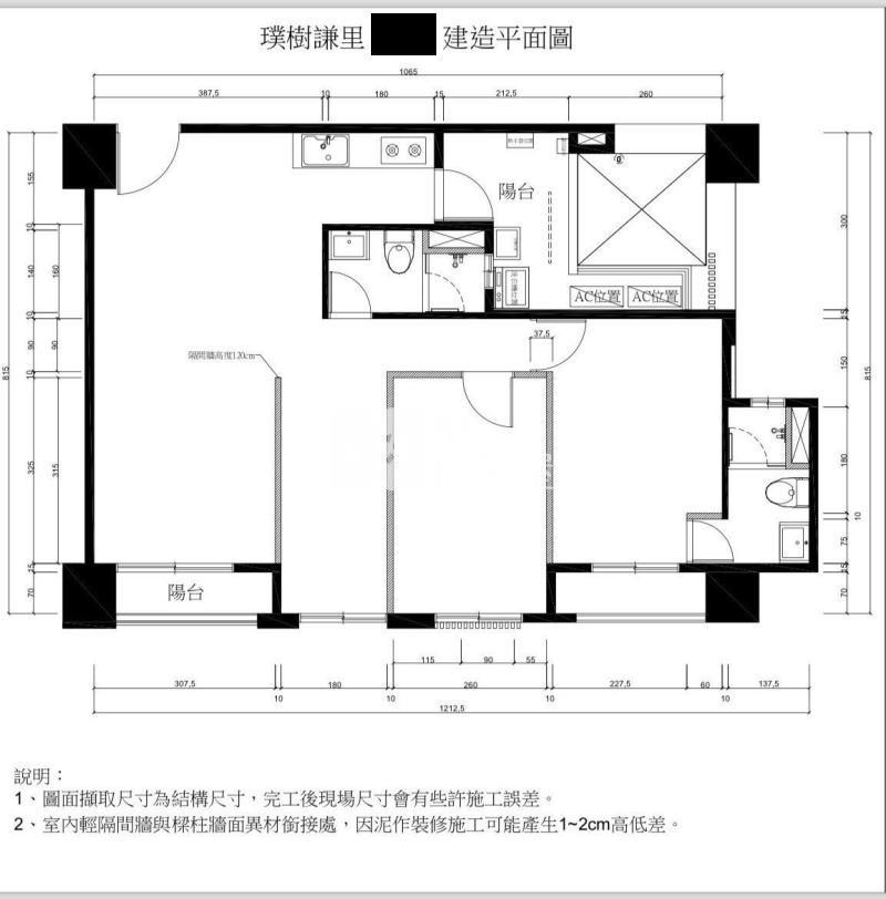
璞樹謙里美三房平車
非信義物件(2087782CT)
台中市太平區育賢路
有4人也在關注這間👀
詳情
總價
1,555萬
格局
3房2廳2衛
建坪
47.69坪
(主+陽26.11坪)
類型
大樓
樓層
5樓/15樓
建坪單價
32.61萬/坪
屋齡
0.7年
地坪
6.61坪
地坪單價
--
基本資料

建坪
47.69坪
詳情
建坪單價
32.61萬/坪
地坪
6.61坪
主+陽
26.11坪
格局
3房2廳2衛
加蓋格局
--
屋齡
0.7年
類型
大樓
樓層
5樓/15樓
車位
1個坡道平面
邊間/暗房
--/--
警衛管理
有
管理費
90 元/月
建物詳情
建物結構
--
外牆建材
--
每層戶數
--
謄本用途
--
使用分區
--
注意事項
--
收合
物件特色
🌟社區同坪數都賣到1739萬了,我們這間只要1555萬,現省200萬價差🌟
🔥低於實登,全新交屋三房~中樓層視野 比建商還便宜🔥
類似物件實價登錄(193)
距離該物件1公里內,半年內成交,大樓
共有193間與我相似的實價登錄物件
編輯篩選條件
列表
地圖
年月
地址
類型/車位
總價
單價
建坪
地坪
屋齡
樓層
格局
114年12月

台中市北屯區祥順路一段483號七樓之2
大樓
有車位
1,470萬
含車位價
含車位價
30.79萬
含車位計算
含車位計算
47.74坪
含車位8.43坪
含車位8.43坪
5.87坪
3.8年
7樓/15樓
3房2廳2衛
歷史移轉2次
1,470萬
含車位價
30.79萬/坪
含車位計算
建坪47.74坪(含車位8.43坪)地坪5.87有車位
3房2廳2衛3.8年7樓/15樓
3房2廳2衛3.8年7樓/15樓
114年08月

台中市北屯區祥順路一段480號十五樓之2
大樓
有車位
1,460萬
含車位價
含車位價
31.01萬
含車位計算
含車位計算
47.09坪
含車位8.43坪
含車位8.43坪
5.74坪
3.4年
15樓/15樓
3房2廳2衛
歷史移轉2次
1,460萬
含車位價
31.01萬/坪
含車位計算
建坪47.09坪(含車位8.43坪)地坪5.74有車位
3房2廳2衛3.4年15樓/15樓
3房2廳2衛3.4年15樓/15樓
114年08月

台中市北屯區太順一街59號九樓之2
大樓
有車位
1,620萬
含車位195萬
含車位195萬
40.87萬
已扣除車位
已扣除車位
45.87坪
含車位11坪
含車位11坪
7.31坪
0.6年
9樓/11樓
3房2廳2衛
114年08月
大樓台中市北屯區太順一街59號九樓之21,620萬
含車位195萬
40.87萬/坪
已扣除車位
建坪45.87坪(含車位11坪)地坪7.31有車位
3房2廳2衛0.6年9樓/11樓
3房2廳2衛0.6年9樓/11樓
114年12月

台中市太平區環中東路三段209號八樓之3
大樓
有車位
1,420萬
含車位價
含車位價
30.95萬
含車位計算
含車位計算
45.88坪
含車位7.87坪
含車位7.87坪
7.72坪
1.4年
8樓/15樓
3房2廳2衛
歷史移轉2次
114年12月
大樓台中市太平區環中東路三段209號八樓之3移轉2次
1,420萬
含車位價
30.95萬/坪
含車位計算
建坪45.88坪(含車位7.87坪)地坪7.72有車位
3房2廳2衛1.4年8樓/15樓
3房2廳2衛1.4年8樓/15樓
- 資料來源:
為信義房屋最新成交行情;
為內政部最新公布的實價登錄資料;
該數值為系統運算,詳細請看說明
- 本實價登錄分類係綜合內政部實價登錄2020年7月之建物型態分類調整,以及申報登錄之建物型態、建物權狀登載之「主要用途」資料推估而成,故資料呈現類型、順序可能會與內政部不動產交易實價查詢服務網之搜尋結果有所差異,請斟酌參考。看看我們如何推估實價登錄類型與順序
- 特殊行情物件可能為受到特別條件或特殊關係影響所造成,詳情請參考頁面之粉色「備註資訊」欄。排除特殊交易功能,開啟後可即時排除顯示申報備註中關係人間交易、特殊交易情況及標的類型、與政府有關之交易、僅車位交易、分件登記、含多筆土地或多棟建物、 交易標的僅有建物、土地面積為0(含地上權物件),及其他備註資訊,關閉後則會恢復顯示。
- 歷史移轉次數依據信義成交行情及政府實價登錄資訊推估,再由系統比對當筆與前一筆實價登錄,交易明細完全吻合方計算漲跌幅,當筆交易漲跌幅計算式為(當筆交易之成交總價/前一筆交易之成交總價)-1,計算百分比至小數點後兩位;可能與實際交易有所落差,資料請斟酌參考。
為信義房屋最新成交行情;- 本實價登錄分類係綜合內政部實價登錄2020年7月之建物型態分類調整,以及申報登錄之建物型態、建物權狀登載之「主要用途」資料推估而成,故資料呈現類型、順序可能會與內政部不動產交易實價查詢服務網之搜尋結果有所差異,請斟酌參考。看看我們如何推估實價登錄類型與順序
- 特殊行情物件可能為受到特別條件或特殊關係影響所造成,詳情請參考頁面之粉色「備註資訊」欄。排除特殊交易功能,開啟後可即時排除顯示申報備註中關係人間交易、特殊交易情況及標的類型、與政府有關之交易、僅車位交易、分件登記、含多筆土地或多棟建物、 交易標的僅有建物、土地面積為0(含地上權物件),及其他備註資訊,關閉後則會恢復顯示。
- 歷史移轉次數依據信義成交行情及政府實價登錄資訊推估,再由系統比對當筆與前一筆實價登錄,交易明細完全吻合方計算漲跌幅,當筆交易漲跌幅計算式為(當筆交易之成交總價/前一筆交易之成交總價)-1,計算百分比至小數點後兩位;可能與實際交易有所落差,資料請斟酌參考。
查看實價登錄
根據你的設定值計算
78,960/月


