
































請注意,上方物件照片如有街景,為物件附近環境介紹,非物件本身。
1/16
有0人也在關注這間👀
中信房屋-青埔環球加盟店(俋辰企業社)
03-2877-878
桃園市中壢區高鐵南路2段258號
本物件非信義房屋受託銷售,各項責任(包括但不限於廣告真實性及仲介義務等)概由各該受託業者自行負責,不屬信義房屋控制及負責範圍。
按下按鈕表示您已同意本站
服務條款
與隱私權聲明
預約看屋
此為其他仲介業者物件

【神馬】體育園區第一排燙金透店
非信義物件(2093172CT)
桃園市中壢區中山東路2段
有0人也在關注這間👀
總價
2,800萬
建坪單價
58.72萬/坪
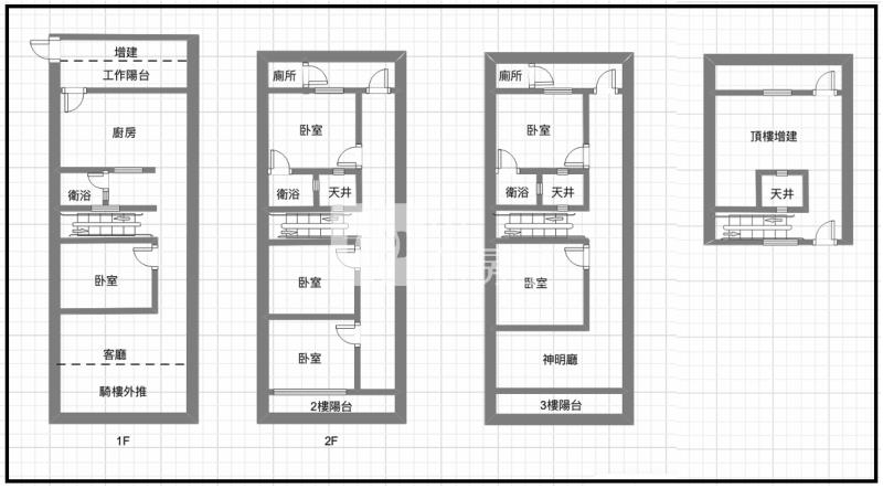
格局
6房3廳5衛
房貸試算
計算
元/月
年|利率%概算|undefined年寬限期
符合首購資格嗎?
坪數詳情
細項
建坪47.68
主建物47.68
地坪28.63
類型別墅/透天
屋齡40.3年
樓層1-3樓/3樓
加蓋格局--
謄本用途--
使用分區--
完整物件詳情
中信房屋-青埔環球加盟店(俋辰企業社)
03-2877-878
桃園市中壢區高鐵南路2段258號
物件特色
•正面30米中山東路緊臨環中東路 未來體育園區第一排
•鄰近家樂福商場 中原商圈
•47坪3層樓大透天 土地28坪
•使用用途住商用
•面寬約4.5米 深約10.9米
•房子內規劃天井 通風採光良好
•近未來捷運綠線G27站,未來可期
類似物件實價登錄
(20)
1公里內 | 半年內 | 別墅/透天
6房3廳4衛
|44.23坪
|無車位
1,716萬38.8萬/坪
114/11成交
4房2廳5衛
|48.04坪
|無車位
1,000萬20.81萬/坪
114/11成交


