






















請注意,上方物件照片如有街景,為物件附近環境介紹,非物件本身。
1/11
有14人也在關注這間👀
中信房屋-青埔高鐵站前加盟店(玖禾不動產開發有限公司)
03-2878-287
桃園市中壢區高鐵站前西路1段272號一樓
本物件非信義房屋受託銷售,各項責任(包括但不限於廣告真實性及仲介義務等)概由各該受託業者自行負責,不屬信義房屋控制及負責範圍。
按下按鈕表示您已同意本站
服務條款
與隱私權聲明
預約看屋
此為其他仲介業者物件

【玖禾】【專】蘆竹航空城巨蛋旁買地送透天
非信義物件(2094136CT)
桃園市蘆竹區海山路
有14人也在關注這間👀
總價
588萬
建坪單價
19.82萬/坪
格局
3房2廳2衛
房貸試算
計算
元/月
年|利率%概算|undefined年寬限期
符合首購資格嗎?
坪數詳情
細項
建坪29.66
主建物29.66
地坪18.56
類型別墅/透天
屋齡45.0年
樓層1-2樓/2樓
加蓋格局--
謄本用途--
使用分區--
完整物件詳情
中信房屋-青埔高鐵站前加盟店(玖禾不動產開發有限公司)
03-2878-287
桃園市中壢區高鐵站前西路1段272號一樓
物件特色
1.三公園圍繞:海口運動公園、海寧公園兒童遊戲場、海湖運動森林公園。 2.桃園航空城巨蛋(海山路)於8月動工,於2029年完工。 3.海寧巷社區住宅飽滿,稀有屋。
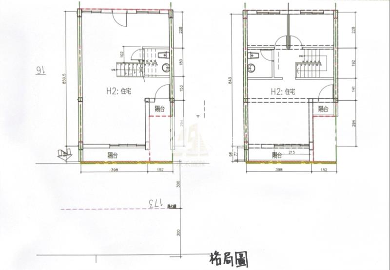
4 .本戶透天需要整理,用買地價格送合法透天。附合法增建規劃平面圖,參考。
類似物件實價登錄
(1)
1公里內 | 半年內 | 別墅/透天
4房3廳3衛
|74.68坪
|無車位
406萬5.44萬/坪
114/09成交


