










































請注意,上方物件照片如有街景,為物件附近環境介紹,非物件本身。
1/21
有13人也在關注這間👀
中信房屋-中壢體育園區加盟店(凱焰企業社)
03-4161-888
桃園市中壢區中山東路2段542號
本物件非信義房屋受託銷售,各項責任(包括但不限於廣告真實性及仲介義務等)概由各該受託業者自行負責,不屬信義房屋控制及負責範圍。
按下按鈕表示您已同意本站
服務條款
與隱私權聲明
預約看屋
此為其他仲介業者物件

專-大享別莊大地坪別墅
非信義物件(2095100CT)
桃園市中壢區大享街
有13人也在關注這間👀
總價
5,180萬
建坪單價
112.68萬/坪
格局
4房2廳3衛
房貸試算
計算
元/月
年|利率%概算|undefined年寬限期
符合首購資格嗎?
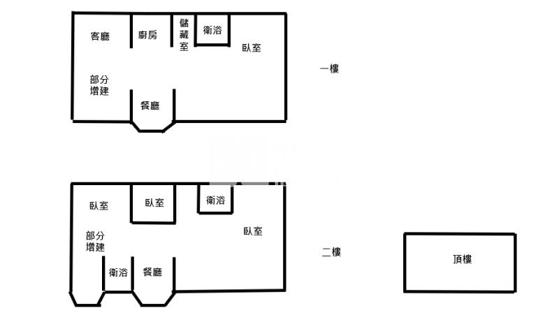
坪數詳情
細項
建坪45.97
主+陽39.49
地坪141.91
類型別墅/透天
屋齡43.4年
樓層1-2樓/2樓
管理費
約2,500 元/月
加蓋格局--
謄本用途--
使用分區--
完整物件詳情
中信房屋-中壢體育園區加盟店(凱焰企業社)
03-4161-888
桃園市中壢區中山東路2段542號
物件特色
知名豪宅別墅社區、24小時警衛管理
優質社區、住戶素質高端
大地坪獨棟別墅、空間好規劃
遠離塵世喧囂、環境優活舒適
類似物件實價登錄
(1)
1公里內 | 半年內 | 別墅/透天
20房20衛
|36.43坪
|無車位
1,200萬32.94萬/坪
114/12成交


