
































請注意,上方物件照片如有街景,為物件附近環境介紹,非物件本身。
1/16
有8人也在關注這間👀
中信房屋-北屯南興加盟店(譽寧不動產經紀有限公司)
04-3609-8855
臺中市北屯區松竹五路1段282號
本物件非信義房屋受託銷售,各項責任(包括但不限於廣告真實性及仲介義務等)概由各該受託業者自行負責,不屬信義房屋控制及負責範圍。
按下按鈕表示您已同意本站
服務條款
與隱私權聲明
預約看屋
此為其他仲介業者物件

正松竹商圈設計師三房公寓
非信義物件(2097019CT)
台中市北屯區松竹路2段
有8人也在關注這間👀
總價
695萬
建坪單價
30.73萬/坪
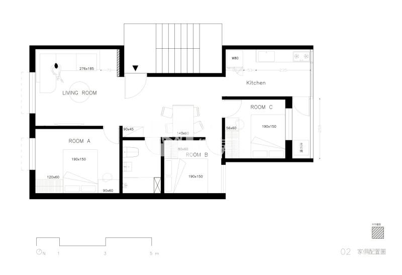
格局
3房2廳1衛
房貸試算
計算
元/月
年|利率%概算|undefined年寬限期
符合首購資格嗎?
坪數詳情
細項
建坪22.62
主+陽22.62
地坪7
類型公寓
屋齡44.8年
樓層1-5樓/5樓
加蓋格局--
謄本用途--
使用分區--
完整物件詳情
中信房屋-北屯南興加盟店(譽寧不動產經紀有限公司)
04-3609-8855
臺中市北屯區松竹五路1段282號
物件特色
1.全室電線換新,冷熱水管換新
2.浴室、窗框外牆、頂樓防水更新
3.全新廚具,重新整理直接入住
4.頂樓局部鐵皮屋頂增強隔熱
5.正松竹商圈,對面有寶雅、康是美
6.近松竹車站、74號快速道路
類似物件實價登錄
(5)
1公里內 | 半年內 | 公寓
3房2廳1衛
|20.12坪
|無車位
235萬11.68萬/坪
115/03成交
3房2廳2衛
|30.53坪
|無車位
670萬21.94萬/坪
115/02成交


