


















請注意,上方物件照片如有街景,為物件附近環境介紹,非物件本身。
1/9
有2人也在關注這間👀
中信房屋-中壢海華加盟店(葉斯不動產有限公司)
03-4252-468
桃園市中壢區新生路313號
本物件非信義房屋受託銷售,各項責任(包括但不限於廣告真實性及仲介義務等)概由各該受託業者自行負責,不屬信義房屋控制及負責範圍。
按下按鈕表示您已同意本站
服務條款
與隱私權聲明
預約看屋
此為其他仲介業者物件

近潛龍國小大地坪透天
非信義物件(2097099CT)
桃園市龍潭區中央街
有2人也在關注這間👀
總價
1,298萬
建坪單價
44.01萬/坪
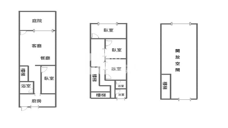
格局
4房2廳3衛
房貸試算
計算
元/月
年|利率%概算|undefined年寬限期
符合首購資格嗎?
坪數詳情
細項
建坪29.49
主建物29.49
地坪31.45
類型別墅/透天
屋齡45.3年
樓層1-2樓/2樓
加蓋格局--
謄本用途--
使用分區--
完整物件詳情
中信房屋-中壢海華加盟店(葉斯不動產有限公司)
03-4252-468
桃園市中壢區新生路313號
物件特色
1.全新整理免煩惱
2.近中豐路交通便利
3.近潛龍國小接送方便
4.大地坪前院停車
類似物件實價登錄
(13)
1公里內 | 半年內 | 別墅/透天
5房3廳3衛
|28.71坪
|無車位
760萬26.47萬/坪
115/02成交
4房2廳2衛
|29.39坪
|無車位
630萬21.44萬/坪
115/01成交


