






























請注意,上方物件照片如有街景,為物件附近環境介紹,非物件本身。
1/15
有0人也在關注這間👀
中信房屋-青埔環球加盟店(俋辰企業社)
03-2877-878
桃園市中壢區高鐵南路2段258號
本物件非信義房屋受託銷售,各項責任(包括但不限於廣告真實性及仲介義務等)概由各該受託業者自行負責,不屬信義房屋控制及負責範圍。
按下按鈕表示您已同意本站
服務條款
與隱私權聲明
預約看屋
此為其他仲介業者物件

【神馬】觀音三多純住透天
非信義物件(2097826CT)
桃園市觀音區三多街
有0人也在關注這間👀
總價
980萬
建坪單價
17.71萬/坪
格局
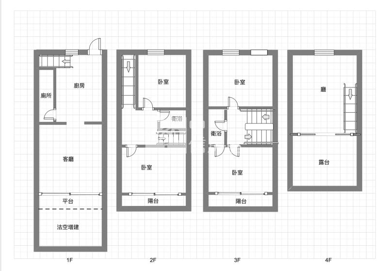
4房2廳3衛
房貸試算
計算
元/月
年|利率%概算|undefined年寬限期
符合首購資格嗎?
坪數詳情
細項
建坪55.33
主+陽48.56
地坪26.22
類型別墅/透天
屋齡31.2年
樓層1-4樓/4樓
加蓋格局--
謄本用途--
使用分區--
完整物件詳情
中信房屋-青埔環球加盟店(俋辰企業社)
03-2877-878
桃園市中壢區高鐵南路2段258號
物件特色
機能便利:
鄰近新坡商圈、草漯商圈,全聯/麥當勞車程約 3-4分鐘。
教育資源:
近草漯國小 草漯國中學區完整,家長接送方便。
交通四通八達:
近台 61線快速道路、台 15 線,串連中壢、桃園及雙北。
環境清幽:
位於三多街住宅區,遠離大馬路喧囂,享有高品質居住寧靜度。
類似物件實價登錄
(23)
1公里內 | 半年內 | 別墅/透天
4房3廳3衛
|56.65坪
|無車位
1,200萬21.18萬/坪
114/12成交
5房3廳4衛
|64.75坪
|無車位
1,558萬24.06萬/坪
114/12成交


