
























請注意,上方物件照片如有街景,為物件附近環境介紹,非物件本身。
1/12
有0人也在關注這間👀
中信房屋-屏東自由加盟店(泰順不動產有限公司)
08-7327-373
屏東縣屏東市自由路218號
本物件非信義房屋受託銷售,各項責任(包括但不限於廣告真實性及仲介義務等)概由各該受託業者自行負責,不屬信義房屋控制及負責範圍。
按下按鈕表示您已同意本站
服務條款
與隱私權聲明
預約看屋
此為其他仲介業者物件

萬丹市中心雙車別墅
非信義物件(2103027CT)
屏東縣萬丹鄉忠孝街
有0人也在關注這間👀
總價
1,280萬
建坪單價
24.11萬/坪
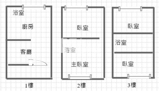
格局
5房2廳3衛
房貸試算
計算
元/月
年|利率%概算|undefined年寬限期
符合首購資格嗎?
坪數詳情
細項
建坪53.09
主建物47.64
地坪29.34
類型別墅/透天
屋齡14.7年
樓層1-3樓/3樓
加蓋格局--
謄本用途--
使用分區--
完整物件詳情
中信房屋-屏東自由加盟店(泰順不動產有限公司)
08-7327-373
屏東縣屏東市自由路218號
物件特色
位於萬丹核心地段
採買便利,方正格局
雙車庫,停車不再是困擾
輕屋齡別墅,屋況良好
採光通風棒,舒適居住空間
類似物件實價登錄
(6)
1公里內 | 半年內 | 別墅/透天
5房2廳4衛
|51.79坪
|無車位
1,380萬26.64萬/坪
114/11成交
5房2廳3衛
|51.6坪
|無車位
810萬15.7萬/坪
115/02成交


