
請注意,上方物件照片如有街景,為物件附近環境介紹,非物件本身。
1/22
有56人也在關注這間👀
本案專家
更多挑選
按下按鈕表示您已同意本站
服務條款
與隱私權聲明
預約看屋
新莊千坪土地整棟廠辦
(2163PF)
新北市新莊區大安路
有56人也在關注這間👀
總價
96,000萬
含車位價
建坪單價
本物件含車位及加蓋,詳洽經紀人員
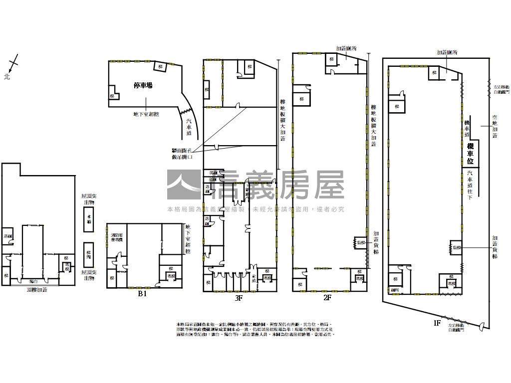
格局
5廳8衛10室
含加蓋3廳3衛1室
房貸試算
計算
元/月
年|利率%概算|undefined年寬限期
符合首購資格嗎?
坪數詳情
細項
建坪873.72
主+陽(含其他)873.72
地坪1093.1
類型廠房/辦公
屋齡30.0年
樓層B1-3樓/3樓
加蓋格局3廳3衛1室
謄本用途廠房、辦公室、停車空間、防空避難室、單身員工宿舍
使用分區乙種工業區; 農業區;
完整物件詳情
本案專家
更多挑選
物件特色
稀有大面積廠房釋出
屋況漂亮建材實在
有規劃地下坡平車位
使用空間大
門前道路寬敞
大車進出方便
周邊機能佳招工便利
敬請指名專案負責人
周邊生活機能


SinyiCare十大守護 信義房屋購售屋服務保障
點擊觀看生活機能
捷運 (1)
公車 (18)
公共自行車 (1)
0潭底站(規劃中) - 出口
10.8分鐘 / 756m
0潭底站(規劃中) - 出口
10.8分鐘 / 756m

SinyiCare十大守護 信義房屋購售屋服務保障
類似物件實價登錄
(26)
1公里內 | 半年內 | 廠房/辦公
3房2廳2衛
|29.35坪
|無車位
970萬33.04萬/坪
115/03成交
3房1廳2衛
|31.15坪
|無車位
950萬30.5萬/坪
115/01成交


