
1/11
請注意,上方物件照片如有街景,為物件附近環境介紹,非物件本身。
1/11
有59人也在關注這間👀
本案專家

預約看屋
按下送出表示您已同意本站
服務條款
與隱私權聲明
送出
永安路透天店面
(2296HC)
桃園市桃園區永安路
有59人也在關注這間👀
詳情
總價
3,900萬
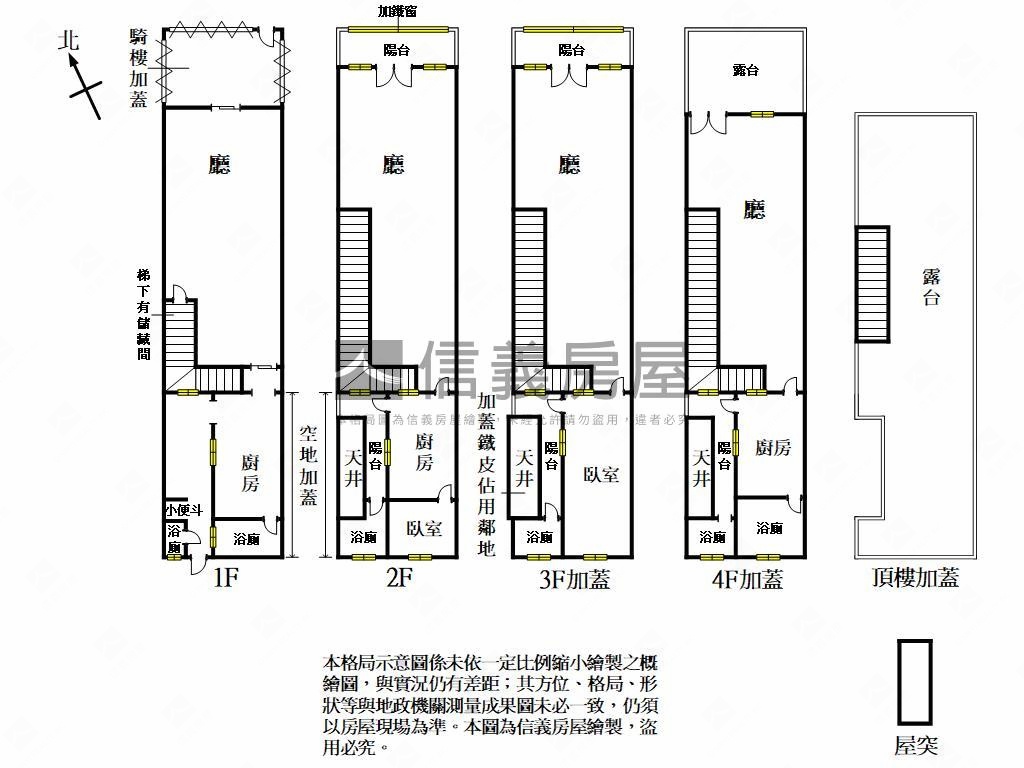
格局
2房4廳6衛
建坪
47.5坪
(主建物41.6坪)
類型
店面/透天
樓層
1-2樓/2樓
建坪單價
82.11 萬/坪
屋齡
53.7年
地坪
31.76坪
地坪單價
--

SinyiCare十大守護 信義房屋購售屋服務保障

點擊觀看生活機能
捷運 (2)公車 (18)公共自行車 (1)停車場 (9)
0G09站(興建中) - 出口
13分鐘 / 947m
1G08站(興建中) - 出口
14分鐘 / 974m
0G09站(興建中) - 出口
13分鐘 / 947m
1G08站(興建中) - 出口
14分鐘 / 974m

SinyiCare十大守護 信義房屋購售屋服務保障
建坪
47.5坪
詳情
建坪單價
82.11 萬/坪
地坪
31.76坪
主建物
41.6坪
屋頂突出物
1.31坪
騎樓
4.59坪
格局
2廳
加蓋格局
2房2廳6衛
屋齡
53.7年
類型
店面/透天
樓層
1-2樓/2樓
車位
--
邊間/暗房
否/否
建物朝向
東北
大門朝向
東北
落地窗朝向
東北
警衛管理
無
建物詳情
建物結構
加強磚造
外牆建材
馬賽克
每層戶數
1
謄本用途
店鋪、住宅
使用分區
見土地使用分區證明影本;
注意事項
--
收合
物件特色
商家林立集市熱鬧
多層使用空間寬敞
店鋪住宅皆宜之透天厝
有土斯有財適傳家透天
鄰近中路生活圈藝文特區
車水馬龍市集群聚
收租自用兩相宜
預約看屋專人服務
類似物件實價登錄(36)
距離該物件1公里內,半年內成交,店面/別墅/透天
共有36間與我相似的實價登錄物件
編輯篩選條件
列表
地圖
年月
地址
類型/車位
總價
單價
建坪
地坪
屋齡
樓層
格局
114年10月

桃園市桃園區中山北路184號
別墅/透天
2,300萬
51.56萬
44.61坪
24.8坪
53.0年
1樓/3樓
4房2廳3衛
歷史移轉2次
114年10月
別墅/透天桃園市桃園區中山北路184號移轉2次
2,300萬
51.56萬/坪
建坪44.61坪地坪24.8無車位
4房2廳3衛53.0年1樓/3樓
4房2廳3衛53.0年1樓/3樓
114年12月

桃園市桃園區忠一路1號
店面
800萬
28.85萬
27.73坪
15.13坪
53.1年
1樓/2樓
4房3廳5衛
歷史移轉3次
114年12月
店面桃園市桃園區忠一路1號移轉3次
800萬
28.85萬/坪
建坪27.73坪地坪15.13無車位
4房3廳5衛53.1年1樓/2樓
4房3廳5衛53.1年1樓/2樓
114年11月

桃園市桃園區忠一路1號
店面
850萬
30.66萬
27.73坪
15.13坪
53.0年
1樓/2樓
4房3廳5衛
歷史移轉3次
114年11月
店面桃園市桃園區忠一路1號移轉3次
850萬
30.66萬/坪
建坪27.73坪地坪15.13無車位
4房3廳5衛53.0年1樓/2樓
4房3廳5衛53.0年1樓/2樓
114年10月

桃園市桃園區孝二街15號
別墅/透天
1,918萬
35.81萬
53.56坪
26.02坪
48.8年
1樓/3樓
8房5廳3衛
備註資訊:其他增建;
114年10月
別墅/透天桃園市桃園區孝二街15號1,918萬
35.81萬/坪
建坪53.56坪地坪26.02無車位
8房5廳3衛48.8年1樓/3樓
8房5廳3衛48.8年1樓/3樓
交易備註
114年10月

桃園市桃園區福清街20號
店面
1,350萬
34.85萬
38.73坪
21.18坪
53.9年
1樓/2樓
5房2廳4衛
備註資訊:賣方賣清,土增稅由買方繳納
114年10月
店面桃園市桃園區福清街20號1,350萬
34.85萬/坪
建坪38.73坪地坪21.18無車位
5房2廳4衛53.9年1樓/2樓
5房2廳4衛53.9年1樓/2樓
交易備註
- 資料來源:
為信義房屋最新成交行情;
為內政部最新公布的實價登錄資料;
該數值為系統運算,詳細請看說明
- 本實價登錄分類係綜合內政部實價登錄2020年7月之建物型態分類調整,以及申報登錄之建物型態、建物權狀登載之「主要用途」資料推估而成,故資料呈現類型、順序可能會與內政部不動產交易實價查詢服務網之搜尋結果有所差異,請斟酌參考。看看我們如何推估實價登錄類型與順序
- 特殊行情物件可能為受到特別條件或特殊關係影響所造成,詳情請參考頁面之粉色「備註資訊」欄。排除特殊交易功能,開啟後可即時排除顯示申報備註中關係人間交易、特殊交易情況及標的類型、與政府有關之交易、僅車位交易、分件登記、含多筆土地或多棟建物、 交易標的僅有建物、土地面積為0(含地上權物件),及其他備註資訊,關閉後則會恢復顯示。
- 歷史移轉次數依據信義成交行情及政府實價登錄資訊推估,再由系統比對當筆與前一筆實價登錄,交易明細完全吻合方計算漲跌幅,當筆交易漲跌幅計算式為(當筆交易之成交總價/前一筆交易之成交總價)-1,計算百分比至小數點後兩位;可能與實際交易有所落差,資料請斟酌參考。
為信義房屋最新成交行情;- 本實價登錄分類係綜合內政部實價登錄2020年7月之建物型態分類調整,以及申報登錄之建物型態、建物權狀登載之「主要用途」資料推估而成,故資料呈現類型、順序可能會與內政部不動產交易實價查詢服務網之搜尋結果有所差異,請斟酌參考。看看我們如何推估實價登錄類型與順序
- 特殊行情物件可能為受到特別條件或特殊關係影響所造成,詳情請參考頁面之粉色「備註資訊」欄。排除特殊交易功能,開啟後可即時排除顯示申報備註中關係人間交易、特殊交易情況及標的類型、與政府有關之交易、僅車位交易、分件登記、含多筆土地或多棟建物、 交易標的僅有建物、土地面積為0(含地上權物件),及其他備註資訊,關閉後則會恢復顯示。
- 歷史移轉次數依據信義成交行情及政府實價登錄資訊推估,再由系統比對當筆與前一筆實價登錄,交易明細完全吻合方計算漲跌幅,當筆交易漲跌幅計算式為(當筆交易之成交總價/前一筆交易之成交總價)-1,計算百分比至小數點後兩位;可能與實際交易有所落差,資料請斟酌參考。
查看實價登錄
本案專家

根據你的設定值計算
198,034/月


