
1/14
請注意,上方物件照片如有街景,為物件附近環境介紹,非物件本身。
1/14
有0人也在關注這間👀
本案專家

預約看屋
按下送出表示您已同意本站
服務條款
與隱私權聲明
送出
正大里二期臨路店墅
(2603DC)
台中市大里區永大街
有0人也在關注這間👀
詳情
總價
2,480萬
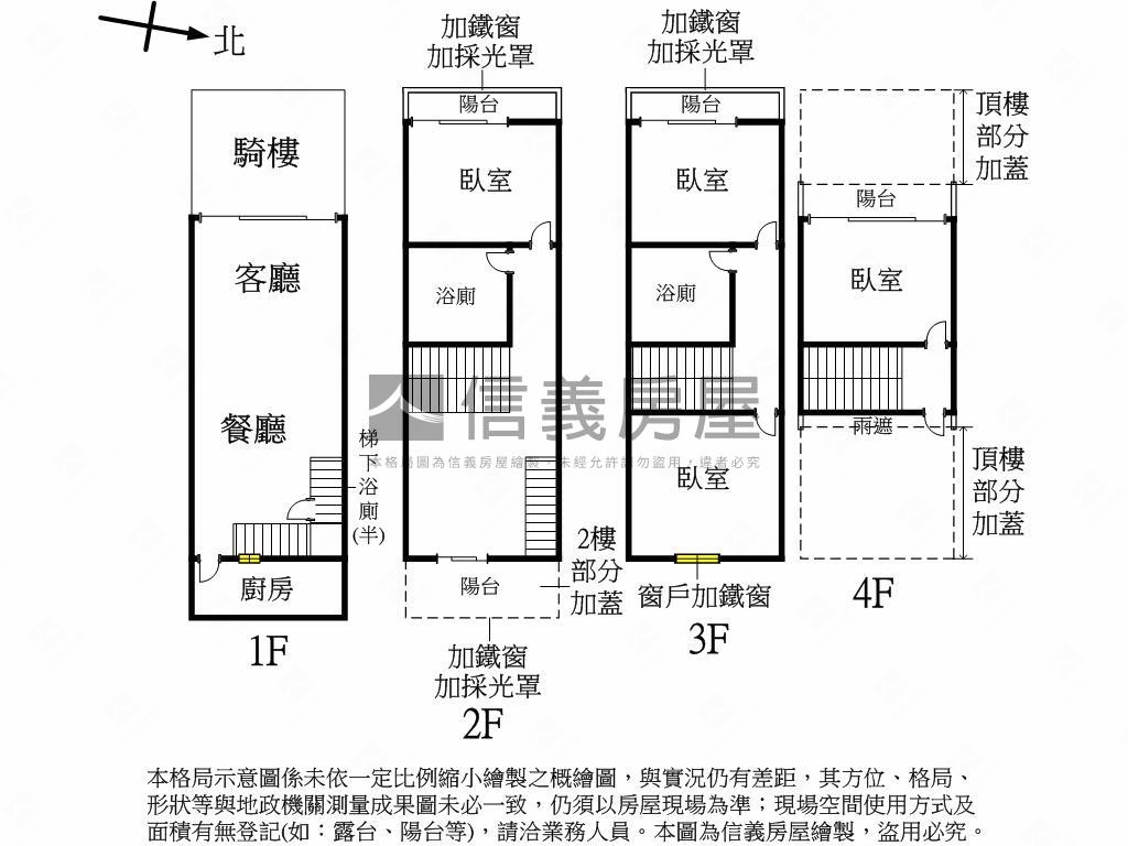
格局
4房2廳2.5衛
建坪
59.24坪
(主+陽54.37坪)
類型
透天/店面
樓層
1-4樓/4樓
建坪單價
41.86 萬/坪
屋齡
25.4年
地坪
18.71坪
地坪單價
132.55 萬/坪

SinyiCare十大守護 信義房屋購售屋服務保障
點擊觀看生活機能
公車 (11)公共自行車 (2)
0國光德芳路口
3.3分鐘 / 244m
1國光德芳路口
4分鐘 / 272m
2大里仁愛醫院(國光路)
6.8分鐘 / 503m
3環保公園
4.9分鐘 / 370m
4環保公園
5.5分鐘 / 399m
5國光花市
6.1分鐘 / 431m
6大里仁愛醫院(國光路)
6.9分鐘 / 463m
7大里仁愛醫院(東榮路)
7.8分鐘 / 509m
8國光花市
7.3分鐘 / 499m
9德芳兒童公園
8.3分鐘 / 549m
A進士公園(德芳路)
8分鐘 / 591m
0國光德芳路口
3.3分鐘 / 244m
1國光德芳路口
4分鐘 / 272m
2大里仁愛醫院(國光路)
6.8分鐘 / 503m
3環保公園
4.9分鐘 / 370m
4環保公園
5.5分鐘 / 399m
觀看全部

SinyiCare十大守護 信義房屋購售屋服務保障
建坪
59.24坪
詳情
建坪單價
41.86 萬/坪
地坪
18.71坪
主+陽
54.37坪=
主建物
51.11坪+
陽台
3.26坪
騎樓
4.4坪
雨遮
0.48坪
地坪單價
132.55 萬/坪
格局
4房2廳2.5衛
加蓋格局
--
屋齡
25.4年
類型
透天/店面
樓層
1-4樓/4樓
車位
--
邊間/暗房
否/否
建物朝向
西
大門朝向
西
落地窗朝向
西
警衛管理
無
建物詳情
建物結構
鋼筋混凝土
外牆建材
二丁掛
每層戶數
1
謄本用途
人行道、店舖、住房、停車空間、机電設備空間
使用分區
住宅區;
注意事項
--
收合
物件特色
正二期優質臨路店墅
臨路店面稀有釋出
永隆爽文明星學區
交通便利,生活機能佳
近未來太子置地廣場
門前道路寬約十二米
購屋售屋信義十大守護
歡迎來電預約,專人服務
類似物件實價登錄(21)
距離該物件1公里內,半年內成交,別墅/透天/店面
共有21間與我相似的實價登錄物件
編輯篩選條件
列表
地圖
年月
地址
類型/車位
總價
單價
建坪
地坪
屋齡
樓層
格局
114年08月

台中市大里區永明街60巷2號
店面
有車位
1,800萬
含車位價
含車位價
31.68萬
含車位計算
含車位計算
56.82坪
含車位--坪
含車位--坪
24.02坪
26.9年
1樓/4樓
4房3廳3衛
備註資訊:其他增建;
114年08月
店面台中市大里區永明街60巷2號1,800萬
含車位價
31.68萬/坪
含車位計算
建坪56.82坪(含車位--坪)地坪24.02有車位
4房3廳3衛26.9年1樓/4樓
4房3廳3衛26.9年1樓/4樓
交易備註
114年05月

台中市大里區永隆一街259巷8號
別墅/透天
2,368萬
42.08萬
56.27坪
31.95坪
25.3年
1樓/4樓
4房3廳3衛
歷史移轉2次
備註資訊:其他增建;
114年05月
別墅/透天台中市大里區永隆一街259巷8號移轉2次
2,368萬
42.08萬/坪
建坪56.27坪地坪31.95無車位
4房3廳3衛25.3年1樓/4樓
4房3廳3衛25.3年1樓/4樓
交易備註
114年09月

台中市大里區永隆一街239巷12號
別墅/透天
1,550萬
30.83萬
50.27坪
23.7坪
26.8年
1樓/4樓
4房2廳4衛
歷史移轉2次
備註資訊:其他增建:陽台採光罩陽台外推;其他增建;
114年09月
別墅/透天台中市大里區永隆一街239巷12號移轉2次
1,550萬
30.83萬/坪
建坪50.27坪地坪23.7無車位
4房2廳4衛26.8年1樓/4樓
4房2廳4衛26.8年1樓/4樓
交易備註
114年07月

台中市大里區永大街122巷5號
別墅/透天
2,450萬
36.44萬
67.24坪
22.36坪
21.7年
1樓/4樓
5房2廳4衛
備註資訊:其他增建;
114年07月
別墅/透天台中市大里區永大街122巷5號2,450萬
36.44萬/坪
建坪67.24坪地坪22.36無車位
5房2廳4衛21.7年1樓/4樓
5房2廳4衛21.7年1樓/4樓
交易備註
114年06月

台中市大里區青松街65巷16號
別墅/透天
1,180萬
23.17萬
50.93坪
18.97坪
29.2年
1樓/4樓
3房2廳3衛
備註資訊:陽台外推;頂樓加蓋;其他增建;
114年06月
別墅/透天台中市大里區青松街65巷16號1,180萬
23.17萬/坪
建坪50.93坪地坪18.97無車位
3房2廳3衛29.2年1樓/4樓
3房2廳3衛29.2年1樓/4樓
交易備註
- 資料來源:
為信義房屋最新成交行情;
為內政部最新公布的實價登錄資料;
該數值為系統運算,詳細請看說明
- 本實價登錄分類係綜合內政部實價登錄2020年7月之建物型態分類調整,以及申報登錄之建物型態、建物權狀登載之「主要用途」資料推估而成,故資料呈現類型、順序可能會與內政部不動產交易實價查詢服務網之搜尋結果有所差異,請斟酌參考。看看我們如何推估實價登錄類型與順序
- 特殊行情物件可能為受到特別條件或特殊關係影響所造成,詳情請參考頁面之粉色「備註資訊」欄。排除特殊交易功能,開啟後可即時排除顯示申報備註中關係人間交易、特殊交易情況及標的類型、與政府有關之交易、僅車位交易、分件登記、含多筆土地或多棟建物、 交易標的僅有建物、土地面積為0(含地上權物件),及其他備註資訊,關閉後則會恢復顯示。
- 歷史移轉次數依據信義成交行情及政府實價登錄資訊推估,再由系統比對當筆與前一筆實價登錄,交易明細完全吻合方計算漲跌幅,當筆交易漲跌幅計算式為(當筆交易之成交總價/前一筆交易之成交總價)-1,計算百分比至小數點後兩位;可能與實際交易有所落差,資料請斟酌參考。
為信義房屋最新成交行情;- 本實價登錄分類係綜合內政部實價登錄2020年7月之建物型態分類調整,以及申報登錄之建物型態、建物權狀登載之「主要用途」資料推估而成,故資料呈現類型、順序可能會與內政部不動產交易實價查詢服務網之搜尋結果有所差異,請斟酌參考。看看我們如何推估實價登錄類型與順序
- 特殊行情物件可能為受到特別條件或特殊關係影響所造成,詳情請參考頁面之粉色「備註資訊」欄。排除特殊交易功能,開啟後可即時排除顯示申報備註中關係人間交易、特殊交易情況及標的類型、與政府有關之交易、僅車位交易、分件登記、含多筆土地或多棟建物、 交易標的僅有建物、土地面積為0(含地上權物件),及其他備註資訊,關閉後則會恢復顯示。
- 歷史移轉次數依據信義成交行情及政府實價登錄資訊推估,再由系統比對當筆與前一筆實價登錄,交易明細完全吻合方計算漲跌幅,當筆交易漲跌幅計算式為(當筆交易之成交總價/前一筆交易之成交總價)-1,計算百分比至小數點後兩位;可能與實際交易有所落差,資料請斟酌參考。
查看實價登錄
本案專家

根據你的設定值計算
125,929/月


