
請注意,上方物件照片如有街景,為物件附近環境介紹,非物件本身。
1/17
有9人也在關注這間👀
本案專家
更多挑選
按下按鈕表示您已同意本站
服務條款
與隱私權聲明
預約看屋
西班牙美術★珍藏電梯別墅
(2641TY)
新北市中和區圓通路
有9人也在關注這間👀
總價
5,398萬
含車位價
建坪單價
本物件含車位及加蓋,詳洽經紀人員
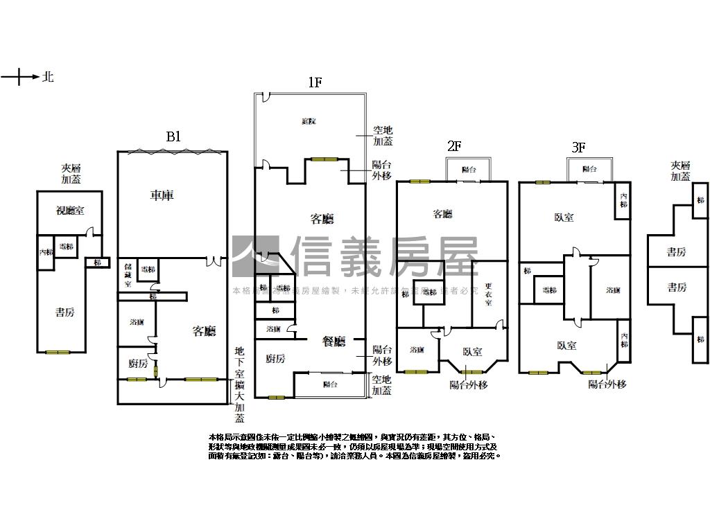
格局
6房4廳4衛3室
含加蓋3房1室
房貸試算
計算
元/月
年|利率%概算|undefined年寬限期
符合首購資格嗎?
坪數詳情
細項
建坪103.16
主+陽(含其他)82.06
地坪85.3
類型透天
屋齡17.6年
樓層B1-3樓/3樓
管理費
約12,000 元/月
加蓋格局3房1室
謄本用途住宅、停車空間
使用分區風景區; 住宅區;
完整物件詳情
本案專家
更多挑選
物件特色
稀有電梯別墅釋出
2500坪綠地規劃讚
視野遼闊通風採光好
前庭後院使用空間大
自有車庫好方便
周邊生活機能


SinyiCare十大守護 信義房屋購售屋服務保障
點擊觀看生活機能
公車 (4)
停車場 (1)
0速配佳庭
8.8分鐘 / 635m
1清和社
6.6分鐘 / 475m
2中和站
12.9分鐘 / 935m
3中和新村
12.9分鐘 / 928m
0速配佳庭
8.8分鐘 / 635m
1清和社
6.6分鐘 / 475m
2中和站
12.9分鐘 / 935m
3中和新村
12.9分鐘 / 928m

SinyiCare十大守護 信義房屋購售屋服務保障
類似物件實價登錄
(0)
1公里內 | 半年內 | 透天
還沒有任何成交資訊


