
請注意,上方物件照片如有街景,為物件附近環境介紹,非物件本身。
1/18
有44人也在關注這間👀
本案專家
更多挑選
按下按鈕表示您已同意本站
服務條款
與隱私權聲明
預約看屋
宜蘭利澤工業區廠房
(2779BP)
宜蘭縣五結鄉利工二路
有44人也在關注這間👀
總價
88,000萬
建坪單價
29.78 萬/坪
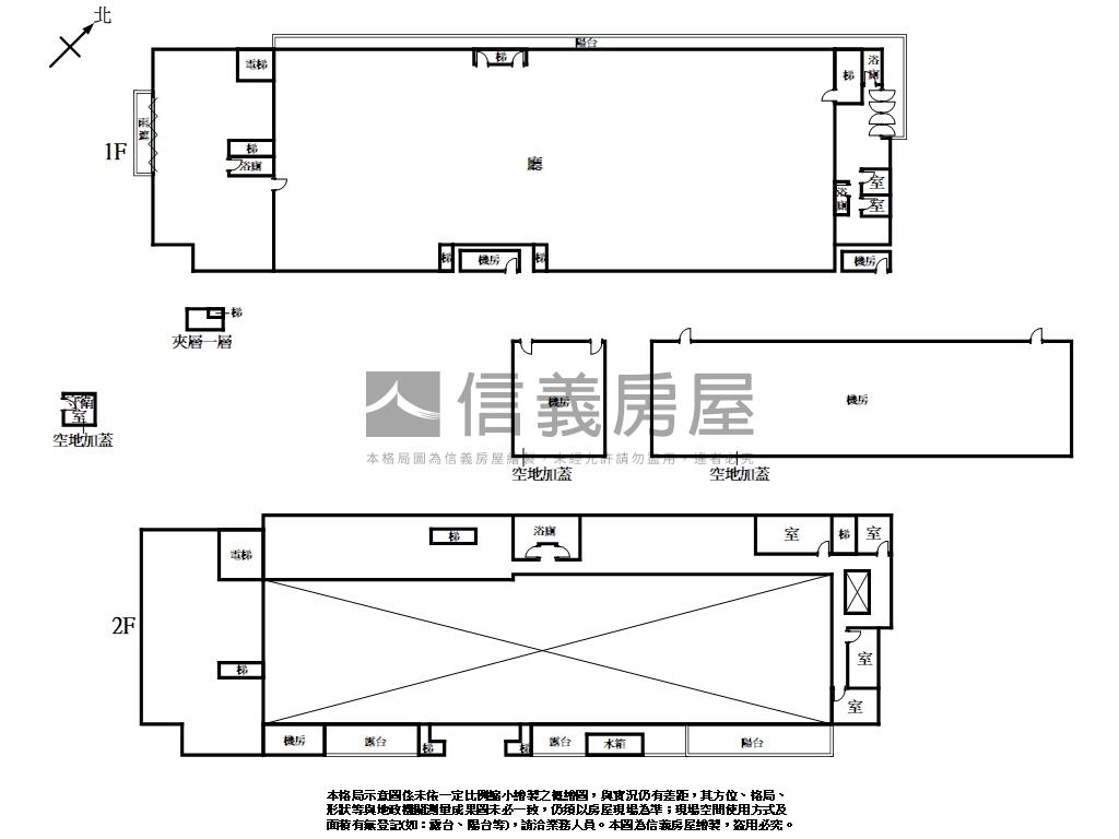
格局
1廳4衛6室
房貸試算
計算
元/月
年|利率%概算|undefined年寬限期
符合首購資格嗎?
坪數詳情
細項
建坪2955.44
主+陽(含其他)2955.44
地坪5000.03
類型廠房
屋齡16.5年
樓層1-2樓/2樓
加蓋格局--
謄本用途工廠.倉庫.辦公室
使用分區工業區丁種建築用地;
完整物件詳情
本案專家
更多挑選
物件特色
近交流道交通便利
適企業總部設廠
已安裝客貨梯
有無塵室機房
已安裝冰水機
已安裝空調箱
已安裝變壓器(高壓)
網路預約專人服務
周邊生活機能


SinyiCare十大守護 信義房屋購售屋服務保障
點擊觀看生活機能
郵局 (2)
0郵筒
398m
1郵筒
405m
0郵筒
398m
1郵筒
405m


SinyiCare十大守護 信義房屋購售屋服務保障
類似物件實價登錄
(0)
1公里內 | 半年內 | 廠房
還沒有任何成交資訊


