
1/19
請注意,上方物件照片如有街景,為物件附近環境介紹,非物件本身。
1/19
有164人也在關注這間👀
本案專家

預約看屋
按下送出表示您已同意本站
服務條款
與隱私權聲明
送出
海中街傳統店住
(2811WW)
台南市安南區海中街
有164人也在關注這間👀
詳情
總價
798萬
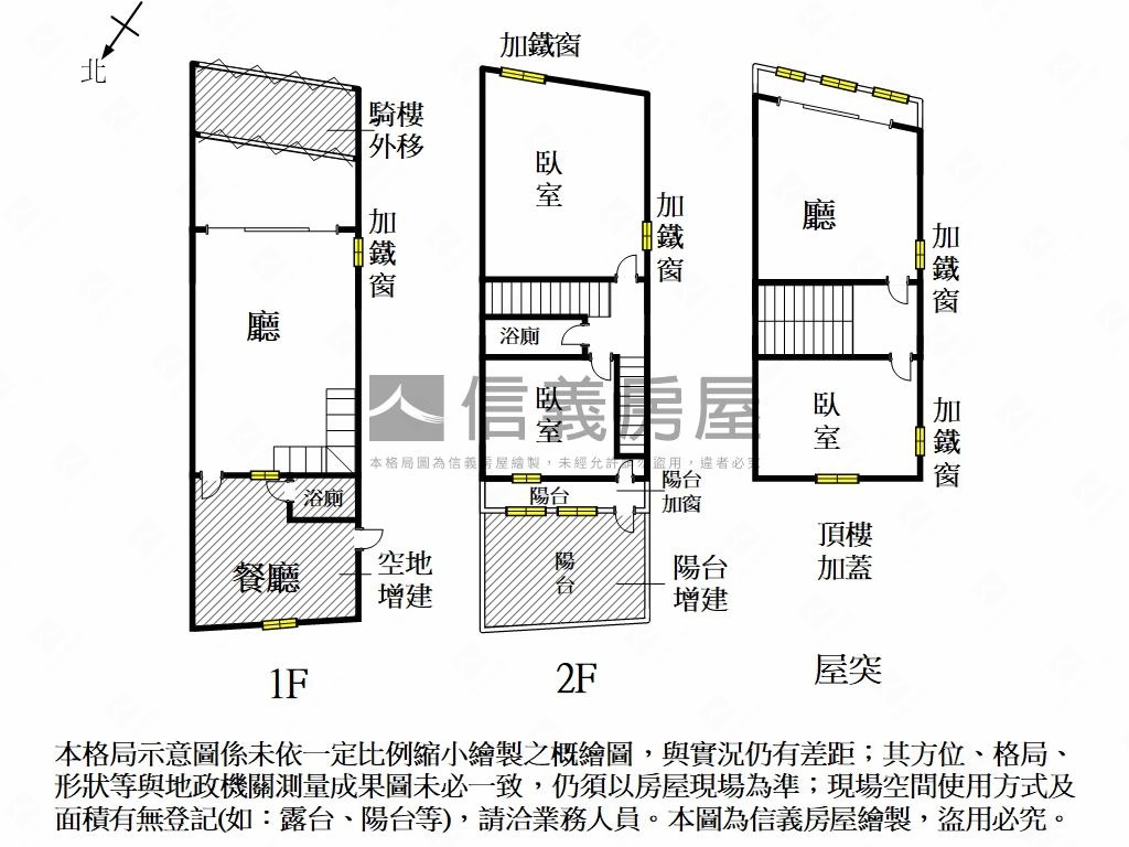
格局
3房3廳2衛
建坪
32.51坪
(主+陽28.32坪)
類型
店面/透天
樓層
1-2樓/2樓
建坪單價
本物件含加蓋,詳洽經紀人員
屋齡
44.3年
地坪
31.41坪
地坪單價
詳洽經紀人員

SinyiCare十大守護 信義房屋購售屋服務保障

點擊觀看生活機能
公車 (6)
0南海尾
6.2分鐘 / 456m
1南海尾
6分鐘 / 444m
2溪心里
9.1分鐘 / 658m
3溪心里
9分鐘 / 652m
4海東里
9.1分鐘 / 640m
5海東里
8.7分鐘 / 637m
0南海尾
6.2分鐘 / 456m
1南海尾
6分鐘 / 444m
2溪心里
9.1分鐘 / 658m
3溪心里
9分鐘 / 652m
4海東里
9.1分鐘 / 640m
觀看全部

SinyiCare十大守護 信義房屋購售屋服務保障
建坪
32.51坪
詳情
建坪單價
本物件含加蓋,詳洽經紀人員
地坪
31.41坪
主+陽
28.32坪=
主建物
27.09坪+
陽台
1.23坪
屋頂突出物
1.61坪
騎樓
2.59坪
地坪單價
詳洽經紀人員
格局
2房1廳1衛
加蓋格局
1房2廳1衛
屋齡
44.3年
類型
店面/透天
樓層
1-2樓/2樓
車位
--
邊間/暗房
是/否
建物朝向
東南
大門朝向
東南
落地窗朝向
東南
警衛管理
無
建物詳情
建物結構
加強磚造
外牆建材
馬賽克
每層戶數
1
謄本用途
住商用
使用分區
見土地使用分區證明影本;
注意事項
--
收合
物件特色
近海尾朝皇宮攤販多
近台17甲交通便利
騎車約3分鐘到夜市
本淵寮市場騎車約5分
格局方正好規劃
住商用途好規劃
買方服務費成交價1%
一通電話專人服務
類似物件實價登錄(22)
距離該物件1公里內,半年內成交,店面/別墅/透天
共有22間與我相似的實價登錄物件
編輯篩選條件
列表
地圖
年月
地址
類型/車位
總價
單價
建坪
地坪
屋齡
樓層
格局
114年09月

台南市安南區海中街33號
店面
1,300萬
42.25萬
30.77坪
23.82坪
44.5年
1樓/2樓
4房2廳5衛
歷史移轉3次
備註資訊:頂樓加蓋;其他增建;
114年09月
店面台南市安南區海中街33號移轉3次
1,300萬
42.25萬/坪
建坪30.77坪地坪23.82無車位
4房2廳5衛44.5年1樓/2樓
4房2廳5衛44.5年1樓/2樓
交易備註
114年11月

台南市安南區海中街51巷16號
店面
348萬
7.76萬
44.89坪
50.9坪
48.1年
1樓/2樓
7房2廳3衛
備註資訊:親友、員工、共有人或其他特殊關係間之交易;其他增建;
114年11月
店面台南市安南區海中街51巷16號348萬
7.76萬/坪
建坪44.89坪地坪50.9無車位
7房2廳3衛48.1年1樓/2樓
7房2廳3衛48.1年1樓/2樓
交易備註
114年08月

台南市安南區海佃路二段409號
店面
1,260萬
21.17萬
59.51坪
33.49坪
44.6年
1樓/3樓
4房1廳3衛
備註資訊:陽台外推;其他增建;
114年08月
店面台南市安南區海佃路二段409號1,260萬
21.17萬/坪
建坪59.51坪地坪33.49無車位
4房1廳3衛44.6年1樓/3樓
4房1廳3衛44.6年1樓/3樓
交易備註
114年07月

台南市安南區海環街437巷9弄8號
別墅/透天
565萬
30.7萬
18.4坪
18.64坪
47.5年
1樓/2樓
2房2廳2衛
備註資訊:頂樓加蓋;其他增建;
114年07月
別墅/透天台南市安南區海環街437巷9弄8號565萬
30.7萬/坪
建坪18.4坪地坪18.64無車位
2房2廳2衛47.5年1樓/2樓
2房2廳2衛47.5年1樓/2樓
交易備註
114年12月

台南市安南區海佃路二段509巷22弄7號
別墅/透天
1,818萬
33.23萬
54.71坪
23.35坪
0.6年
1樓/4樓
4房2廳4衛
備註資訊:陽台外推;其他增建;
114年12月
別墅/透天台南市安南區海佃路二段509巷22弄7號1,818萬
33.23萬/坪
建坪54.71坪地坪23.35無車位
4房2廳4衛0.6年1樓/4樓
4房2廳4衛0.6年1樓/4樓
交易備註
- 資料來源:
為信義房屋最新成交行情;
為內政部最新公布的實價登錄資料;
該數值為系統運算,詳細請看說明
- 本實價登錄分類係綜合內政部實價登錄2020年7月之建物型態分類調整,以及申報登錄之建物型態、建物權狀登載之「主要用途」資料推估而成,故資料呈現類型、順序可能會與內政部不動產交易實價查詢服務網之搜尋結果有所差異,請斟酌參考。看看我們如何推估實價登錄類型與順序
- 特殊行情物件可能為受到特別條件或特殊關係影響所造成,詳情請參考頁面之粉色「備註資訊」欄。排除特殊交易功能,開啟後可即時排除顯示申報備註中關係人間交易、特殊交易情況及標的類型、與政府有關之交易、僅車位交易、分件登記、含多筆土地或多棟建物、 交易標的僅有建物、土地面積為0(含地上權物件),及其他備註資訊,關閉後則會恢復顯示。
- 歷史移轉次數依據信義成交行情及政府實價登錄資訊推估,再由系統比對當筆與前一筆實價登錄,交易明細完全吻合方計算漲跌幅,當筆交易漲跌幅計算式為(當筆交易之成交總價/前一筆交易之成交總價)-1,計算百分比至小數點後兩位;可能與實際交易有所落差,資料請斟酌參考。
為信義房屋最新成交行情;- 本實價登錄分類係綜合內政部實價登錄2020年7月之建物型態分類調整,以及申報登錄之建物型態、建物權狀登載之「主要用途」資料推估而成,故資料呈現類型、順序可能會與內政部不動產交易實價查詢服務網之搜尋結果有所差異,請斟酌參考。看看我們如何推估實價登錄類型與順序
- 特殊行情物件可能為受到特別條件或特殊關係影響所造成,詳情請參考頁面之粉色「備註資訊」欄。排除特殊交易功能,開啟後可即時排除顯示申報備註中關係人間交易、特殊交易情況及標的類型、與政府有關之交易、僅車位交易、分件登記、含多筆土地或多棟建物、 交易標的僅有建物、土地面積為0(含地上權物件),及其他備註資訊,關閉後則會恢復顯示。
- 歷史移轉次數依據信義成交行情及政府實價登錄資訊推估,再由系統比對當筆與前一筆實價登錄,交易明細完全吻合方計算漲跌幅,當筆交易漲跌幅計算式為(當筆交易之成交總價/前一筆交易之成交總價)-1,計算百分比至小數點後兩位;可能與實際交易有所落差,資料請斟酌參考。
查看實價登錄
本案專家

根據你的設定值計算
40,521/月


