
1/21
請注意,上方物件照片如有街景,為物件附近環境介紹,非物件本身。
1/21
有13人也在關注這間👀
本案專家

預約看屋
按下送出表示您已同意本站
服務條款
與隱私權聲明
送出
西區全新電梯店套
(2883TK)
台中市西區民興街
有13人也在關注這間👀
詳情
總價
4,580萬
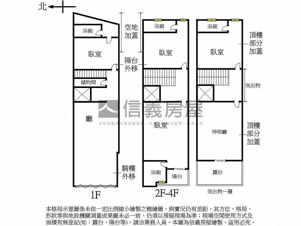
格局
8房2廳8衛
建坪
78.47坪
(主+陽65.96坪)
類型
透天
樓層
1-4樓/4樓
建坪單價
58.37 萬/坪
屋齡
2.0年
地坪
22.74坪
地坪單價
201.41 萬/坪

SinyiCare十大守護 信義房屋購售屋服務保障
點擊觀看生活機能
台鐵 (1)公車 (27)公共自行車 (4)停車場 (1)
0五權站
9.5分鐘 / 656m
0五權站
9.5分鐘 / 656m

SinyiCare十大守護 信義房屋購售屋服務保障
建坪
78.47坪
詳情
建坪單價
58.37 萬/坪
地坪
22.74坪
主+陽
65.96坪=
主建物
54.94坪+
陽台
11.02坪
屋頂突出物
7.88坪
騎樓
4.62坪
地坪單價
201.41 萬/坪
格局
3房1廳3衛
加蓋格局
5房1廳5衛
屋齡
2.0年
類型
透天
樓層
1-4樓/4樓
車位
--
邊間/暗房
是/否
建物朝向
西
大門朝向
西
落地窗朝向
西
警衛管理
無
建物詳情
建物結構
鋼筋混凝土
外牆建材
二丁掛
每層戶數
1
謄本用途
人行道、店舖、停車空間、住宅、樓梯間
使用分區
見土地使用分區證明影本;
注意事項
--
收合
物件特色
西區稀有釋出
輕屋齡
精緻質感電梯別墅
離塵不離城
離塵不離城
自住開店兩相宜
臨10米活路
都市中的靜謐居所
類似物件實價登錄(15)
距離該物件1公里內,半年內成交,別墅/透天
共有15間與我相似的實價登錄物件
編輯篩選條件
列表
地圖
年月
地址
類型/車位
總價
單價
建坪
地坪
屋齡
樓層
格局
114年10月

台中市西區南屯路一段41號
別墅/透天
1,950萬
66.27萬
29.42坪
24.5坪
0.0年
1樓/2樓
3房1廳2衛
歷史移轉2次
備註資訊:其他增建;含租約;
114年10月
別墅/透天台中市西區南屯路一段41號移轉2次
1,950萬
66.27萬/坪
建坪29.42坪地坪24.5無車位
3房1廳2衛0.0年1樓/2樓
3房1廳2衛0.0年1樓/2樓
交易備註
114年08月

台中市西區五權七街63巷16號
別墅/透天
500萬
4.33萬
115.39坪
0坪
36.3年
1樓/3樓
6房3廳4衛
備註資訊:建物坐落地號:後子段298-41地號;親友、員工、共有人或其他特殊關係間之交易;頂樓加蓋;
114年08月
別墅/透天台中市西區五權七街63巷16號500萬
4.33萬/坪
建坪115.39坪地坪0無車位
6房3廳4衛36.3年1樓/3樓
6房3廳4衛36.3年1樓/3樓
交易備註
114年08月

台中市南區美村路二段218巷16號
別墅/透天
3,960萬
42.82萬
92.47坪
28.74坪
1.1年
1樓/4樓
5房3廳6衛
備註資訊:後側建物增建至一二三四樓層增建面積約13.08坪及將各戶一樓停車空間調整或部分圍牆增設等工程土地買賣價:1584萬元正建物買賣價:2376萬元正其他增建;
114年08月
別墅/透天台中市南區美村路二段218巷16號3,960萬
42.82萬/坪
建坪92.47坪地坪28.74無車位
5房3廳6衛1.1年1樓/4樓
5房3廳6衛1.1年1樓/4樓
交易備註
114年07月

台中市南區美村路二段218巷18號
別墅/透天
3,980萬
42.34萬
94坪
29.04坪
1.0年
1樓/4樓
6房3廳6衛
備註資訊:土地款:1592萬元建物款:2388萬元其他增建;未登記建物;
114年07月
別墅/透天台中市南區美村路二段218巷18號3,980萬
42.34萬/坪
建坪94坪地坪29.04無車位
6房3廳6衛1.0年1樓/4樓
6房3廳6衛1.0年1樓/4樓
交易備註
114年11月


五權南路267巷26號
別墅/透天
1,050萬
42.17萬
24.9坪
16.64坪
51.7年
1樓/2樓
3房2廳1衛
114年11月
別墅/透天五權南路267巷26號1,050萬
42.17萬/坪
建坪24.9坪地坪16.64無車位
3房2廳1衛51.7年1樓/2樓
3房2廳1衛51.7年1樓/2樓
信義成交- 資料來源:
為信義房屋最新成交行情;
為內政部最新公布的實價登錄資料;
該數值為系統運算,詳細請看說明
- 本實價登錄分類係綜合內政部實價登錄2020年7月之建物型態分類調整,以及申報登錄之建物型態、建物權狀登載之「主要用途」資料推估而成,故資料呈現類型、順序可能會與內政部不動產交易實價查詢服務網之搜尋結果有所差異,請斟酌參考。看看我們如何推估實價登錄類型與順序
- 特殊行情物件可能為受到特別條件或特殊關係影響所造成,詳情請參考頁面之粉色「備註資訊」欄。排除特殊交易功能,開啟後可即時排除顯示申報備註中關係人間交易、特殊交易情況及標的類型、與政府有關之交易、僅車位交易、分件登記、含多筆土地或多棟建物、 交易標的僅有建物、土地面積為0(含地上權物件),及其他備註資訊,關閉後則會恢復顯示。
- 歷史移轉次數依據信義成交行情及政府實價登錄資訊推估,再由系統比對當筆與前一筆實價登錄,交易明細完全吻合方計算漲跌幅,當筆交易漲跌幅計算式為(當筆交易之成交總價/前一筆交易之成交總價)-1,計算百分比至小數點後兩位;可能與實際交易有所落差,資料請斟酌參考。
為信義房屋最新成交行情;- 本實價登錄分類係綜合內政部實價登錄2020年7月之建物型態分類調整,以及申報登錄之建物型態、建物權狀登載之「主要用途」資料推估而成,故資料呈現類型、順序可能會與內政部不動產交易實價查詢服務網之搜尋結果有所差異,請斟酌參考。看看我們如何推估實價登錄類型與順序
- 特殊行情物件可能為受到特別條件或特殊關係影響所造成,詳情請參考頁面之粉色「備註資訊」欄。排除特殊交易功能,開啟後可即時排除顯示申報備註中關係人間交易、特殊交易情況及標的類型、與政府有關之交易、僅車位交易、分件登記、含多筆土地或多棟建物、 交易標的僅有建物、土地面積為0(含地上權物件),及其他備註資訊,關閉後則會恢復顯示。
- 歷史移轉次數依據信義成交行情及政府實價登錄資訊推估,再由系統比對當筆與前一筆實價登錄,交易明細完全吻合方計算漲跌幅,當筆交易漲跌幅計算式為(當筆交易之成交總價/前一筆交易之成交總價)-1,計算百分比至小數點後兩位;可能與實際交易有所落差,資料請斟酌參考。
查看實價登錄
本案專家

根據你的設定值計算
232,563/月


