
1/22
請注意,上方物件照片如有街景,為物件附近環境介紹,非物件本身。
1/22
有105人也在關注這間👀
本案專家

預約看屋
按下送出表示您已同意本站
服務條款
與隱私權聲明
送出
近74稀有朝南大地坪透店
(3091CZ)
台中市東區東英八街
有105人也在關注這間👀
詳情
總價
5,888萬
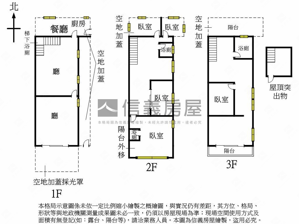
格局
5房3廳4衛
建坪
80.78坪
(主+陽76.25坪)
類型
透天/店面
樓層
1-3樓/3樓
建坪單價
72.89 萬/坪
屋齡
29.6年
地坪
59.65坪
地坪單價
--

SinyiCare十大守護 信義房屋購售屋服務保障

點擊觀看生活機能
公車 (16)公共自行車 (3)停車場 (1)
0自由東英路口
3.9分鐘 / 281m
1東英自由路口
4.6分鐘 / 318m
2自由東英路口
4.3分鐘 / 304m
3東英自由路口
4.7分鐘 / 323m
4東英旱溪街口
4.3分鐘 / 311m
5自由十全街口
4.4分鐘 / 314m
6自由十全街口
4.4分鐘 / 314m
7東英旱溪街口
4.4分鐘 / 319m
8十甲東路口
6.8分鐘 / 474m
9十甲東路口
6.8分鐘 / 464m
A十甲社區
6.5分鐘 / 467m
B溪洲西宜昌路口
7分鐘 / 489m
C東英十甲路口
8.1分鐘 / 547m
D十甲社區
7.1分鐘 / 514m
E東英樂業路口
6.8分鐘 / 500m
F溪洲西宜昌路口
7.7分鐘 / 539m
0自由東英路口
3.9分鐘 / 281m
1東英自由路口
4.6分鐘 / 318m
2自由東英路口
4.3分鐘 / 304m
3東英自由路口
4.7分鐘 / 323m
4東英旱溪街口
4.3分鐘 / 311m
觀看全部

SinyiCare十大守護 信義房屋購售屋服務保障
建坪
80.78坪
詳情
建坪單價
72.89 萬/坪
地坪
59.65坪
主+陽
76.25坪=
主建物
71.4坪+
陽台
4.85坪
屋頂突出物
4.53坪
格局
3房2廳4衛
加蓋格局
2房1廳
屋齡
29.6年
類型
透天/店面
樓層
1-3樓/3樓
車位
--
邊間/暗房
是/否
建物朝向
南
大門朝向
南
落地窗朝向
南
警衛管理
無
建物詳情
建物結構
鋼筋混凝土
外牆建材
二丁掛
每層戶數
1
謄本用途
住家用
使用分區
第一種住宅區;
注意事項
--
收合
物件特色
朝南最佳格局
稀有大地坪好規劃
交通便利沒煩惱
鄰近連鎖超商超市
格局方正好使用
三代同堂沒煩惱
三面採光佳
臨路方便停車沒煩惱
類似物件實價登錄(27)
距離該物件1公里內,半年內成交,別墅/透天/店面
共有27間與我相似的實價登錄物件
編輯篩選條件
列表
地圖
年月
地址
類型/車位
總價
單價
建坪
地坪
屋齡
樓層
格局
114年11月

台中市東區十甲路231號
別墅/透天
2,752萬
36.38萬
75.66坪
28.74坪
30.7年
1樓/4樓
7房2廳4衛
114年11月
別墅/透天台中市東區十甲路231號2,752萬
36.38萬/坪
建坪75.66坪地坪28.74無車位
7房2廳4衛30.7年1樓/4樓
7房2廳4衛30.7年1樓/4樓
114年09月

台中市東區德興一街159巷10號
別墅/透天
1,800萬
25.64萬
70.21坪
23.93坪
26.5年
1樓/4樓
4房2廳3衛
114年09月
別墅/透天台中市東區德興一街159巷10號1,800萬
25.64萬/坪
建坪70.21坪地坪23.93無車位
4房2廳3衛26.5年1樓/4樓
4房2廳3衛26.5年1樓/4樓
114年09月

台中市東區十甲路342號
店面
15,085萬
225.52萬
66.89坪
181.75坪
28.5年
1樓/1樓
0衛
114年09月
店面台中市東區十甲路342號15,085萬
225.52萬/坪
建坪66.89坪地坪181.75無車位
0衛28.5年1樓/1樓
0衛28.5年1樓/1樓
114年12月

台中市東區三賢街17號
別墅/透天
1,810萬
27.66萬
65.43坪
35.43坪
35.2年
1樓/3樓
5房3廳4衛
備註資訊:其他增建;
114年12月
別墅/透天台中市東區三賢街17號1,810萬
27.66萬/坪
建坪65.43坪地坪35.43無車位
5房3廳4衛35.2年1樓/3樓
5房3廳4衛35.2年1樓/3樓
交易備註
114年12月

台中市東區長福路505號
別墅/透天
660萬
8.19萬
80.55坪
57.05坪
20.8年
1樓/4樓
5房1廳5衛
備註資訊:二親等買賣親友、員工、共有人或其他特殊關係間之交易;
114年12月
別墅/透天台中市東區長福路505號660萬
8.19萬/坪
建坪80.55坪地坪57.05無車位
5房1廳5衛20.8年1樓/4樓
5房1廳5衛20.8年1樓/4樓
交易備註
- 資料來源:
為信義房屋最新成交行情;
為內政部最新公布的實價登錄資料;
該數值為系統運算,詳細請看說明
- 本實價登錄分類係綜合內政部實價登錄2020年7月之建物型態分類調整,以及申報登錄之建物型態、建物權狀登載之「主要用途」資料推估而成,故資料呈現類型、順序可能會與內政部不動產交易實價查詢服務網之搜尋結果有所差異,請斟酌參考。看看我們如何推估實價登錄類型與順序
- 特殊行情物件可能為受到特別條件或特殊關係影響所造成,詳情請參考頁面之粉色「備註資訊」欄。排除特殊交易功能,開啟後可即時排除顯示申報備註中關係人間交易、特殊交易情況及標的類型、與政府有關之交易、僅車位交易、分件登記、含多筆土地或多棟建物、 交易標的僅有建物、土地面積為0(含地上權物件),及其他備註資訊,關閉後則會恢復顯示。
- 歷史移轉次數依據信義成交行情及政府實價登錄資訊推估,再由系統比對當筆與前一筆實價登錄,交易明細完全吻合方計算漲跌幅,當筆交易漲跌幅計算式為(當筆交易之成交總價/前一筆交易之成交總價)-1,計算百分比至小數點後兩位;可能與實際交易有所落差,資料請斟酌參考。
為信義房屋最新成交行情;- 本實價登錄分類係綜合內政部實價登錄2020年7月之建物型態分類調整,以及申報登錄之建物型態、建物權狀登載之「主要用途」資料推估而成,故資料呈現類型、順序可能會與內政部不動產交易實價查詢服務網之搜尋結果有所差異,請斟酌參考。看看我們如何推估實價登錄類型與順序
- 特殊行情物件可能為受到特別條件或特殊關係影響所造成,詳情請參考頁面之粉色「備註資訊」欄。排除特殊交易功能,開啟後可即時排除顯示申報備註中關係人間交易、特殊交易情況及標的類型、與政府有關之交易、僅車位交易、分件登記、含多筆土地或多棟建物、 交易標的僅有建物、土地面積為0(含地上權物件),及其他備註資訊,關閉後則會恢復顯示。
- 歷史移轉次數依據信義成交行情及政府實價登錄資訊推估,再由系統比對當筆與前一筆實價登錄,交易明細完全吻合方計算漲跌幅,當筆交易漲跌幅計算式為(當筆交易之成交總價/前一筆交易之成交總價)-1,計算百分比至小數點後兩位;可能與實際交易有所落差,資料請斟酌參考。
查看實價登錄
本案專家

根據你的設定值計算
298,981/月


