
1/12
請注意,上方物件照片如有街景,為物件附近環境介紹,非物件本身。
1/12
有6人也在關注這間👀
本案專家

預約看屋
按下送出表示您已同意本站
服務條款
與隱私權聲明
送出
有6人也在關注這間👀
詳情
總價(含車位)
1,298萬
格局
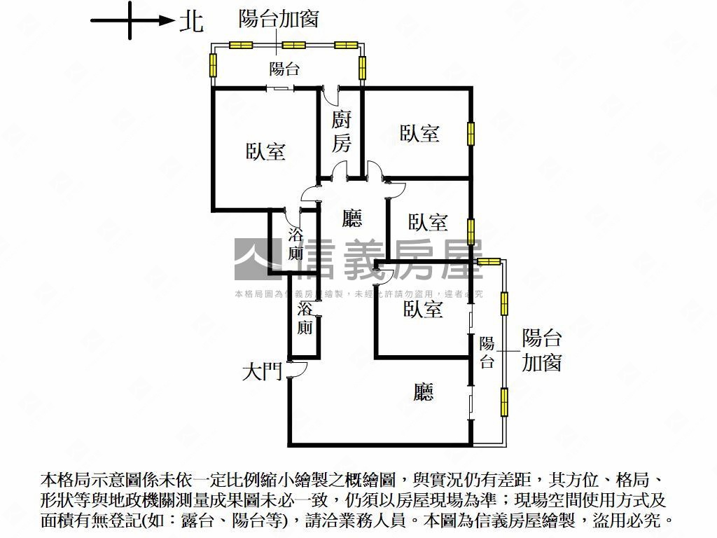
4房2廳2衛
建坪
57.29坪
(主+陽32.57坪)
類型
大樓
樓層
4樓/11樓
建坪單價
本物件含車位,詳洽經紀人員
屋齡
34.0年
地坪
10.13坪
地坪單價
詳洽經紀人員

SinyiCare十大守護 信義房屋購售屋服務保障
點擊觀看生活機能
公車 (16)
0嶺東五權西路口
1分鐘 / 68m
1嶺東五權西路口
0.9分鐘 / 62m
2五權西嶺東路口
3.7分鐘 / 237m
3保安橋
3.1分鐘 / 225m
4保安橋
3.4分鐘 / 248m
5向上嶺東路口
4.8分鐘 / 353m
6忠勇寶山東二街口
7.7分鐘 / 593m
7忠勇寶山東二街口
7.5分鐘 / 579m
8向上嶺東路口
7.8分鐘 / 553m
9寶山里土地公
5.4分鐘 / 429m
A忠勇五權西路口
8.9分鐘 / 658m
B寶山里土地公
6.3分鐘 / 494m
C忠勇五權西路口
9.4分鐘 / 690m
D向上精科路口
9.9分鐘 / 640m
E文山國小(忠勇路)
7.5分鐘 / 587m
F文山國小(忠勇路)
7.7分鐘 / 598m
0嶺東五權西路口
1分鐘 / 68m
1嶺東五權西路口
0.9分鐘 / 62m
2五權西嶺東路口
3.7分鐘 / 237m
3保安橋
3.1分鐘 / 225m
4保安橋
3.4分鐘 / 248m
觀看全部

SinyiCare十大守護 信義房屋購售屋服務保障
建坪
57.29坪
詳情
建坪單價
本物件含車位,詳洽經紀人員
地坪
10.13坪
主+陽
32.57坪=
主建物
28.08坪+
陽台
4.49坪
共有部份
9.77坪
商業用(含公設)
14.94坪
地坪單價
詳洽經紀人員
格局
4房2廳2衛
加蓋格局
--
屋齡
34.0年
類型
大樓
樓層
4樓/11樓
車位
1個坡道平面
邊間/暗房
是/否
建物朝向
西
大門朝向
南
落地窗朝向
北
警衛管理
全天候
建物詳情
建物結構
鋼筋混凝土
外牆建材
方塊磚
每層戶數
3
謄本用途
住家用
使用分區
第二種住宅區;
注意事項
--
收合
物件特色
周邊生活機能佳
近工業區、精科園區
格局方正採光通風佳
離台中高鐵站不遠
離74號快速道路不遠
子母車位好停車
來電由專人替您服務
買方服務費成交價1%
類似物件實價登錄(24)
距離該物件1公里內,半年內成交,大樓
共有24間與我相似的實價登錄物件
編輯篩選條件
列表
地圖
年月
地址
類型/車位
總價
單價
建坪
地坪
屋齡
樓層
格局
762萬
22.09萬/坪
建坪34.49坪地坪5.5無車位
3房2廳2衛33.8年1樓/11樓
3房2廳2衛33.8年1樓/11樓
875萬
含車位價
25.98萬/坪
含車位計算
建坪33.68坪(含車位--坪)地坪4.27有車位
3房2廳2衛31.2年11樓/16樓
3房2廳2衛31.2年11樓/16樓
630萬
20.51萬/坪
建坪30.71坪地坪3.81無車位
3房2廳2衛31.4年2樓/12樓
3房2廳2衛31.4年2樓/12樓
569萬
18.1萬/坪
建坪31.43坪地坪3.16無車位
3房2廳2衛31.7年9樓/12樓
3房2廳2衛31.7年9樓/12樓
- 資料來源:
為信義房屋最新成交行情;
為內政部最新公布的實價登錄資料;
該數值為系統運算,詳細請看說明
- 本實價登錄分類係綜合內政部實價登錄2020年7月之建物型態分類調整,以及申報登錄之建物型態、建物權狀登載之「主要用途」資料推估而成,故資料呈現類型、順序可能會與內政部不動產交易實價查詢服務網之搜尋結果有所差異,請斟酌參考。看看我們如何推估實價登錄類型與順序
- 特殊行情物件可能為受到特別條件或特殊關係影響所造成,詳情請參考頁面之粉色「備註資訊」欄。排除特殊交易功能,開啟後可即時排除顯示申報備註中關係人間交易、特殊交易情況及標的類型、與政府有關之交易、僅車位交易、分件登記、含多筆土地或多棟建物、 交易標的僅有建物、土地面積為0(含地上權物件),及其他備註資訊,關閉後則會恢復顯示。
- 歷史移轉次數依據信義成交行情及政府實價登錄資訊推估,再由系統比對當筆與前一筆實價登錄,交易明細完全吻合方計算漲跌幅,當筆交易漲跌幅計算式為(當筆交易之成交總價/前一筆交易之成交總價)-1,計算百分比至小數點後兩位;可能與實際交易有所落差,資料請斟酌參考。
為信義房屋最新成交行情;- 本實價登錄分類係綜合內政部實價登錄2020年7月之建物型態分類調整,以及申報登錄之建物型態、建物權狀登載之「主要用途」資料推估而成,故資料呈現類型、順序可能會與內政部不動產交易實價查詢服務網之搜尋結果有所差異,請斟酌參考。看看我們如何推估實價登錄類型與順序
- 特殊行情物件可能為受到特別條件或特殊關係影響所造成,詳情請參考頁面之粉色「備註資訊」欄。排除特殊交易功能,開啟後可即時排除顯示申報備註中關係人間交易、特殊交易情況及標的類型、與政府有關之交易、僅車位交易、分件登記、含多筆土地或多棟建物、 交易標的僅有建物、土地面積為0(含地上權物件),及其他備註資訊,關閉後則會恢復顯示。
- 歷史移轉次數依據信義成交行情及政府實價登錄資訊推估,再由系統比對當筆與前一筆實價登錄,交易明細完全吻合方計算漲跌幅,當筆交易漲跌幅計算式為(當筆交易之成交總價/前一筆交易之成交總價)-1,計算百分比至小數點後兩位;可能與實際交易有所落差,資料請斟酌參考。
查看實價登錄
本案專家

根據你的設定值計算
65,910/月


