
請注意,上方物件照片如有街景,為物件附近環境介紹,非物件本身。
1/22
有6人也在關注這間👀
本案專家
更多挑選
按下按鈕表示您已同意本站
服務條款
與隱私權聲明
預約看屋
【彰濱】廠房
(3246HP)
彰化縣鹿港鎮環工六路
有6人也在關注這間👀
總價
12,000萬
建坪單價
36.70 萬/坪
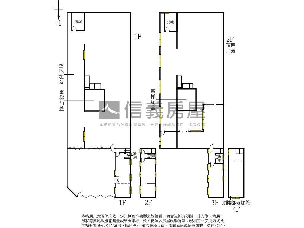
格局
5廳5衛4室
含加蓋2廳1衛2室
房貸試算
計算
元/月
年|利率%概算|undefined年寬限期
符合首購資格嗎?
坪數詳情
細項
建坪326.97
主(含其他)326.97
地坪483.19
類型廠房
屋齡6.8年
樓層1-3樓/3樓
加蓋格局2廳1衛2室
謄本用途--
使用分區工業區丁種建築用地;
完整物件詳情
本案專家
更多挑選
物件特色
廠辦合一
建物面寬20.85米
建物深度48.45米
含汙水處理設備
加蓋多可使用空間大
路寬大進出方便
網路預約,專人服務。
誠意出售歡迎洽詢
周邊生活機能


SinyiCare十大守護 信義房屋購售屋服務保障
點擊觀看生活機能
重要設施 (1)
0久鼎液化石油氣股份有限公司
237m
0久鼎液化石油氣股份有限公司
237m

SinyiCare十大守護 信義房屋購售屋服務保障
類似物件實價登錄
(2)
1公里內 | 半年內 | 廠房
1房1衛
|452.77坪
|無車位
9,300萬20.54萬/坪
114/10成交
0衛
|852.36坪
|無車位
15,500萬18.18萬/坪
114/09成交


