
請注意,上方物件照片如有街景,為物件附近環境介紹,非物件本身。
1/22
有212人也在關注這間👀
本案專家
更多挑選
按下按鈕表示您已同意本站
服務條款
與隱私權聲明
預約看屋
吉祥園●寬敞舒適●樓中樓
(3248YG)
新北市新店區吉祥街
有212人也在關注這間👀
總價
1,048萬
含車位價
建坪單價
詳洽經紀人員
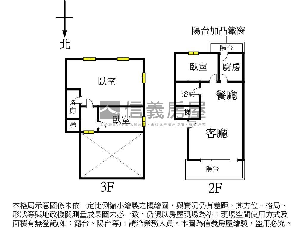
格局
3房2廳2衛
房貸試算
計算
元/月
年|利率%概算|undefined年寬限期
符合首購資格嗎?
坪數詳情
細項
建坪44.76
主+陽36.86
地坪15.14
類型公寓
屋齡37.3年
樓層2-3樓/5樓
管理費
約1,000 元/月
加蓋格局--
謄本用途住家用
使用分區已開發建築密集地區;
完整物件詳情
本案專家
更多挑選
物件特色
格局方正採光通風好
客廳挑高大主臥好寬敞
人車分道面中庭好安靜
蟲鳴鳥叫邊間室內乾淨
警衛管理空氣好環境佳
生活機能好交通便利
一戶一位隨到隨停停車位
難得低總價釋出
周邊生活機能


SinyiCare十大守護 信義房屋購售屋服務保障
點擊觀看生活機能
捷運 (3)
公車 (19)
公共自行車 (1)
0玫瑰中國城站 - 出口
11.9分鐘 / 902m
1雙城站 - 出口
24.7分鐘 / 1731m
2台北小城站 - 出口
14.8分鐘 / 1057m
0玫瑰中國城站 - 出口
11.9分鐘 / 902m
1雙城站 - 出口
24.7分鐘 / 1731m
2台北小城站 - 出口
14.8分鐘 / 1057m


SinyiCare十大守護 信義房屋購售屋服務保障
類似物件實價登錄
(26)
1公里內 | 半年內 | 公寓
3房2廳2衛
|43.82坪
|無車位
930萬21.22萬/坪
115/03成交
3房2廳2衛
|43.91坪
|無車位
940萬21.41萬/坪
114/12成交


