
1/15
請注意,上方物件照片如有街景,為物件附近環境介紹,非物件本身。
1/15
有432人也在關注這間👀
本案專家

預約看屋
按下送出表示您已同意本站
服務條款
與隱私權聲明
送出
龍大莊美墅豪邸
(3284UT)
桃園市八德區興隆街
有432人也在關注這間👀
詳情
總價
2,298萬
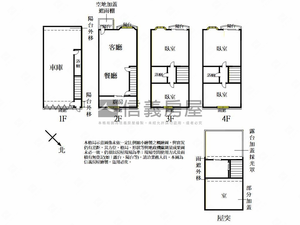
格局
4房2廳3衛1室
建坪
63.06坪
(主+陽57.21坪)
類型
別墅/透天
樓層
1-4樓/4樓
建坪單價
36.44 萬/坪
屋齡
22.9年
地坪
22.31坪
地坪單價
--

SinyiCare十大守護 信義房屋購售屋服務保障

點擊觀看生活機能
捷運 (1)公車 (17)公共自行車 (1)
0鶯桃福德站(興建中) - 出口
7.4分鐘 / 531m
0鶯桃福德站(興建中) - 出口
7.4分鐘 / 531m

SinyiCare十大守護 信義房屋購售屋服務保障
建坪
63.06坪
詳情
建坪單價
36.44 萬/坪
地坪
22.31坪
主+陽
57.21坪=
主建物
54.03坪+
陽台
3.18坪
屋頂突出物
3.19坪
雨遮
2.67坪
格局
4房2廳3衛
加蓋格局
1室
屋齡
22.9年
類型
別墅/透天
樓層
1-4樓/4樓
車位
--
邊間/暗房
否/否
建物朝向
南
大門朝向
南
落地窗朝向
南
警衛管理
全天候
管理費
1000 元/月
建物詳情
建物結構
鋼筋混凝土
外牆建材
二丁掛
每層戶數
1
謄本用途
停車空間、住宅、梯間、店舖
使用分區
特定農業區甲種建築用地;
注意事項
--
收合
物件特色
屋主惜屋細膩維護
獨立中庭靜謐綠境
紫檀地板步步生香
機能核心購物隨行
格局方正 隨心規劃
騎車至鳳鳴車站約5分鐘
近大湳交流道交通便利
近未來捷運鶯桃福德站
類似物件實價登錄(18)
距離該物件1公里內,半年內成交,別墅/透天
共有18間與我相似的實價登錄物件
編輯篩選條件
列表
地圖
年月
地址
類型/車位
總價
單價
建坪
地坪
屋齡
樓層
格局
114年11月

桃園市八德區興隆街19巷32號
別墅/透天
有車位
301萬
含車位價
含車位價
4.57萬
含車位計算
含車位計算
65.88坪
含車位--坪
含車位--坪
25.57坪
20.1年
1樓/5樓
4房3廳3衛
備註資訊:親友、員工、共有人或其他特殊關係間之交易;
114年11月
別墅/透天桃園市八德區興隆街19巷32號301萬
含車位價
4.57萬/坪
含車位計算
建坪65.88坪(含車位--坪)地坪25.57有車位
4房3廳3衛20.1年1樓/5樓
4房3廳3衛20.1年1樓/5樓
交易備註
114年09月

桃園市八德區興隆街20巷18號
別墅/透天
1,700萬
20.98萬
81.04坪
29.89坪
22.8年
1樓/4樓
5房1廳3衛
備註資訊:親友、員工、共有人或其他特殊關係間之交易;
114年09月
別墅/透天桃園市八德區興隆街20巷18號1,700萬
20.98萬/坪
建坪81.04坪地坪29.89無車位
5房1廳3衛22.8年1樓/4樓
5房1廳3衛22.8年1樓/4樓
交易備註
114年08月

新北市鶯歌區鶯桃路668巷38號
別墅/透天
1,900萬
31.81萬
59.73坪
48.87坪
46.5年
1樓/2樓
6房3廳4衛
備註資訊:親友、員工、共有人或其他特殊關係間之交易;頂樓加蓋;
114年08月
別墅/透天新北市鶯歌區鶯桃路668巷38號1,900萬
31.81萬/坪
建坪59.73坪地坪48.87無車位
6房3廳4衛46.5年1樓/2樓
6房3廳4衛46.5年1樓/2樓
交易備註
114年07月

新北市鶯歌區福隆一街2號
別墅/透天
2,060萬
35.13萬
58.64坪
38.26坪
0.0年
1樓/2樓
4房2廳3衛
備註資訊:其他增建;
114年07月
別墅/透天新北市鶯歌區福隆一街2號2,060萬
35.13萬/坪
建坪58.64坪地坪38.26無車位
4房2廳3衛0.0年1樓/2樓
4房2廳3衛0.0年1樓/2樓
交易備註
114年11月

新北市鶯歌區鶯桃路668巷55弄11號
別墅/透天
2,418萬
35萬
69.09坪
25.94坪
12.1年
1樓/3樓
5房2廳5衛
歷史移轉2次
備註資訊:屋突外推及設採光罩3樓陽台增設廁戶陽台加窗加採光罩一樓後方設雨遮其他增建;
114年11月
別墅/透天新北市鶯歌區鶯桃路668巷55弄11號移轉2次
2,418萬
35萬/坪
建坪69.09坪地坪25.94無車位
5房2廳5衛12.1年1樓/3樓
5房2廳5衛12.1年1樓/3樓
交易備註
- 資料來源:
為信義房屋最新成交行情;
為內政部最新公布的實價登錄資料;
該數值為系統運算,詳細請看說明
- 本實價登錄分類係綜合內政部實價登錄2020年7月之建物型態分類調整,以及申報登錄之建物型態、建物權狀登載之「主要用途」資料推估而成,故資料呈現類型、順序可能會與內政部不動產交易實價查詢服務網之搜尋結果有所差異,請斟酌參考。看看我們如何推估實價登錄類型與順序
- 特殊行情物件可能為受到特別條件或特殊關係影響所造成,詳情請參考頁面之粉色「備註資訊」欄。排除特殊交易功能,開啟後可即時排除顯示申報備註中關係人間交易、特殊交易情況及標的類型、與政府有關之交易、僅車位交易、分件登記、含多筆土地或多棟建物、 交易標的僅有建物、土地面積為0(含地上權物件),及其他備註資訊,關閉後則會恢復顯示。
- 歷史移轉次數依據信義成交行情及政府實價登錄資訊推估,再由系統比對當筆與前一筆實價登錄,交易明細完全吻合方計算漲跌幅,當筆交易漲跌幅計算式為(當筆交易之成交總價/前一筆交易之成交總價)-1,計算百分比至小數點後兩位;可能與實際交易有所落差,資料請斟酌參考。
為信義房屋最新成交行情;- 本實價登錄分類係綜合內政部實價登錄2020年7月之建物型態分類調整,以及申報登錄之建物型態、建物權狀登載之「主要用途」資料推估而成,故資料呈現類型、順序可能會與內政部不動產交易實價查詢服務網之搜尋結果有所差異,請斟酌參考。看看我們如何推估實價登錄類型與順序
- 特殊行情物件可能為受到特別條件或特殊關係影響所造成,詳情請參考頁面之粉色「備註資訊」欄。排除特殊交易功能,開啟後可即時排除顯示申報備註中關係人間交易、特殊交易情況及標的類型、與政府有關之交易、僅車位交易、分件登記、含多筆土地或多棟建物、 交易標的僅有建物、土地面積為0(含地上權物件),及其他備註資訊,關閉後則會恢復顯示。
- 歷史移轉次數依據信義成交行情及政府實價登錄資訊推估,再由系統比對當筆與前一筆實價登錄,交易明細完全吻合方計算漲跌幅,當筆交易漲跌幅計算式為(當筆交易之成交總價/前一筆交易之成交總價)-1,計算百分比至小數點後兩位;可能與實際交易有所落差,資料請斟酌參考。
查看實價登錄
本案專家

根據你的設定值計算
116,688/月


